
理想 家
项目地址:青岛市黄岛区唐岛one
项目户型:96平 套二
装修费用:13.5万【含家具家电】
设计风格:北欧宜家
这是16年设计好,今年才完工的一个案例,业主是一对刚刚结婚的80后,由于对居住环境要求较高,故经朋友介绍委托与我们设计,家具大部分都是业主经某宝自购,我们提供了软装搭配的方案,装修方式采用的时下比较经济的做法,独立设计(师)机构+施工队的方式,总体来说业主还是比较认可的,效果也达到了我们的预期。
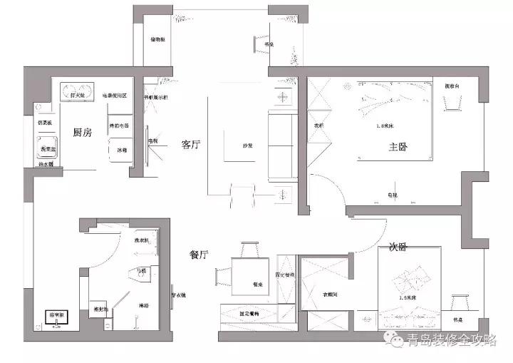
户型平面布置图

客厅


▲尽显北欧宜家风格的客厅,灰白素色硬装为主调,靠枕、窗帘、灯、向日葵花等软装黄色元素点亮空间,营造出舒适的格调。P.S.:地砖是用的福建的仿古砖,以及可爱的小皮牛均是设计师个人关系拿到的哦~


▲客厅摆件细节

▲悬空电视柜,用橡木直拼板做的造型,然后刷的木蜡油,现场的样式没有这么黄。不得不说刷了木蜡油手感还是很不错的。


▲沙发望向餐厅区
餐厅



▲餐厅区重点是卡座的应用,是现场做现场刷漆的,上翻盖里面可以储物,客户和我们一样是麻将的究极爱好者,这里就既可以当餐厅用又可以当做娱乐空间使用了哦!

▲餐桌布置细节
阳台

▲阳台小地砖典型的北欧风,客户很喜欢。靠窗一侧设计了电脑工作台。这个洒满阳光的小区角,做为阅读区也不错~

卧室


▲温馨的主卧室设计整体与客厅非常呼应。这个床头挂画简直萌化了,台灯是我们自带的某宝60多块钱啦。紧凑的空间应用推拉式衣柜门就很实用。

▲卧室装饰,这个图现在就被我拿来当电脑桌面壁纸了,满满的文艺范有木有

▲客厅阳台的收纳柜,感觉家里好多地方可以放东西了

▲次卧

▲干湿分离,将洗漱区单独设置,干净卫生
厨卫


▲橱柜真不是这样的,奈何客户的表哥就是开橱柜厂的,想想这妹妹装修做哥哥的怎么也得表示下吧,好了那就免费送套橱柜吧,所以就是现在这样啦。。。
查看设计师其他作品,可从公众号后台回复“听白”或直接联系设计师
欢迎在下方留言区点评交流
END
以上图文字均为设计师原创,未经许可请勿转载,勿扣除水印,并注明源自公众号青岛装修全攻略。
力求接地气,给装修带来实质性帮助。