户型:内复式
面积:280㎡
设计风格:现代美式
设计单位:合肥飞墨设计
工程半包价:265500元
项目地址:合肥国耀一方城
◣ 南国佳人 ◥
在这年味尽消时,飞墨迎来了开年的第一个实景作品。满怀期待的心在看到现场的那一刻终于落到实处,纵然过程波折起伏不断,但足以制造出惊喜的结果。很是感谢业主的信任与配合,让我们一同收获了这样完美的家。

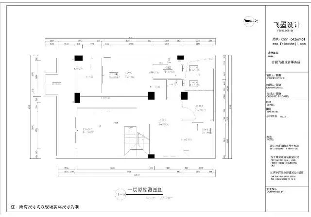
合肥人大多都知道国耀的房子是属于内复式,我们把入户花园分出2部分,一部份做了门厅区域,一部份还是缓冲了小花园,这样改造后将只有260㎡的空间直接扩充到280㎡。

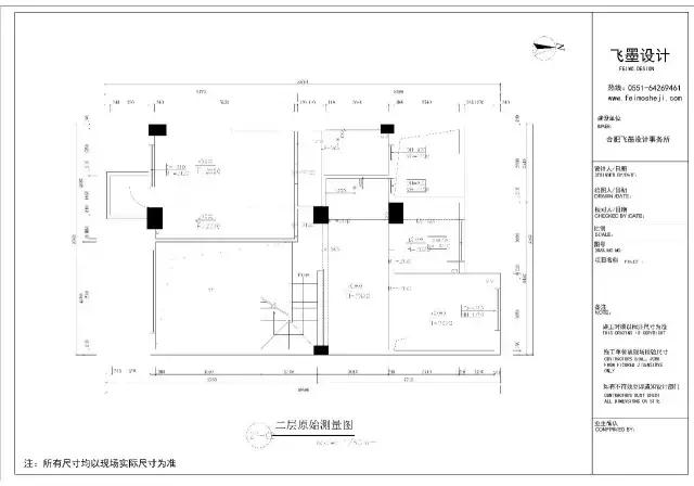
让设计师最为头疼的一点便是原户型的楼梯占据了客餐厅的正中间,十分阻挡空间的舒适性。为了方便三代人居住的生活,李设计师把楼梯全部移除放到了靠墙边的位置,这样一来原有的餐厅跨距就从2.98m扩展到4.62m,从而增强了客餐厅的通透性。

男业主是位企业高管,经常在国外出差眼光颇高,早先十年前买的旧家具在今天看来依然很适用,就准备全搬过来。后来看到现场整体效果太完美,实在不忍心破坏,便把一楼全部置换为新家具,旧家具全部混搭放到二楼使用。空间中新旧家具元素的融合,给家带来了一种别有情致的腔调,居室中各处灯光的运用,恰到好处地突出家具的纹理和质感。

就整体而言,风格方面我们主要强调美式的自然和谐,彰显出现代美式的优雅与贵气。李设计师通过用理性的设计手法,诠释出居室内人、物、空间的完美协调,传达出一种温馨雅致的空间内涵,实现了一个自我的舒适空间。
▼ 实景图

我本想打马浪迹天涯看尽这人间春色
却在遇见你之后发现春色满园皆是虚无幻景
只有你,才是值得我驻足的风景
所以我要给你甜蜜的爱意
温暖的房屋
幸福的日子
给你一个久久不能忘怀的平凡人的快乐





当你寂寞的时候,请默念我的名字
让我伴在你身边看灯看月就花阴

桃李春风一杯酒, 家宴满座一席餐
若缺了你,世间与我而言再无美味

是谁来自山川湖海,却囿于昼夜、厨房与爱
飘来的香气,沉淀了你多年的手艺

明月装饰了你的窗子,而你装饰了我的梦
感谢你不期而至地走近我,赋予了我一个真实的梦


在这个充满阳光的日子里
我只需要书房的一张长桌
和晒着太阳的你
我将坐在桌边思考
而你却在我身边

稚子嬉戏乐开怀,不愁俗事五斗米
多想你慢点长大,享受这快乐的童年


我赋予你我的生活,你赋予我你的习惯
有时最爱看你梳妆,镜中是你巧笑妍兮的模样
有时最想听你诉说,言语间是你俏皮可爱的神情
其实,你想要的我都懂,我想要的你皆知
这就是我想要给你的生活…………

更多装修案例、家居经验欢迎关注微信公众号:合肥飞墨设计或是feimoshejihf(长按可复制)