筑设计的内与外
虽然大多数专业人士人都认同建筑设计与室内设计不应该被分割,但国内设计领域这两个工种还是分得很开的。建筑师做与建筑外部相关的设计,并对内部进行基本的组织;室内设计师做建筑内部的装修,并布置家具和其余用品。存在这种状况的原因之一或许是,建筑师与室内设计师关注的核心设计问题有所差异。建筑设计涉及的设计内容尺度相对大,需要更多地关注结构、设备等技术性问题。建筑中使用的材料有很强的耐候要求,因此设计时材料选择余地小。相比起来因为在材料选择上自由度更大,所需操控的空间尺度相对更小,室内设计师需要更多地关注由材质、家具、饰品、布艺等带来的直观效果。他们离结构、设备等技术性问题相对较远。当然,这只是一个笼统的描述。
针对这种现状可能产生的疑问是,出现在建筑设计中带有技术制约的设计思考,以及由这类思考所生成的设计方法是否也能延续到室内设计,从而在室内设计中带来一种依靠空间的结构性重组,而不仅仅是靠材质及软装效果的新的空间体验呢?这样除了可以带来新的空间体验,还可以打破现实中两种设计之间的隔阂,让建筑室内外设计的整合成为可能。由阿科米星建筑设计事务所于2017年10月设计完成的宝山贝贝佳欧莱幼儿园便是这样的一个例子。
宝山贝贝佳欧莱幼儿园是一家私营连锁幼儿园机构的新增园点。建筑位于上海宝山顾村公园以北。基地周围是大量建成10年左右的城郊住宅(图1,2)。阿科米星建筑设计事务所于2017年2月开始对一座已经建成的以办公为主要功能为主的房子进行 “室内改造及装修设计”。在这个项目中建筑师没有按常规装修项目那样从平面上的空间分隔开始设计,而是开始于对空间结构进行调整的设想。

图1-建筑总图

图2-城郊环境中的贝贝佳欧莱幼儿园
草图中的空间结构
对建筑空间结构进行调整的方式从主创建筑师庄慎的一张草图中可以分辨出来。这是一张勾画了建筑剖面关系的草图(图3)。图中原有建筑的主要结构(楼板、梁及外墙)都用粗线表示,以说明这些东西是设计的先决条件,无法进行大的调整。粗线限定出的空间之间,穿插着一组帐篷般的小房子。尽管这张草图与建筑最后的建成效果差别很大,但设计的概念已经非常清晰。

图3-方案设计概念草图
草图中可以看到每层空间在剖面上被分为打了阴影的下层及留白的上层。部分下层没有阴影,以代表内部的开敞空间或公共空间。这种上下两分的剖面关系是具有结构性的。不仅因为上段的底板吊得很低,承载在吊顶上的玻璃等材料自重大。而且大多数隔墙不接到顶,室内缺少联通地面及天花的竖向龙骨。为了保证吊顶部分构件的稳定性,其结构设计需要有结构师的介入(如建筑设计中常见的情况那样)。说草图中体现的上下两分的剖面关系具有结构性更是因为,这种做法将建筑中常规的房间式体验,系统性地改变成了由房间,以及高低交替的空间,这样两个关系相互重叠后得到的体验。因此可以认为这是在建筑中新的空间结构。新增的吊顶压低了某些空间,反衬出另外一些空间,制造出了大房间内小房间的意向,并让有些不设吊顶的空间在感知上成了建筑内的“外部”空间(图4)。草图也反映出,那些创造“屋中屋”空间意向的构件是按照空间效果要求自由排列的,它们脱离原有建筑结构构件的布置逻辑。这样做使空间意向的塑造更加便利,这些构件对功能的响应更加自由灵活,还在视觉上含糊了结构梁(当然包括草图中未表示的结构柱)的形态规律,使它们在视觉上不再被阅读为“结构”。

图4.1-通过吊顶处理,让走廊及部分没有吊顶的空间给人以房间“外部”的感觉

图4.2-走廊转角处所见的吊顶
草图与实际建造结果之间的共同点构成了设计发展的基本原则,也就是草图及相关的前期推敲奠定的是项目发展的基本关系。这份表达关系的草图不是一个图像,而是一份包含了技术思考的图纸。它与那种描述静态空间效果的图像性草图探索了不同的内容。前者是开放的,不断吸纳其他要素的,具有系统性的控制力;后者是目标性的,指向一个明确的效果,表现出设计者对项目进行精确的形态控制的意图。
剖面图中剩余空间的博弈
设计概念由剖面草图表达,剖面图自然是设计中的关键。从教室的剖透视图(图5)可以看到,实现剖面意图使用的是吊顶手法。
吊顶是室内设计的常规手段。它通常是为了遮蔽设备管线及结构构件,同时安装各种器械而设置的。“这个(在设计图纸中)被填黑的区域,不仅对于后续使用者来说完全‘无用’,而且从概念上来看它也是建筑师无法触及的东西。建筑师们因它而被关进由别人(设定吊顶高度的技术人员)切剩的残余空间,并在自己的设计中显得像一位外来者。建筑师对此的抗争往往都是徒劳。他们无法争得过那些客观的光环,即使这些所谓的‘客观’阻碍着对建筑技术进行批判性探索。”(注1)由于其“无用”的性质,设计中往往将吊顶内空间高度设计成设备允许的最小值,并略微施以起伏进行天花形象塑造。

图5-剖透图表达了设计以吊顶的方式对室内空间氛围进行营造
为了让吊顶具有围合的效果,以达到概念中类似大房间中小房间的空间意向,在宝山贝贝佳欧莱幼儿园设计中,教室的天花被分为有吊顶及无吊顶两种。吊顶下净高2.25米,接近了规范中最低空间的极限。垂到尽量低的吊顶与没有吊顶的天花之间形成足够反差,成为塑造空间特征的主要手段。这样的设置也在一个均匀的中性空间中,引入了与人的身体相呼应的低矮空间,让建筑给人以亲切的感受(图6、7)。

图6.1-高低不同的空间给原本均匀的教室带来了不同的体验

图6.2-高空间下的集体活动

图7-局部压低的吊顶不仅容纳了设备,也为不同房间之间互借上空,以扩大室内空间感创造了条件。
在这里,设计既没有自动接受默认的吊顶最小内空高度,任由设备管线在连续吊顶中穿行,也没有为了某个特定空间意向将无路可走的设备挤至外溢。在概念引导的空间关系控制下,吊顶中为设备预留了小径。设备需要走在建筑师设计后得到的剩余空间中,而不是反过来的。建筑空间氛围的塑造与设备的技术落实成为一个完整的组合。这种在设计中对设备空间的吸纳不是后续的弥补,而从草图便可以看出来的,设计在概念阶段就已经系统性地给出了设备通行的出路(图3)。当然,为了达到这个整合效果,将设备规范进建筑师设置的 “小径”中,建筑师不仅需要专业经验,更需要花大量的时间进行繁杂的工种协调。
面
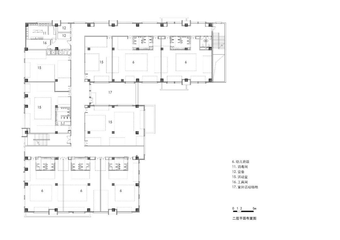
与一般幼儿园相比,这家幼儿园机构的业主希望有更多的活动室,并希望在有限的面积里争取到尽量多的教室。 9个月不到的设计及施工时间,使设计方案无法对原有建筑的楼板及外墙做很大调整。这两方面的原因使建筑平面必然采用一种高效的模式。结合原有建筑的平面形式,规则的廊式排列成了合理的解决方案。这样排列出来的平面中几乎没什么用来营造氛围的冗余空间。设计概念从剖面开始的做法以另一种方式响应了塑造空间氛围的需求。通过不到顶的隔墙,相邻房间以及房间与走廊之间在视觉上相互借取上部空间,让房间及走廊在感知上显得更大。但这并不意味着平面只是被动地做了分隔空间的工作。对平面进行分析后可以发现剖面与平面组织之间的互动才是保证空间效果的关键。
原有建筑的结构的布置逻辑是在一个横向(东西向)6米,纵向(南北向)6.4米的均匀柱网基础上,通过尽端及局部变异适应房间、走廊及楼梯的安排(图8)。对于幼儿园功能来说,这套结构相对密集。新的布局需要遵循另一套规律,因此房间规律与原有柱位无法完全契合,每间教室的空间都与原有柱位有不同的关系。尽管如此,平面布置的规律性让空间逻辑可以清晰地在公共空间中被阅读,并让与新功能不完全匹配的原有柱网在感知中隐退了下去(图9)。

图8-建筑原状平面图

图9.1-建筑底层平面图

图9.2-建筑二层平面图
除了房间格局外,从平面图的吊顶投影线可以看出来,每间教室吊顶的格局也都有差异。吊顶设计遵循了两个重要的原则。第一,每间教室中要有一个大的没有吊顶的空间,这样可以尽量争取空间资源,并为小朋友创造一个具有领域感的,可以围坐其下的高空间。第二,要有一个横跨两间教室的高空间,让因功能需要而被分开的房间在空间上有一种连续感,打破由功能要求形成的具有强制性的空间秩序 [ii]。由于每间教室的位置及它们与柱网关系都不同,在前面两个原则的控制下,每间教室的吊顶就有所差异。从剖面开始的设计概念加上平面上就事论事的响应,使设计在保持概念完整性的同时,获得角角落落的贴切以及施工的便利。平面与剖面之间严密紧凑的互动是得到这个效果的关键(图10)。
依靠原有公共建筑在层高上的资源,让剖面系统与平面系统相互交错,这种做法使由功能组织带来的走廊-房间关系,因为剖面的叠压而产生感知上的错位,以此形成视觉感知的趣味。通过剖面上的经营,建筑师无需依赖冗余面积,亦可让具有紧凑平面关系的空间获得了一种灵动的感觉。


图10-虽然大的关系是一致的,但每个角落由于具体原因,结构、吊顶、窗户都有不同的相对关系,也因此形成了具有差异性的丰富体验。

立面图上的重影
就像平面上“原有结构——新隔墙秩序——新吊顶秩序”三者的叠压关系一样,立面上也采用了相似的策略,用符合幼儿园建筑性格的色彩,叠压在原有的立面之上。
在这个建造时间非常短的项目中,建筑师无法对立面进行土建层面的改造。改变立面颜色是简单有效果的策略。设计中将不同色相的颜色叠压于各个朝向的立面上,强调立面上的转折,消除了原有建筑的体量感。在每个同色相的大面上,建筑师又用不同明度的分块来建立新的秩序。它们无差别地叠压在立面上,消解了原有立面构件的对象感。首先被弱化的是原立面上按照功能需要随机出现的空调外机箱,以及看似为建筑争取更多细节感而出现,实际上表现得有些无序的钢筋混凝土窗套。原建筑的窗作为立面上最主要的元素十分强势,后加的色彩分块既有自己的秩序也顾及了原有的立面信息。设计选取“立面构件”(包括窗、窗间墙、空调机箱)的中线或边沿来进行划分,让色彩与窗洞及窗框有一定的对位,使得叠压的色块与原有立面的“构件”形成一种若即若离的关系(图11)。

图11-色彩秩序与构件秩序相互叠合的立面
除了立面上色彩的设计,场地中新置入的廊道也对立面的感受起到了很大的调节作用。它不但有遮风避雨和引导人流的作用,也让实体感很强的建筑有一种向四周空间蔓延的感觉,使感知中建筑内外之间更加连续。廊道将围墙与建筑连接在一起,化解了围墙与建筑之间的对立感,也让建筑的外轮廓得到延伸,使之与场地咬合在一起(图12)。
立面上的色彩处理及廊子的设计消除了原先建筑孤立的实体意向,建立了建筑与周围空间的连续感觉。色彩并不是一个图案,而是一种建立秩序的方式。它的设计概念与内部分层的概念一致,也是希望消除对建筑形态的常规阅读。用一种“叠压”的方式让原有建筑立面较为混杂的状况得以修正。

图12.1-场地中的廊道及建筑

图12.2-廊道也让建筑的外轮廓得到延伸,使之与场地咬合在一起

图纸引导体验
从室内设计的角度看,将技术性问题及设计概念整合起来思考可以生发空间结构的变化。这样的设计方法与自动接受现有空间框架,将设计重点聚焦于附着在既有空间上的设计方法产生了差别,并可能为中国室内设计开拓出一条让建筑内外更加具有连续感的设计方法。
从建筑设计的角度看,当今中国建筑设计领域内有几个现象,它们包括建筑形态的符号化拟形、材料表现、追求精致化和完成度及形态的纯几何构成。传播媒体需要的是剥离了实际尺度及实际场景关联的,仅在图像上被阅读的对体验的想象(无论这种想象是否符合实际的感知)。在一定程度上,前述几种现象是由媒体社会对建筑设计的消费引起的。与此相呼应的建筑设计的方法也是从图像推导效果,并由效果得到体验(假设这一设计方法确实附带了对体验的设想)。这种方法让建筑更多地被对象化。然而作为一种社会活动的承载体,建筑接受的更多是普通人在无意识之中的视觉审阅。建筑在视觉感受中需要被对象化的机会并不多。
宝山贝贝佳欧莱幼儿园由图纸引导体验的设计方法与图像推导效果的方法不同。在这个设计中由图纸控制的概念不指向一个精确的图像。除了在概念阶段预留技术接入的可能性外,它也为后续各种其他条件的介入留了余地。其体验部分由设计控制部分自动生成,体验的辐射面往往更大。在这里,设计是一个更加综合更加完整的过程。它在媒体建筑充斥的时代,保持了一份专业应有的内涵。