因为家里的路由已经用了两三年了,所以最近也在计划更换新路由,而秉承着性价比的消费理念,我依旧还是把目标瞄准了百元这个区间,最终锁定了荣耀路由X3 Pro跟小米路由4A千兆版这两款网红爆款。

对这两款路由器我是真不知道该如何抉择,在网上也看了许多大咖们的体验分享,可以说这两款路由打得不分上下,让人难以抉择。好在朋友家也要换路由,在我的忽悠下,我们两人各选了其中一款,于是乎就有了这次的对比分享,让我们看看哪到底谁更值得入手呢?
外观对比

两款路由器的机身配色都采用的是白色,并且在面板上也有印着自家非常明显的LOGO标识,能让我们一眼就能看出谁是谁 。

但荣耀路由X3 Pro的面板却要比小米路由4A千兆版多一个HiLink一键互联键,按下后,能让相关的智能家居、路由器以及手机等设备快速的免密接入荣耀路由X3 Pro,不需要输入密码,这一点还是很方便。

天线方面,两款路由器搭载的都是4根5dbi高增益天线,但小米路由4A千兆版的天线收纳与传统的路由设计一样,只能往下平躺或是倾向右侧或左侧,比较占地方。
而荣耀路由X3 Pro的天线因为采用了全新的扁平加宽设计,可以往面板方向折叠收纳,在移动搬运中也相对的更节省地方、好拿。

接口方面,两款路由器采用的是都千兆接口且都放置到了机身背部。从接口数量上来看,荣耀路由X3 Pro要比小米路由4A千兆版的多一个。

从日常的使用来说,荣耀路由X3 Pro的网口要比小米路由4A千兆版的更简单方便。因为荣耀路由X3 Pro的四个千兆网口都支持盲插,能智能识别不同的网线,不需要我们去分辨哪个是WAN口哪个是LAN口;小米路由4A千兆版则需要仔细区分,不然插错了就无法正常连接网络了,对小白用户来说不是很友好。
网速对比
一千个人眼中有一千个哈姆雷特,不管荣耀路由X3 Pro跟小米路由4A千兆版这两款路由器谁的外观更好看,谁更方便收纳,谁在联网过程中更友好,这都不能说明它就是最值得入手的,毕竟对于我们用户来说,只有在日常的使用过程中,能保证网速快、不掉线才是最重要的。
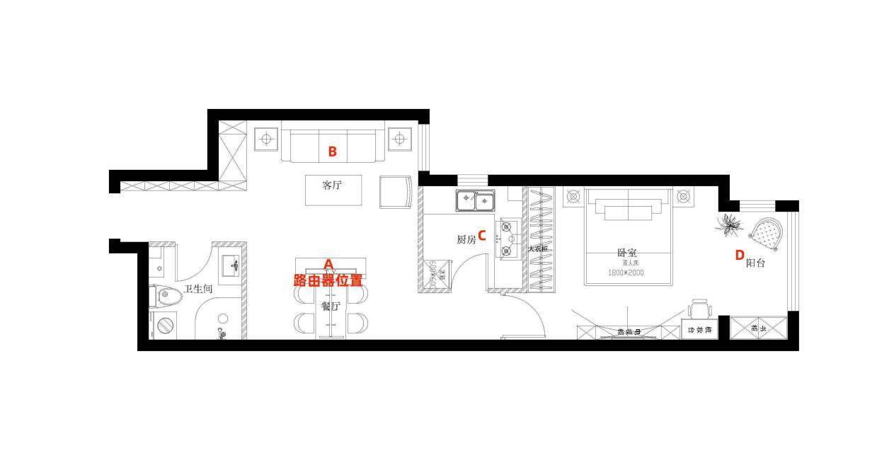
将两款路由器正常联网成功后,放在客厅的A点,其中荣耀路由X3 Pro的WiFi名称为HONOR-103T8B;小米路由4A千兆版的WiFi名称为Xiaomi_E845,我家的带宽为100兆。

因为我家的户型比较特殊,简易户型图如上,卧室距离客厅隔了两堵墙,想要在卧室、阳台得到稳定的网络连接,这就要求路由器在穿墙上有着出色的表现,同时信号传输上也必须得稳定,不然根本无法舒服的躺在床上玩游戏。

先看B点客厅位置,与路由器处于同一房间。通过测速软件“测网速APP”进行Wi-Fi信号测试,在经过10秒波动后可以看到虽然两款路由器的信号强度都是极强,但是荣耀路由X3 Pro的信号强度却要比小米路由4A千兆版要更好一些(数值越接近于0则为更好)。

网速跟延迟方面,荣耀路由X3 Pro延迟35ms,*载下**速率104.4Mbps,带宽满载达到了104兆;小米路由4A千兆版延迟45ms,*载下**速率86.8Mbps,带宽在正常范围之间为86兆。

我们又通过游戏实测得出,在终端与路由器较近距离的使用环境下,荣耀路由X3 Pro延迟56ms,小米路由4A千兆版延迟57ms,两款路由器在游戏时的体验差别并不大,都能提供稳定流畅的游戏体验。

接下来我们在隔了一墙的C点厨房看一下两款路由器的表现,首先在Wi-Fi信号强度上,同样取10秒波动后的测试数值,发现在隔了1堵墙后,两款路由器就已经开始出现一些优劣势了,其中荣耀路由X3 Pro的信号强度依旧为“极强”,而小米路由4A千兆版的信号强度则要弱了一些,为“强”。

网速跟延迟方面,荣耀路由X3 Pro延迟31ms,*载下**速率95.3Mbps,带宽满载达到了95兆;小米路由4A千兆版延迟31ms,*载下**速率84.2Mbps,带宽在正常范围之间为84兆。

同样在游戏实测中,在信号强度上游戏APP同样测试出小米路由4A千兆版却是要比荣耀路由X3 Pro弱上一格,延迟方面两款路由器不算大,但在穿墙之后二者的差距稍稍拉大了一些,荣耀路由X3 Pro为56ms,小米路由4A千兆版为66ms。

最后,我们再来测试一下D点,也就是卧室对两款路由器进行测试,这时候距离路由器已隔了两堵墙的距离,不过通过测试发现两款路由器的WiFi信号表现还是很不错的,都能达到“强”。

不过在网速跟延迟方面,荣耀路由X3 Pro延迟为31ms,*载下**速率91.4Mbps,带宽为91兆,属于正常范围;小米路由4A千兆版延迟为34ms,*载下**速率为65.6Mbps,带宽为65兆,网速偏慢。
可以看出在路由器与设备间距离远且障碍物多的环境下,荣耀路由X3 Pro的网络信号及网速传输要稳于小米路由4A千兆版,那在实际的游戏中又是怎样?

通过游戏实测可以看到荣耀路由X3 Pro延迟56ms,小米路由4A千兆版延迟68ms。

在实际的游戏过程中,能明显的感受到小米路由4A千兆版因网速传输不稳定的情况,出现过数次高延迟现象,最高能达到162ms,反观荣耀路由X3 Pro在整个游戏过程中的表现非常平稳。

想来这应该还得益于荣耀路由X3 Pro自带的游戏加速功能,当我的荣耀30 Pro手机(使用华为 EMUI9.0以上/荣耀MagicUI 2.0以上的手机都可以)启动手游时,这个功能便会自动识别游戏状态,并进入游戏专属模式,为终端自动加速,让手游延时更低更稳定。
总结
通过实际的测试对比,可以说荣耀路由X3 Pro跟小米路由4A千兆版两款路由器的表现都不错,但就我在游戏方面得到的体验来看,还是搭载了自研凌霄双核1.2GHz处理器的荣耀路由X3 Pro要比小米路由4A千兆版的表现要更优秀一些,特别是在距离路由器远的房间玩游戏时,荣耀路由X3 Pro为5GHz Wi-Fi加入的独立信号放大器很好的保证了信号在穿墙、稳定性上有着更优秀的表现。好了,以上便是此次对这两款百元路由器的对比测评的全部内部了,至于它们谁更值得入手,综合我个人的体验感觉来说,我自然是觉得荣耀路由X3 Pro更值得了。
荣耀X3 Pro 双千兆路由器 1300M双频wifi 无线家用穿墙 5G双频智能无线路由 高速路由 双频合一 四天线穿墙
¥125
购买