房子买好了,可是拿着户型图却不知道如何装修?小编要告诉你,看户型图,看户型图,看户型图(重要的事情要说三遍,嘻嘻~),如果你能够看懂户型图,那么,你离装修大神也就不远啦!在这里,小编为大家带来了过家家设计师点评的户型图,华晖·云门94平3房2厅,一起来瞧瞧吧~

如果你也对自家的户型有着各种各样的改造期许:
如何扩充空间,增加收纳?
客厅餐厅如何做到功能分区?
开放式厨房是否适合,又该如何布置?
怎么解决房子采光不好的困扰等等。
不知道对自家的户型进行怎样改造设计,
且看每周栏目《户型点评》!
获得一个好的户型,
给家人带来身体、心理上的舒适,
满足未来生活变化,
又能与自然、人文环境协调。
见证专业设计师点评真实户型,
从小白到大神,
相信您一定可以从中获得一些灵感和知识!
一起来改造美美的家吧!
本期户型点评实例
户型:三房两厅两卫
业主:张生
小区:华晖·云门
户型:5栋 E
面积:94平米(套内实测)
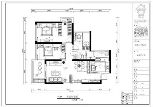
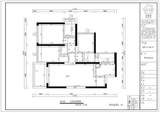
户型图:
户型点评设计师:
过家家梦想队——宋润丰
设计师帅照:
当然他生活中是这样子的(Don,别怪我爆照):
对室内设计有自己的深刻理解,热爱美食,运动以及深圳,充满阳光。

从业年限:5年
擅长户型:80~160整体空间规划、以及小空间的利用 。
设计理念:设计以人为本,设计应该围绕着人,而非人围绕着设计,坚持实用性、个性化、艺术性和环保性,把设计做到空间利用最大化、储藏空间最大化。
近期代表作品:金地香蜜山(美式)、金地名峰(北欧)、华晖云门(现代)、宏发嘉域(现代)、信义嘉御山(田园)、领航城(简约)、珑禧(现代)。
下面开始点评啦!
户型解析:
优点:整体空间比较方正,空间采光与通风较好,房间超南,可以良好充分的利用各个空间。
缺点:
1、次卧1原有一间较小的衣帽间,使用不变并占用次卧使用空间。
2、生活阳台较大,利用空间不多。
建议改造:
1、把该次卧衣帽间的空间与次卧打通,使次卧使用更加方便,方正。
2、此次改造把公卫和厨房空间外推,缩小生活阳台空间。提高整体空间的利用率。
设计师建议平面布置图方案:

设计师建议设计效果图片:





不同的户型结构,设计和装修也是不同的。这是户型点评第一期,更多户型点评请持续关注过家家装修网。
如果您也需要点评自家的户型图,添加微信公众号:过家家装修网,给小编留言,提供姓名、小区名称、面积、户型、户型图等信息,既可参加,并能够获得过家家专业设计师为您家户型点评。期待您的参与,谢谢!