
都市核心、空间营造、极简主义、精度立面
这是一个于我们而言具有里程碑意义的项目,伴随着大区建设的周期,G4+团队在这三年半的时间里持续专注于专业的研究,并不断超越自我,为呈现出更好的作品而努力。

※故事线
项目概况
项目的位置得天独厚,位于杭州城西大热的申花板块,距武林广场仅五公里,周边名校林立,多条地铁交汇,更有银泰、万达、大悦城等商业综合体环伺,成熟发达的配套使区域被誉为杭州的“新武林”板块,优秀的地段基因将项目指向了城市高端公寓的定位。

※大区位关系

※小区位关系
总体规划
小地块(2.5万方用地)与高容积率(2.7)是项目的客观条件,规划如何解题是建筑师首要解决的问题,业主的诉求是清晰明确的:无T4楼型,无90方产品,现代气质,快速一轮多方案的比选工作后就明确了总图的策略,即通过周边多点楼的设置集约更多的资源,利用轴线错位关系布置大面宽楼王,最终实现了全二类高层且底层架空的格式总图。

※方案比选

※方案生成

※最终方案



※群体日景


※群体夜景
建筑设计
在确定规划格局之后,建筑师与业主之间已经有了默契,在讨论产品之时变得更加利落和开放,针对周边环境的喧嚣与繁华,建筑师与业主之间有一个目标共识,即建筑设计体现与周遭环境的反差与对比作为一个重要的切入点,同时,在杭州这样一个代表着全国住宅开发最高水准的城市,客户也是最挑剔的,随着经济不断的发展和社会高知人群不断涌现,越来越多的精英阶层开始明白住宅不只是可供居住的混凝土盒子,它可以是某种生活状态和审美情趣的展示。建筑师基于上述的研究背景和讨论结果,思考为先,建构与营造并行,提出了“Armani”风格的故事线思路,并与业主迅速达成一致。

就如Giorgio Armani所言,“Armani“设计遵循三个黄金原则:
1.去掉任何不必要的东西
2.注重舒适
3. 最华丽的东西实际上是最简单的,高度契合的设计理念使得最终的设计完美得呈现了这一调性——低调的奢华与适度放松的精英生活哲学高度统一。
如何把Armani故事线的逻辑适度地转换成建筑的叙事与语汇?建筑师通过不断地尝试与思考来呈现,一切围绕着空间营造与极简立面这个叙事核心来做减法。

※空间设想

※立面演化
卡奇诺金石材结合仿石辊涂铝板的干挂体系、横向拉通的铝型材线条、300厚的薄板阳台、大面积的玻璃门窗运用,这些非常“干脆“的材料及形式语言无一不映衬出项目想要表达的气质——“简”,正如安藤忠雄曾说:当去除了空间中一切装饰和表面性的物体之后,我们置身其中能够感受到的只有两种东西,插入黑暗世界的外界光线和自己踏过石板地的脚步声。但是,正是这光和脚步声,胜过了任何奢侈的建筑上的表现,创造出内涵无穷的空间。

※立面效果图

※点楼立面日景



※板楼立面日景



※立面夜景
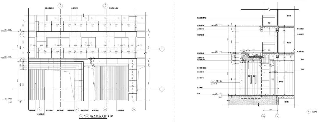
细部设计
建筑师对于细部设计地推敲往往脱离实际工程与成本的考量,容易陷入到繁复线条的堆砌,武林邸的细部设计试图避免这种情况,基于极简立面的叙事核心,项目的最典型细节是围绕层间的300线条而产生的,对于这个细部的研究,建筑师与客户做了多次探讨,从成本和施工的角度综合评判,最后呈现的铝型材细部通过卡扣设计拉通层间,干净纯净,并通过深色的处理在立面上体现了勾线的“细腻”。


※立面细部研究
近人尺度的商业和架空层处理,建筑师的处理手法张弛有度,比之标准段的研究,适度提高精细度,但又注意尺度与比例的控制,以期符合“Armani”的立意调性。

※楼栋入口效果图

※楼栋入口细部控制

※人行主入口日景

※商业配套日景

※层间细部日景

※层间细部日景

※架空层日景

※入口细部日景

※楼栋关系日景
后记

作为公建化人居设计的1.0版本,武林邸在整个项目的研究和落地的控制上取得了很多突破性的思维经验,为此后多个高精度的都市核心项目提供了广泛的借鉴意义,如何保持建筑师本源思考的同时又能兼顾客户和用户的诉求?如何在一个精度型设计项目里面控制设计边界的尺度?这都是需要一家优秀的商业事务所不断思考,不断努力,并通过持续的落地实践,才能向外输出模板和示范意义,这样的努力才是对土地的尊重,这也是G4+团队和AAI不断向前的最大动力。

名 称:天阳武林邸
业 主:天阳地产
地 址:杭州市拱墅区
用地面积:24541㎡
建筑面积:66260㎡
建筑方案:AAI国际建筑师事务所
景观设计:杭州午人景观设计有限公司
室内设计:方振华创意设计(杭州)有限公司、苏州金螳螂建筑装饰有限公司
联合设计:深圳华森建筑与工程设计顾问有限公司
幕墙设计:中山盛兴股份有限公司
施工单位:中天建设集团有限公司
建筑摄影:曾江河
业主设计师:高立、汪证、王海东
设计团队:Bill Fang、James Xie、Eden Cao、Chen Li、Spike Zhou、Joey Zhao、Zora Zhao、Wenbo Wang、Shawn Shao