探索上海法租界95平米老公公寓,武康楼隐藏的美墙公寓,带图书馆
对于上海人来说,法租界是浓浓的欧洲风情。
大家都认为留在这里只是佯装侵略。归根结底,还是因为历史的因素,这里才显得如此优雅、舒适。比如位于武康路和霞飞路的武康大厦(小编怀念旧时光,所以就用旧名了),红砖外墙,拱形走廊,欧式外墙,没有人会喜欢。我们以为里面隐藏着一间漂亮的公寓,让我们来看看吧。

武康大厦简介
它曾经是著名的匈牙利建筑师·邬达克·László·邬达克设计的诺曼式公寓。现名武康大厦,始建于1924年,已有近百年历史。这也是上海第一座连廊式公寓楼。该楼被誉为“上海最美公寓楼”。这并不完全是因为金城武和周冬雨的烹饪喜剧《喜欢你》,而是因为现代人逐渐了解了古老建筑的美丽。背景很吸引人。
武康大厦位于武康路与淮海中路之间。淮海中路是法租界时期著名的霞飞路,也是上海闻名的重要商业区。现在已经成为游客和年轻人观光的热门地点。

家庭用品
熊家位于武康楼。由于主人和他的妻子都有读书的习惯,尤其是妻子是小说的重度爱好者,所以屋里的书非常多,几乎就是一个图书馆。因此,大量书籍的存放和陈列就成了这个家庭最困难的收纳问题。AtelierTAO+C设计师刘涛以此作为改造的核心,希望将“书籍收纳”的需求转变为人、空间和城市之间的重要纽带。我们来看看设计师如何巧妙地编辑它:


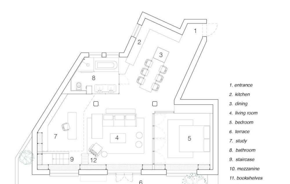
▲设计师更换后的平面图,是一栋老复式住宅。
聚焦转型
01.阳台窗外的景色
把风景搬到窗前,上海法租界尽收眼底
客厅的沙发直接朝向阳台,从而允许所有室外自然光进入室内空间。同时还享有法租界最宜人的欧式建筑景观。视野功能已完全激活。



02.开放式卧室
铜框玻璃隔断门营造出优雅通透的感觉
金属框架玻璃隔断门在欧美国家很流行。无论是黑铁框还是黄铜框,每个人都有自己的品味,都能装饰出轻盈明亮的都市魅力。阳台窗户延伸至卧室内部,使整个房子获得充足的自然采光。


03.图书馆墙图书馆的墙很高,到处都能找到书
图书馆是这座房子的一个主要特色。针对主人的阅读习惯和图书收纳需求,设计师特意将书柜变成了一面墙。从客厅的阳台墙开始,沿着楼梯对角延伸到跃层,形成一个直立的空间。书柜壁面可以一举将储物能力最大化!


▲插入书本之前的照片。

▲完整图书馆后的照片。

▲黑色的小桌子就像一件艺术品。是西班牙设计师JaimeHayon为意大利品牌Cassina设计的《Réaction Poétique》系列之一。

▲客厅的大理石桌子来自意大利顶级家具品牌Maxalto。


▲客厅还设有一个小梯子,方便像大书柜一样取书。

▲大理石楼梯通向二楼的阅读区,开放式餐厅和厨房区位于屏风书房的正下方。
04.独立的阅读区
悬挂书房,安静读书,优雅舒适品味
虽然本案注重通透的布局和开放的空间,但夫妻俩仍然需要拥有自己的阅读区域,因此设计师将loft改造成一个幽静优雅的阅读空间。如果一个人呆在卧室或客厅,则另一个人呆在卧室或客厅。您可以在这里安静地看书、看小说,成为家里最安静的文艺小天地。



▲日法家具品牌StellarWorks的休闲三角椅。
05.厕所
白底灰*图色**案的大理石,诠释奢华家居的感觉
卫生间沿用了卧室金属框架的设计,也采用了同样的设计语汇,并加入大量白色背景的灰色大理石元素,营造出高端家居的雍容华贵之感。


看完上海法租界这间优雅的老公家,你有没有得到什么装修灵感呢?