

文末附绿城安吉桃花源资料合集
不论你身在设计院,还是设计公司。你是否都曾为康养类项目加过班?没有做过的也别急,很快也能加入了!因为国务院已重磅出台:将康养小镇上升为国家战略!未来的康养类项目只会越来越多!!



国务院发布的《“健康中国2030”规划纲要》中指出,
应积极促进健康与养老、旅游、互联网、健身休闲、食品融合,催生健康新产业、新业态、新模式。
但其实,康养小镇项目的内容也并没有多难,只是要抓准人群需求和项目的特点。这样的设计才能更高效更符合甲方的心意。



说了那么多,康养小镇到底是个啥?
康养小镇是指以“健康”为小镇开发的出发点和归宿点, 以健康产业为核心,将健康、养生、养老、休闲、旅游等多元化功能融为一体,形成的生态环境较好的特色小镇。

康养小镇可以根据旅游者、居民的消费需求,将健康疗养、医疗美容、生态旅游、文化体验、休闲度假、体育运动、健康产品等业态聚合起来,实现与健康相关的大量消费的聚集。




康养项目的设计,又有哪些特点?
舒适的地理位置
适宜创建发展健康小镇的地区,一般应有良好的生态环境和气候条件,这是实现健康生活的一个重要的基础条件。其次再根据地势优势、环境特征、政策等,设计一些相应的健康产业设施。

一切以健康为主
健康小镇的产业应该是以健康为主的,如集养老产业、休闲农业产业、度假休闲、健康食品产业、体育产业等多个产业为一体的康养度假目的地。所以在设计上:
- 每一个建筑多用天然材料,注重环保和健康。
- 每一个细节都要以安全实用为主,建设保障设施,例如厕所隔间内带有扶手和呼叫铃等。
- 健康产业的分布合理化,保持动线的顺畅。

功能分布明确
康养小镇不同于一般的小镇,它的功能性更强。以体育产业为例,依托地形地貌及资源,发展山地运动、水上运动、户外拓展、户外露营等户外康体养生产品,推动体、旅、住、行、赛等业态的深度融合发展。



整体规模较大
因为康养小镇要将健康疗养、医疗美容、生态旅游、文化体验、休闲度假、体育运动、健康产品等业态聚合起来,因此项目占地面积通常会比较大,投资金额高。


优秀的康养小镇,是如何炼成的?

绿地集团作为世界500强的企业,建设了绿地安吉桃花源康养小镇。自建成以来,获得联合国人居奖,被誉为全球华人的身心健康增值小镇。这里我们也以此为例:
前期详尽的优势分析
无论是交通还是未来可行的健康产业、文娱项目。都进行了详细的分析和评估,保障未来健康产业的发展。





在地理上,绿地选择了森林覆盖率高达71%,天然大氧吧的安吉,安吉桃花源的负氧离子含量是上海的100倍,可以治愈人们被城市透支的健康。


设计的合理化
桃花源项目占地面积大,每个区域都规划详细,动静分隔明确,保证了活动范围的多样性。


细节不断地优化
在山庄和酒店的建筑设计上,不仅用了传统建筑的外形,更是营造一种院落的感觉。让人有身居田园,回归童年的美好体验。同时建设了很多健康产业,满足人们对健康生活的需求。





绿地安吉桃花源的成功必然远不止这些,但这些无一不是因为充分的前期分析和恰当的设计。
想要不加班,也能又快又好的设计出优秀的康养类项目,赶紧获取下方资料学起来吧!!!
绿城安吉桃花源资料合集
资料总预览
总文件夹

01-方案文本+前期分析

02-效果图

03-部分模型

04-1-5户型施工图

05-实景图集

部分内容展示一:方案文本















- 设计方案 -











- 建筑设计方案 -
部分内容展示二:SU模型







部分内容展示三:效果图展示

- 客厅 -


- 餐厅 -

- 书房 -



- 卫生间 -





- 卧室 -
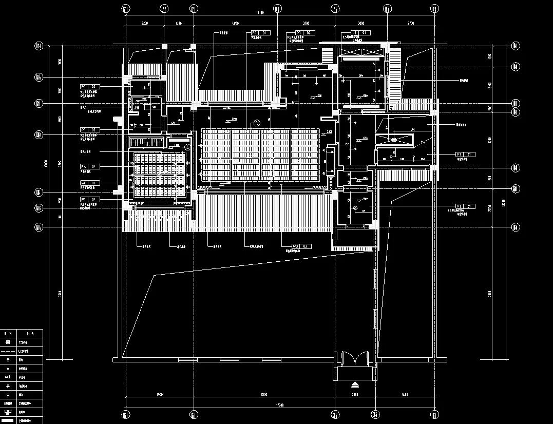
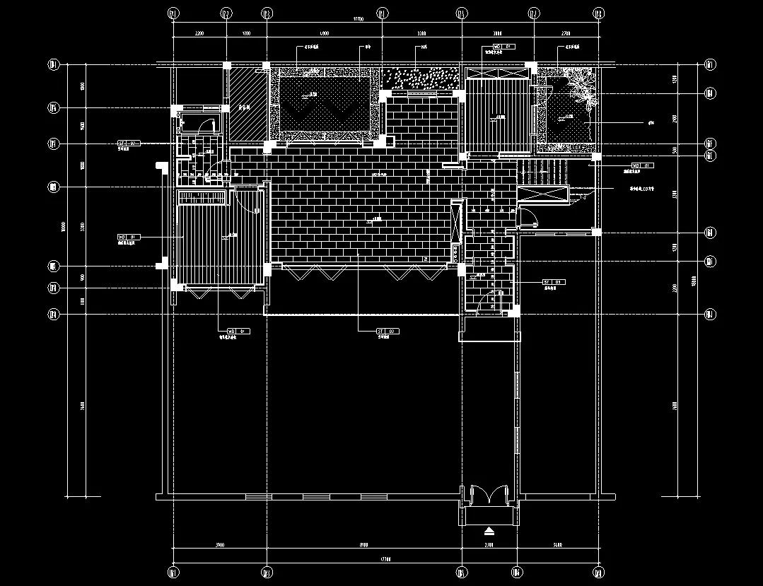
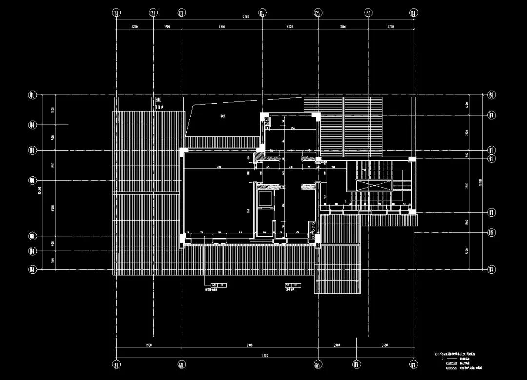
部分内容展示四:户型CAD








- 平面户型图 -






- 立面图 -
- END -
以上仅为部分预览就不在这里依次展示了 是不是没看够? 赶快去关注领取吧!
由于篇幅有限,胶囊君送给大家这套完整资料你一定会喜欢!
想要获取的设计师注意!关注+转发+私信:TT03,即刻获取!