
万科·青岛小镇
Vanke, Qingdao town
中国,青岛
Qingdao, China
青岛小镇以山海底色为灵感,背依35平方公里小珠山天然氧吧,三面环山。我们力求于自然间打造一处绿水青山式的生态场所,使得人和自然能在此和谐共生。

△从北湖望向建筑
01 | 场地
青岛小镇项目落位于小珠山山脚下,东、西、北三面环山,南侧距海约2公里。

△场地位置示意
场地四周视野开阔,但等高线呈现出复杂的走势,整体地势北高南低,东高西低。


△场地坡度与持力层现状
南北方向采用吊层策略形成阶梯状台地,东西方向利用地库解决东西向高差。


△台地处理策略
充分利用场地现状,结合规范梳理入口与道路。


△入口策略与道路生成
充分利用场地内外景观资源,同时借助轴线形成通廊,形成叠墅联排分区。


△规划生成与分区
内部各处景观细节延续建筑的沉稳和优雅,营造舒适自然的空间氛围。从人行口沿着湖畔的步道探索,通过特色铺装和湖景自然衔接为一体,浅水汀步,静石驳岸,营造自然质朴生态的空间感。

△湖岸望向建筑——建筑轻盈的落位于北湖之上

△低调雅致的人行入口

△项目内部的氛围营造

△山林簇拥着联排组团
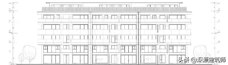
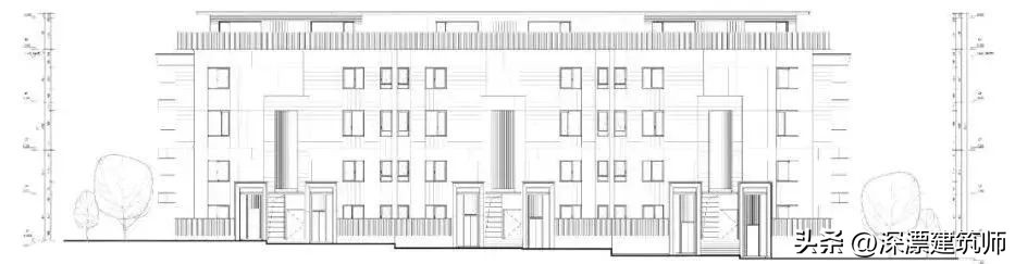
02 | 立面
建筑形体为更好地结合景观资源增加阳台及露台空间,通过多重框体系将其进行组织串联,金属斜面的边框设计减轻了建筑形体的体量感,使其更加轻盈的落位于山林之间。

△联排南立面

△叠拼南立面

△联排北立面

△叠拼北立面

△立面生成分析
项目以融于自然为先,设计师在材料上选择更契合环境的色调,以米黄色和浅咖色为基础色,奠定素雅内敛的基调,再以深灰色铝板勾勒出细节的轮廓,削弱了建筑的存在感,形成与山林和谐融通的整体印象。

△立面材质分析

△立面细部

△门头细部
03 | 户型
独栋式的层高、双首层迭代、全明落地窗、私家电梯入层、环景露台……多方位的场景体验带来的是全新的人居方式。

△室内挑空效果

△室内挑空效果

△露台观山湖


△叠拼户型平面

△叠拼户型剖面
—— 设计图纸 ——

△总图

△叠拼南立面

△叠拼北立面

△叠拼东、西立面

△联排南立面

△联排北立面

△联排东、西立面
△向下滑动查看全部图纸
工程档案
项目名称 | 万科青岛小镇·云台
项目位置 | 青岛市灵山卫街道办事处小珠山区域
建筑面积 | 94082.4㎡
业主单位 | 山东小珠山建设发展有限公司
建筑设计 | 上海日清建筑设计有限公司
设计总负责 | 宋照方
设计团队 | 张强,刘学杰,贺扬,张宸得,刘全义,吴任真,黄慧丽,蔡勇,徐琪
合作单位 | 青岛北洋建筑设计有限公司,深圳奥雅设计股份有限公司
设计时间 | 2021.05-2022.05 建筑摄影 | 战长恒