
这两家“春风习习”到底有多美,刘若英也想来打卡
火爆网络的春风习习读书会,此次又在繁华的三里屯为我们带来了新的阅读空间。随着朝阳城市书屋·春风习习馆的开幕,三里屯一公里阅读生活圈正式建成。身为春风习习老板娘的刘若英,也在微博上表示想去办活动!那么让我们来看看这“灯红酒绿”中的一处“小温柔”多么吸引人吧!

春风习习读书会 x 朝阳城市书屋
公共阅读空间在城市的文化肌理中举足轻重。此次,春风习习读书会和朝阳城市书屋展开有趣的合作,在三里屯街道的原有书屋建筑中进行一次快速的升级优化,以崭新的姿态承载更多的读者聚集在此。




三里屯街道人群熙攘,各类商业空间竞相开放。书屋在北区较为重要的交通路段,经过此处的游客和读者都能直接观看到整个建筑和内部构成。由于改造的周期短,建筑格局并未做太大调整,设计的重心则放在空间的交通优化和视觉调性的提升。为了让读者能更放松、更清晰得享受阅读空间,首先在设计策略上选取较为温和的设计语言去组织展开此次改造。



▲错层视角
由于周遭坐落了各类风格的建筑空间,且房子原本有长向的大玻璃窗展示空间,为了让书屋的在靠近主入口的外立面便去繁就简,我们用一个转角的白色墙面和落在地面的护墙板来平衡比例,强化建筑本身干净利落的体貌。



▲室内前台区域


▲阅读区
室内空间有足够的挑高,也天然得对功能分区进行了组织规划。首层的设计尽可能满足丰富的艺术类书籍展示和阅览座位。其中,可移动的坐凳和书架设计也为多种讲座、展览、小型演出等活动提供可变的空间模式。二层则主要由精选的杂志品类构成,同样能承载举办展览的功能布局和长向交通流线。主楼梯和吧台的连接在新的空间升级中异常重要,有利于书屋工作人员对外交流和运营管理。比重较大的栏杆设计中,细长条的扁钢阵列焊接,用轻盈的构成减弱楼板的厚重感。


▲移动长条凳



▲移动书架

▲主交通楼梯
我们在新店的设计中,延续了前门店的视觉要素,但在此处较为明快的空间内有新的质感呈现。不同比例的书籍陈列贯穿整个阅读空间,同时也引导着读者的即时体验。首层较为密集的陈列和二层的留白设计形成对比,也用此区隔了相应的书籍分类。

▲二层栏杆和通道


▲可就坐的木质盒子



▲阅读桌设计
阅读,始终是人们连接世界的方式,此次改造时间匆匆,相信在灯红酒绿的三里屯街区它依然是一个有趣温暖的场所,给每天同样匆匆来此的人群提供慢下来的选择。







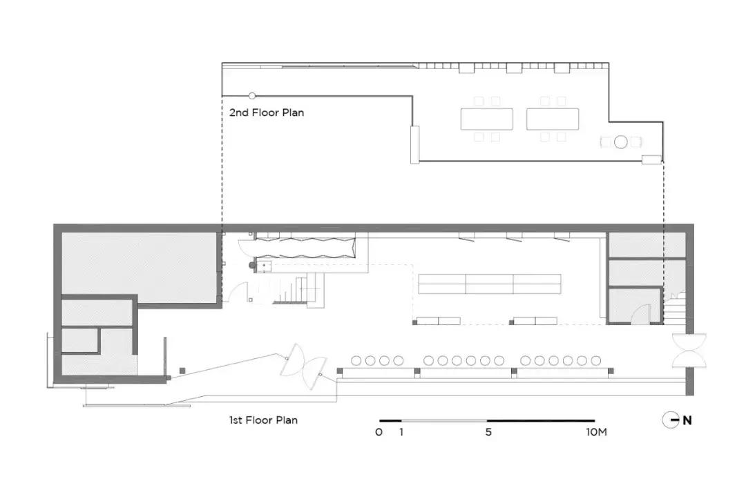
▲平面图

▲立面图
春风习习杂志图书馆
除了这个在繁华三里屯街道上的一缕“春风”,春风习习读书会在此前还对前门的一间河边小屋进行了改造。旧屋换新颜,作为一家杂志图书馆,刘若英本人也亲自在微博上为其打call:“春风吹起,该慢慢、走走、看看。聆听到的,会是内心最安静的部分。”下面就让我们来看看,这个火爆网络的书屋,是如何成为繁华都市里的世外桃源吧!


即便在临冬的北京,人们对旧城改造的热情也未衰减。在鲜鱼口街区内有一条新修的小河,数条老胡同穿插在一旁,常青的绿植和石子路显得尤为清朗。国内第一家杂志图书馆,“春风习习读书会”选址于此,这座河边小屋原是传统三开间的民宅,在经历了新的街区规划后位于开阔的视域中,带有一定的开放性。读书会的创办者和未来以北工作室希望通过改造,给现如今依旧喜爱纸本阅读,钟情艺术设计、音乐电影类杂志刊物的人们一个新的空间体验。

▲空间外观 Spatial-appearance



▲空间入口 Entrance

▲立面局部 Detail-of-facade
既为改造项目,设计的首要焦点是平衡老房子本身的古朴体貌和新加构筑之间的关系,让空间由内向外自然地拓展到街道景观中。屋内原有的木结构由于年久失修,部分已然歪斜破损,但经过简单的加固和修复,依旧牢靠可用。作为新添的构建材料,柚木配以钢材用来固定在选定框架中以保持原有空间结构的完整性。

▲树影下的小屋 Cottage-under-the-shadow

▲半开启的竖格栅 Half-open-vertical-grille

▲青石、绿地与空间相连接 Interface-between-stone-and-grass

▲入口通道 Hallway-space
在灰色水磨石的连接下,沿河的立面用节奏较为舒缓的矩形体块排布开来。其中主入口连接了室内吧台区域,将它们组合在一个盒子当中嵌入房间,形成了简洁明确的功能划分。为书籍展示和阅读讨论设计的大工作桌放置于敞亮的玻璃窗旁,停留在此能感受饱满和谐的阳光和窗外恰到好处的小河垂柳。西侧格栅折叠窗设计巧妙地在回应传统装饰语言的同时也可用于夏日遮阳。

▲通透的空间格局 Permeability-interior-pattern

▲铺洒在室内的阳光 Sunshine-slides-into-the-room

▲夜幕下的室内灯光 Lighting-under-the-night

▲格栅外若隐若现的景别 View-through-the-grille

▲可供阅读讨论的长桌 Reading-desk

▲落地窗前明净的视野 Open-view-from-french-window
书籍展示和分类是阅读之前的序曲。步入屋内,人们的视觉焦点自然转移至书架区,轻盈的白色钢板和木盒子的组合在空间内尤为醒目,各色书刊在尺寸不一的格架中向读者呈现。我们试图在紧凑的格局中营造松弛有序的体验,来此的书友在踱步、发呆或聚精会神的时刻都能找到合适的空间。目光移至吧桌区域,阳光透过竖向格栅和长条窗挤入室内,在不同材质间流动,触手可及。

▲吧台区域层叠的光影 Staggered-light-and-shadow-on-the-bar-c

▲吧台区夜景 Bar-counter-at-night

▲后窗风景 Rear-window-scenery

▲空间隔断局部 Detail-of-the-space-partition

▲安静的阅读角落 Quiet-reading-corner
“春风习习读书会”是创办者们的理想园地,因为阅读带来的感染力让大家始终热情于此。人、书本与空间三者的对话在这座河边小屋已经悄然展开。

▲阳光挤进木窗 The-sunlight-squeezed-into-the-grille-wind

▲格栅窗细节 Detail-of-grille

▲西侧长条窗 Long-window-on-the-west-side

▲钢质书架 Steel-bookcase

▲长桌上的刊物 Magazines-on-the-reading-desk

▲平面图 Plan

▲轴测图 Axon
在如今快速的生活生活方式里,人们在不断工作的同时,开始更多的追求生活美学。城市中这样单一功能的空间不多,店主希望可以为大家提供一个纯粹的阅读空间。春风习习,希望你可以在这里如沐春风。
项目信息 1——
Project Information 1——
项目名称:春风习习读书会 x 朝阳城市书屋
项目地址:北京朝阳区三里屯街道
项目面积: 220平米
主要材料: 花岗岩、桦木多层板、不锈钢、PVC编织地毯
项目信息 2——
项目名称:春风习习读书会—河边小屋改造
项目地址:北京东城区长巷五条
项目面积: 70平米