这是一个庭院改造项目,项目位于北京龙湾别墅,面积为130㎡。业主和我们希望营造一个实用和温馨的户外环境。宽敞的户外“客厅”,功能完善的就餐区,同时还要可以听到水的声音看到水流却没有一汪难以维护的水池。

进入大门是直通入户的园路,交通尽量便捷,抬高的道路两侧是砾石排水,甲南园林希望通过抬高的路面使入户即使在下雨天也是干净清爽的,便捷却不直白。
▼ 入口大门, The Main Gate

▼ 大门门牌及信报箱,The plaque on the main gate and the mailbox

▼ 入户的园路两侧是砾石排水,The slightly-lifted sides of the roads drain water through gravel

室外活动区通过空间的整合,保留了一个相对开阔的空间,墙面利用实用的隔板营造一个亲切温馨的活动场所,同时墙面的隔板变成了一个可以不断变化的富于生活气息的装饰墙。
▼ 亲切温馨的活动场所,A warm and sweet place for activity

▼ 从户外休闲区回看入口与通道,View from the Outdoor Activity Space to the Entrance

侧院以绿植为主,重点的服务功能也集中在此,室外空调机、仓库、犬舍、宠物淋浴等都集中在在此处,功能丰富但整洁统一。而作为点景的涌泉更是用之前闲置的石块改造而成,即保留了原来院子的记忆,同时通过打磨又展现了10年来未曾见过的气韵。
▼ 点缀着绿植的侧园空间,The sides of the yard are full of plants / 宠物淋浴,shower for pets


▼ 佛像的旁边是用之前闲置的石块改造而成的涌泉,The small fountain next to the buddies sculpture is remade by the unused stones

▼ 庭院的灯光进一步烘托出氛围,The lighting enhance the casual atmosphere of the garden






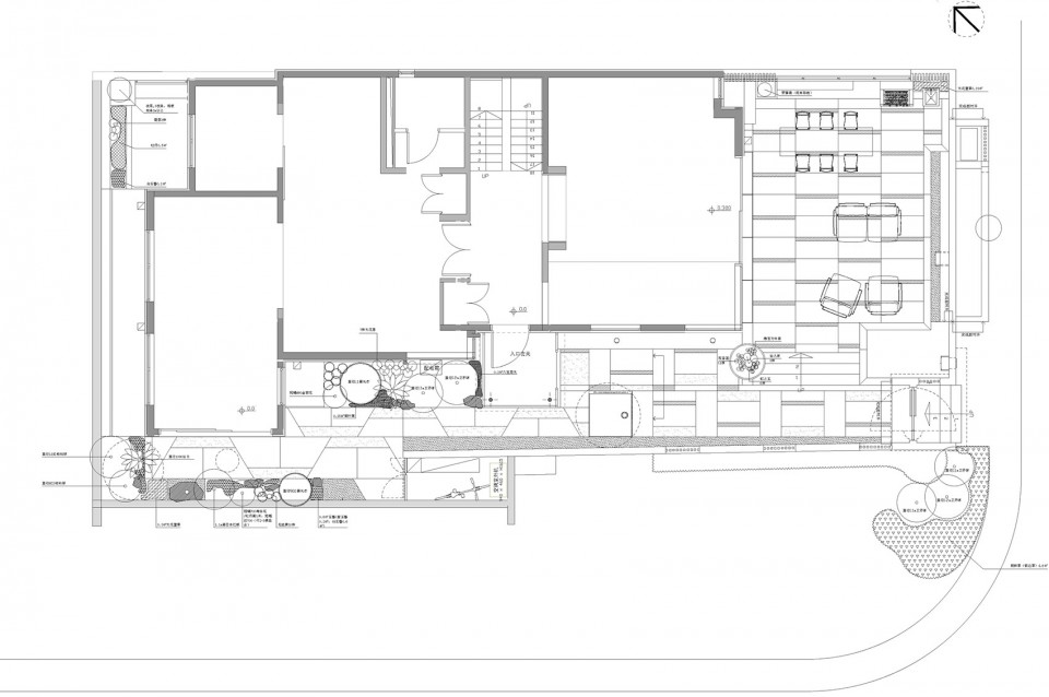
▼ 平面图,Plan

▼ 立面设计,Facade Design

