
Zaha Hadid Architects 最近放出了迪拜 Opus大厦的最新实拍图,显示这座扎哈生前全程主导的建筑遗作已经全部完工。酒店也已在 3 月初刚刚开放预订。

©Laurian Ghinitoiu
在著名建筑摄影师 Laurian Ghinitoiu 镜头下,Opus 简洁而精确的玻璃立方体形式与其中央的流动空隙形成了鲜明对比,整座建筑完成度超高,壮美的尺度完全超乎你的想象。

©Laurian Ghinitoiu
作为扎哈·哈迪德在迪拜的首个项目,她甚至包办了从建筑到室内的大部分设计,让这座大厦由外到内都布满她最招牌的曲线元素。

©Laurian Ghinitoiu
一进大厅更加感受直接,4层高的挑空中庭+曲线型回廊,在纯白背景下带给人无与伦比的轻盈、开阔感 ▽

空间中以浅金和香槟色作为点缀,暖色灯带沿着立柱和天花布置,勾勒出优雅高贵又颇具未来感的建筑线条。


©Laurian Ghinitoiu
当中陈列的“Petalinas”和“Ottomans”沙发色彩浓厚热烈,全部由 Zaha Hadid Design 设计。
预制模型制成的沙发曲线精确、造型独特,类似的定制款家具也被布置在酒店各处,形成整体风格上的统一。


©Laurian Ghinitoiu
接待处的金色墙壁镶嵌着花苞状向外扩散的线条。

©Laurian Ghinitoiu
整个空间中,你看不见锋利的棱角,呈现出一种向外扩张却又无比包容的状态,这也是扎哈作为伟大的女性设计师的独特烙印。

酒店、商业空间和办公室分布在 20 层高的大厦中,而项目的另一大核心——服务式公寓 Opus Residence 则占据了顶部的绝佳位置。

△公寓效果图
Opus 住宅系列将未来派时尚的室内设计与宾至如归的感觉融为一体。

每间公寓从风格到家具、灯饰均由扎哈专门度身设计,代表了极简设计感的巅峰。大师出手房价自然也很有「看头」,一套售价 600万人民币起,每平方米单价高达 74,320人民币。

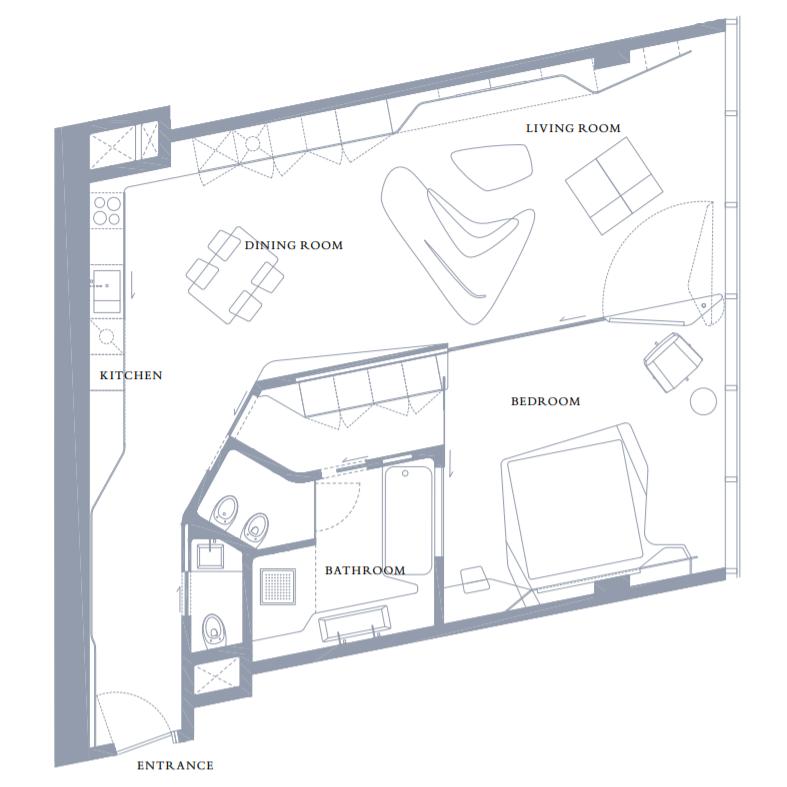
以沙漠为主题的一居室公寓面积约 91㎡,售价 880 万人民币,公区具备流动式的开放布局。

△平面图
优雅的中性色调融入奢华的金色元素,氛围时尚而简约。

最引人注目的金色吊灯出自扎哈之手,大理石餐桌来自意大利顶级家具品牌 Poliform,细致的做工与扎哈未来派的时尚内饰相辅相成。

厨房用具也同样品质卓越,这些品牌都是扎哈·哈迪德亲自从她的独家收藏中挑选出来的。

玻璃幕墙外贴有圆点贴膜,与纱帘、遮光窗帘之间形成渐变层次。

卧室这张床是扎哈亲自定制的,线条连续流动的床头板采用多重灯光设计,氛围渲染令人耳目一新。

向内延伸到步入式衣橱,整套家具也同样是扎哈的设计团队飞到意大利专门定制的。抽屉外侧安装曲线型把手。

浴室当中安装定制的流线型花洒套装 ▽

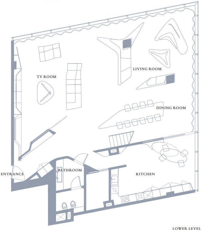
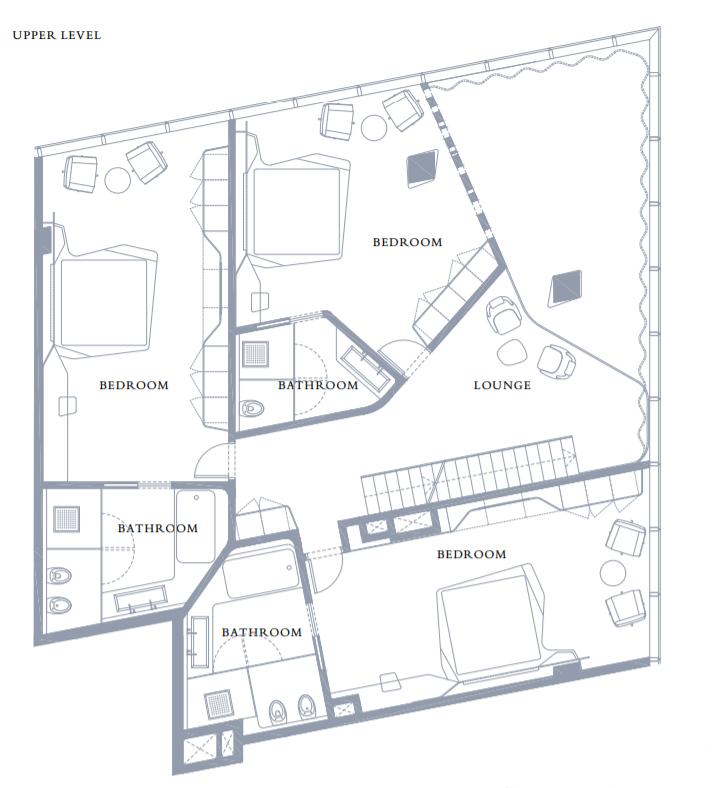
三居室顶层公寓面积 571㎡,售价 4700万人民币,为复式结构 ▽

△一层平面图

△二层平面图
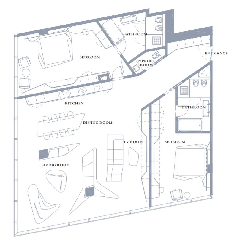
二居室公寓面积 208㎡,售价1800万人民币。户型方正,以线条张扬的家具组合而成开放的公区,注重社交属性和住户的空间体验感 ▽

点击观看完整样板房视频 ▽
大厦底部楼层属于五星级酒店 ME Dubai Hotel ,该酒店拥有 74间客房和19间套房,价格 1143/晚起,还包括ROKA日式餐厅和著名的MAINE Land Brasserie餐厅。

酒店共有 9 种房型,每个房间均由扎哈亲自设计,最小的客房面积 47 ㎡,最大的为三居室个性套房。

以经典的沙漠白和蓝色午夜为主题,辅以简约的黑白元素,和到顶全景落地窗,视野开阔明亮,营造舒适放松氛围。


客房的设计灵感源于天空、海洋和植物的有机的形状,结合了空间中的几何结构。

酒店卧室设有定制款“Opus”床,套房内还设有“Work & Play”组合沙发和配套书桌。

扎哈于 2015 年为 Noken Porcelanosa 设计的“Vitae”浴室系列也应用在客房中,延续了整个项目流畅的建筑语言,典雅的大理石带出五星级酒店该有的高级质感。



©Laurian Ghinitoiu
从概念设计到每个独特的细节都倾注了扎哈充满凝聚力的设计理念,探索了虚与实、透明与不透明以及内外空间的平衡关系。

覆盖双层隔热玻璃外墙的 Opus 占地 84300 平方米。设计中最为别致的部分正是它不规则的塔楼结构:

巨大的曲面孔洞像是融化的冰块,串联起左右两座塔楼和中间50米长的空中连廊,就「悬在」距离地面 71米的高空,有 3层高、宽度为38米。

它与中央的光滑的曲面一起呈现出自由流动的形态。

不单单强调出立方体的清晰度,而且还通过玻璃材质的反射性和不断变化的透明度使建筑的体量消隐于天际。
更值得赞叹的是玻璃幕墙和钢构件的设计制造工艺,厚度不等的平面、单曲面、双曲面玻璃和带有1.52mm PVB树脂层压板的透明玻璃构成了 4300 个独立的玻璃单元。

在加上双向弯曲的铝、钢框架,配合精确的 3D 建模才得以实现流畅的曲线型立面。

到了晚上,中央的孔洞会被安装在每块玻璃面板内的可调节LED动态照明装置点亮。进一步强调出建筑那浑然天成的曲线立面。
Opus 像一座灼灼生辉的巨大发光体,让周围的所有建筑都黯然失色。

不得不说,OMNIYAT 奥美地产真的选对了人,联手扎哈一起让这座斥资两亿三千五百欧元(约 18亿元 RMB)巨大立方体成为了迪拜 Burj Khalifa 区的永恒地标。

文项目信息、图片来源于官网
http://www.omniyat.com/project/the-opus/
https://www.melia.com/
©Laurian Ghinitoiu
版权归其所有
//
撰文丨Lilith
本文由一起设计原创撰写
欢迎分享到朋友圈
「一起设计」 专注于设计的新媒体品牌
