今天分享的是一套建筑面积93平米的北欧风三居室案例,整个房子的面积不算很大,但屋主没少在设计上下功夫,比如餐厅处的手绘龙猫背景墙和客厅处彩色木地板打造的小地台,营造出一个可爱、浪漫的文艺范小窝。

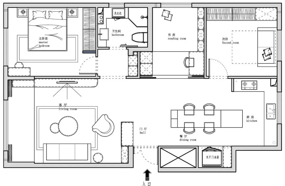
平面布置图

入户没有玄关走廊的户型,在入户门和客厅之间做了一堵矮鞋柜。另一侧就是餐厅空间,墙面选择手绘龙猫画作为装饰,显得更加可爱。

餐厅的另一侧就是厨房空间,两者之间没有装门,厨房的中岛台连着原木风的餐桌椅,冰箱被嵌入了龙猫墙边上的嵌入式餐边柜当中。
(ps:现在添加微信:qijiavh,即可预约全国300+城市的免费量房设计和报价服务!)

厨房的地面铺贴了六边花砖,灰色与白色、黑色的结合,搭配木色橱柜、白色墙面和吊柜,整个厨房给人一种简洁文艺的感觉。

客厅的空间不算很宽敞,所以茶几选择了迷你的款式,看起来更加宽敞。米色的布艺沙发搭配黑白色的地毯,点缀黄色的懒人沙发、单椅,更有北欧风的感觉。

客厅的边上还用彩色的木地板打造了一个休闲地台,彩色木地板一直延伸到了天花板上,书架搭配绿植、椅子,在这里看书很惬意。

主卧室给人一种温馨的感觉,墙面刷成了小麦色,床品选择了粉紫色,整体也木色的家具作为点缀,营造一个自然、温暖的睡眠空间。

书房内是做了榻榻米床组合书桌柜的设计,开放式的搁架既可以摆放书籍,又能用来摆放绿植、装饰品,结合榻榻米本身的收纳,储物空间非常多。

儿童房暂时作为一个娱乐、休闲室来使用,等孩子长大之后再来布置床,目前摆放沙发、留空大部分面积,做在地毯上靠着沙发看电视,非常舒服。

卫生间做了个L型的洗手台,还被洗衣机也嵌入其中,地面的黑白灰六边砖搭配洗手台的彩色花砖、藏光浴室镜的设计,显得很有格调感。