随着社会的发展进步、生活水平的提高,人们接触的资讯也慢慢多了起来,审美和生活品位也是越来越高了。
关于家装,很多人刚开始会抱着这只不过是刷个墙漆接着买套家具进去就搞定的事情,觉得设计很简单的同时又为了省钱,撸起手袖自信满满的就准备自行发挥。
但很多时候,这是件事倍功半、吃力不讨好的事情;别的不说,光是了解装修流程就能让你很头大:

下面,
设计姐来聊聊装修前到底要不要请设计师?
一、先了解下设计重要性
虽然设计很难,但总会有一些自信满满的人,满怀自信的自装,结果成了反面教材,比如说下面这几个:
①阳台砖都贴上墙了,忽然觉得地面墙面一样的砖会不好看,那地砖要怎么搭配?

②客厅装修到一半,不知道电视墙要怎么装了?

③书房装修好了,心血来潮想加装榻榻米?

很多人从网上搜罗了一大堆自己喜欢的效果图,以为自己已经做足了功夫。拿着别人家的效果图就去找装修师傅了:客厅电视墙按这张图装,客厅吊顶就这一张吧,沙发墙给我装成这样的,最后这张是地砖的,我都给你标好了别搞错了哦...

光光一个客厅就融合了数十个不同风格案例的特点,没有确定的施工图,那么装修师傅只能凭借自己的手感和经验结合自身审美自由发挥了。

最后出来的结果可能就是,明明都按图里的装了,已经做到形似了,为什么看起来会这么别扭呢...原因就是比例、细节各方面都考虑不周。

有了这些前车之鉴,很多人都想明白了一个道理——要请设计师!

讲真!与其自己瞎折腾,不如请一个设计师为自己减轻负担,省时省力更省心。

不过关于请设计师这个事,设计姐接触到的很多粉丝,他们担心这样的问题也不少:
①觉得本地装修公司水很深,提供的免费设计可能只是为了承包你的装修,从装修中谋取更大的利益;
②所谓的设计可能只是纯粹的表面功夫,在装修时完全可以自行脑补“设计”时的不足。

因为担心被坑,于是他们就寻思着要不要在网上找有影响力些的设计师,毕竟干货多啊!可是,网上找设计师的话,另一个担心的问题又来了——施工如何还原设计?
二、线上设计,能装出来吗?
简单来说,家居设计就是在了解客户喜好的基础上,结合风格定位,还要考虑配色、比例、材料、工艺、细节、业主生活习惯等等,量身打造一套适合业主居住的房子。

▲有关设计的作用,详细的可看设计姐之前文章。
然而线上设计,虽然设计图在千修万改费时费力最后总算出炉了,究竟能不能重现设计师交给自己的效果图呢?如果想要100%还原的哈,一般是很难做到的。

但也不用担心,在于家装设计中,只要施工细节方面,结合设计方案里的施工图,对材料跟尺寸处理到位,软装能达到80%的还原度,就已经可以做到非常棒的效果了!

下面设计姐拿了一个北京的异地设计案例,业主潘女士给我们是这样回忆的:
潘女士

装修日志
1.硬装
硬装方面的话,我基本没有操什么心,装修队的师傅们拿着施工图对照,尺寸啊、比例啊、材料啊、造型啊...什么的全都一目了然,硬装方面出来的效果也接近100%还原了。
①客厅

(施工图)

(效果图)

(实景图)
为了给亲妈特意做的十字绣腾个好位置,我还特别交代沙发墙的石膏线造型一定要做好,最后也不负所望。

客厅、玄关再到餐厅的天花吊顶都是不一样的,当时还很怕做这么多不同的吊顶会不会更容易出错,最后出炉了才发现,在一沓厚厚的施工图的基础下,这些担心是多余的。

②主卧

(施工图)

(效果图)

(实景图)
床头墙的石膏造型还原度还是挺高的,拿着细致到用料、工艺的施工图,除非是有问题的装修队吧,不然装修师傅想做得偏差很大应该也很难吧。
2.软装
装修的过程中对我来说最费时间和精力的就是挑!软!装!了。

(客厅设计图)

(实景图)
就拿客厅举个例子吧,刚开始的时候,因为当时硬装的还原效果已经很不错了,对软装自然也是信心满满的,毕竟亲自出马,肯定会更认真上心的。
后来发现自己方向走偏了,认真过了头,软装有好一段时间一直没有多大进展。因为自己太执着于选一款一模一样的沙发了。其实听设计师建议,选一套自己喜欢的、跟整体风格搭配的、尺寸合适的美式沙发就已经很足够了。
后面我一直都以这样的心态去挑软装,遇到拿不准的就咨询一下设计师的意见,最后出来的效果确实也很不错。
而沙发墙的十字绣就很简单了,亲妈的手艺信得过,绣得很大气磅礴!
3.与设计师的交流

前期:
当时强行跟设计师要了个硬装预算表,一共有47项支出,涉及到施工、材料工艺的预算(如果没施工图,根本就不可能做得到那么细致的预算表,所以很多人找装修公司说人家报价坑,其实也有一定关系的)。
心里有了谱以后,拿着跟装修公司出的报价表一对比,哪项费用有点离谱了一看就知道,装修师傅知道我有所准备了也不敢暗中增加额外的收费。最终自己在硬装方面支出大概15万,确实北京这边的人工支出要比其他地区贵不少啊。
后期:
不能去追逐百分百的还原度,因为实际装修时,用料啊、细节啊特别是软装多多少少都会有变动,这时候要追逐的就是设计图给你的感觉。
好像说得有点虚,比如说我家的是美式风格,当时的沙发选择是凭着自己的喜好和感觉找了几款美式沙发给设计师看,综合了设计师的意见最后也顺利定下来了,营造的感觉到位了就好。
个人总结的话,装修是一件既花钱又花力的事情。
钱的话,在施工图、设计图出来的时候基本已经有一个明确的范围了,设计师在设计的时候也已经考虑到了。
力的话,谁家的装修都是一样的,起码要经历大半年的来回折腾,想省事是不可能的,除非你心很大给装修公司全包...,但结果会怎样就很难说了。
业主晒家
下面给大家看看还没放出来的设计图和实景图,还有一些装修时的小插曲,拍照的时候家具还没有完全到位,请见谅

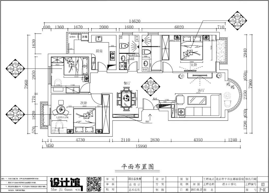
平面布置图

玄关

▲开灯以后,玄关砖墙上面的光影还有点小文艺的感觉。
客厅


▲在客厅里面总是不由自主就看向亲妈的十字绣~,非常的满意!
餐厅

▲在挑吊灯的时候,偶然看到这盏风扇灯,可以说是一见钟情了,心里就决定要买下它了!想着夏天吃饭时可能会热,最后就安在餐厅里面了。
儿童房


▲计划有孩子了,儿童房还不着急,暂时只有一个整墙的白衣柜~
主卧

▲这里是主卫,差点就放不下两个人的东西了(大部分都是我的

),卫生间的收纳真的很重要。
阳台


▲虽然我的家具还没到,但我的小盆栽们肯定不会迟到。

▲在摆家具进去时,因为餐桌还没弄好,实在忙了一天饿了,就在客厅简单随意地吃了一顿饭,装修的点点滴滴可以说历历在目。
看了潘女士的装修日志,不知道各位看官在装修前后有没有一些经验或者说特别纠结的问题可以给大家分享交流一下呢?

不过有个纠结的问题,设计姐是可以直接帮你解决的,那就是——设计的事儿。万事开头难,装修的事,一旦设计好了,就轻松多了。
买了房找装修灵感,欢迎加微信公众号:shejiguan_cn