中海半山壹号,这个项目最近作为南宁最高端住宅代表,已经成为南宁全民口中的“当红炸子鸡”,这个项目具体有多牛,我想也不用我多说了,前面我已经连续三篇文章《半山豪宅,何以如此令人向往?(上)》、《半山豪宅,何以令人如此向往?(下)》、《豪宅好户型,应该是怎样的?》,基本上把这个项目的各种豪横讲的比较清楚了。
如果你没有时间翻阅,那就看看以下几点也能了解个大概。
一
单体建筑—您与自然的距离,就是一面玻璃的距离
1、 只见玻璃不见墙

2、 开间大到受不了


3、 功能全到不想要
为节约空间,这里就不贴图了,自己去项目看吧,院墅,平墅样板间都已经出来了,可实地看了,墙裂提醒注意控制自己的言辞,别到时满口不断的“*靠我**,我cao,OMG,这TM的谁顶得住……”。
二
整体园林—一步一世界,一阶一时空
1、 山之门,一线之间两个世界

2、 洗心潭,菩提烦恼全忘掉

3、一步一世界,一阶一时空

上帝的会所-悬浮飞船

三
无敌江景—时光静流,江山尽收。


四
半山时光-与落日同辉

正如某位中海的道友所说:没有欣赏过半山的朝阳,落日,晚霞,繁星,不算真正体验到了这里的生活。


豪则豪矣,贵实贵矣!
据说院墅800万/套起,叠墅600万/套起……我等一家也就4口人,是不是太过奢侈了?
风水上说,“屋大欺人”,再有钱还是得适可而止,房子应该好一点,小区好一点,物业好一点,邻居质量高一点,这些都很对,但是房子也要合适自己的,不能一味贪大贪豪,最后落得个“镇不住”的结局。安家安家,住的安心的才是家。
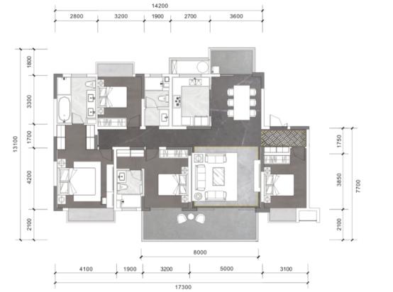
作为一个40-50岁的资深青年,我个人建议如果您像我一样家里只有4-5口人,看上中海半山壹号的话,还是选平墅最英明,尤其是那个171平米的平墅,户型图如下。

道理何在,请听我一一道来
1、方正
中国人受儒家思想影响颇深,讲规矩,重家族,重完整,香港电影里常说的一句:最重要的就是一家人齐齐整整。
我们购买房子时,首要就要看户型方正与否,除了户型整体要方正以外,内部的各个功能区也最好都是方正的,简单来说就是户型内部分区都是规矩的长方形或正方形拼接起来的,不会有多边形、三角形、梯形等异形出现。

从风水上来说,长方形和正方形也能给人“宽阔平坦稳定“的暗示,我们常讲“天圆地方”,“方”才能让业主心里舒适,相信自己运势良好。风水说到底就是用舒适的环境给人积极的暗示,助人常保积极心态,人的心态积极,身体往往就健康,工作生活也往往顺利……就是这么一个良性循环。
2、舒适性
我们来看看上述户型的舒适性在哪。
第一, 大开间短进深,采光通风极佳。

第二, 四间房,有三间朝南向,全部保证舒适开间前提下,三个具有套间性质(自带卫生间成套),客卧设置在入户门口附近,有利于保证业主家庭私密性。

从上面户型图,可以很清晰看出,主卧是一个南向4.1米开间的奢阔主卧,并带2.8米大开间衣帽间和2.8米大开间带浴缸的豪华卫生间的全功能大套间。
次卧一是一个南向3.2米大开间并自带卫生间的功能套间。
次卧二是一个北向3.2米大开间并紧邻公用卫生间的准功能套间。
客卧安排在入户门附近,是一个南向3.1米大开间单间,利于保证业主家庭的相对隐私。
第三, 南向5米奢阔开间的客厅,3.6米大开间餐厅,2.7米大开间厨房融为一体。
不仅尺度极为舒适,且家庭厅、厨房+餐厅聚集在一起,融合*界无**,非常利于促进家人和睦,共享天伦之乐。

第四, 南北对流大阳台,大飘窗,极致的人与自然*界无**融合。

第五, 动线非常合理,无论来客动线,家务路线,起居路线都非常简单直接,无任何曲折绕行。

2、 经济账
只买对的,不买贵的。
人生其实有三个非常重要的地方:房子,车子和办公室,我们一生呆的最多的地方大概就这三个地方了,所以有时候我甚至认为自己其实就是有三个“家”,这三个“家”我们都应该努力的配置好一点。但这里的“好”,不等于什么都要“顶极豪”,而是“合情合理,适度就好”。
如我等40-50岁的人,尚处于有机会上升阶段,那应该选择“略有推迟的满足感”,不要在尚处于上升阶段的时候一步到位直接顶级把大量的资金花费在房子、车子和办公室上,而是保留资金用于后期发展上。
中海半山壹号,很明显是南宁最好的高端住区之一,也是真正的首个半山豪宅,能入住这里的必然是社会上层人士,但即使上层人士也有分别,买院墅的肯定是终极置业的BOSS级,买叠墅的应该也至少是大名企的CEO/总经理级人物,如我等40-50岁的中小企业地方高管大概选择平墅才是最明智并且合乎身份的,显得“合情合理”,不会让人觉得“德不配位”之“僭越”嫌疑。
从经济账上来算,选择平墅产品(尤其是171㎡那款)是既保证了上层人士身份标签、居住舒适性足够同时性价比最高的方案。

据我所知,院墅价格大约800万/套起,叠墅价格大约600万/套起,平墅价格大约260万/套,其实不管买哪种产品,整个社区的园林、景观、会所、物业、邻居和社区地段、周边配套等等都是一样的,区别在于院墅叠墅是在自己家里就能享受最顶级的江景,园林,更宽大自由的多层室内空间,买平墅则可能需要走几步,去会所,去园林公用观景台才能享受到院墅、叠墅同样的顶级享受,但是“走几步”就可以省下大几百万,是不是算是“一步万金”了呢?
实际上,40-50岁的人(尤其是家里的经济支柱)“足不出户”的时间到底有多少?我所见的如我等中年男人基本都是“朝九晚九”“足不入户”的时候更多。
几年前,我家仔刚出生,就看到一篇文章《爸爸,你再不陪我我就长大了》,当时就流泪了,然后换了份轻松的工作,争取尽可能多陪陪孩子成长。
现在,仔上幼儿园了,为了生计,我又找了个压力比较大几乎天天加班的工作,每天上班前总是听我家那5岁的仔用那几近乞求的声音跟我说“爸爸,晚上早点回来陪我玩好吗?”然后晚上又打电话问我“爸爸,你什么时候回家陪我玩啊”,想想都觉得挺亏欠他的。
我们努力工作最终是为了生活,为了跟家人更好的生活,更好的享受天伦之乐。顶极豪的房子、顶极豪车固然好,但是一切还是要服务于“更好的生活,更好的享受天伦之乐”。
这里再次建议,如果您像我一样处于40-50岁的年纪,从事一份具有较大压力的中小企业地方公司高管的工作,看上中海半山壹号的半山豪宅的话,建议选择平墅产品,首先考虑171平米那款,既是在不太大经济压力下给自己一个半生的工作成就的奖赏,也给未来“终极置业”留有一丝念想,一点动力。
3、 邻居价值
想想这一生对我们影响最大的是谁?
也许每个人有不同答案,但我自己梳理了一下,其实就是家庭,学校,公司,社区。
家庭出生给了我们人生起点平台,学校给了我们往上走的本领,公司给了我们往上走的机会,社区给了我们往上走的非工作关系的外部资源并给了我们下一代的起点平台。
“人以群分”,“远亲不如近邻”,社区里的邻居就是一个人群,一个圈层,社区邻居的素质高低往往决定了社区的每个家庭成员的素质高低(人有从众性)。

华润幸福里的业主邻居和华润二十四城的业主,不是一种人群;中海御湖熙岸和中海半山壹号的业主应该也不是同一群人,这些楼盘里的业主个人素养和担任的社会角色及能调动的社会资源不一样,同样,这些社区业主相互间合作的可能性和成就的事业也不一样,与此同时,这些社区里成长起来的孩子的起点也不一样。
中国是一个“家族式”文化很重的国家,“关系”很重要,我们属于哪个“家族系”,与谁有“关系”真是关系很多方面。
所谓“孟母三迁“、“千金买邻”,绝对是千百年留下来的精髓。每一个社区的出现,都是一次新的“人以群分”的机会,中海半山壹号,给了南宁上层人士一个绝好的新的“人以群分”的机会。
4、 尊崇性
上面我已说了,人的一生受“家庭,学校,公司,社区”影响最大,同时人的一生得到的尊崇也大部分来源于这四个方面。
“红二代”“官二代”“大院里出来”的就让人暗生羡慕;哈佛大学、麻省理工傲视全球,清华大学、北京大学傲视中国;苹果、微软傲立全球,华为、阿里巴巴雄踞中国……
南宁华润幸福里开启“南宁城市核心区高端大宅”新时代,南宁中海半山壹号开启南宁半山豪宅新时代。

相信以后中海半山壹号的业主,被知道家在中海半山壹号以后,很多事情都会顺利很多,中国这个社会,你懂的。
行文这么多,文末再次建议如我等40-50岁的中年男人,中海半山壹号确实是一个值得拥有的理想居所,更强烈建议使用巧劲入主这个开启南宁半山豪宅新时代的项目。
平墅,171㎡的平墅,是最合适的选择。
当然如果觉得还可以网上一点的话,198㎡和208㎡的平墅也是很好的选择。
