
近日,教育部公布了2021年度普通高等学校本科专业备案和审批结果,安徽省有30所省属本科高校获批82个本科专业, 其中,安师大皖江学院获批7个新的本科专业,数量位居全省第一。
这7个本科专业是什么?为何设立这几个新的专业?带着这些问题,大江资讯记者日前采访了皖江学院教务处相关人员。
新专业进一步优化学科结构

根据教育部相关通知, 皖江学院此次获批7个新的本科专业为:微电子科学与工程、集成电路设计与集成系统、机械设计制造及其自动化、智能制造工程、新能源汽车工程、无机非金属材料工程和高分子材料与工程。
随着这7个专业的获批设立,目前皖江学院已经形成了涵盖工学、理学、管理学、文学、经济学、教育学、法学和艺术学在内的8个学科门类,专业结构进一步优化。
聚焦芜湖发展打造学科集群
大江资讯记者了解到,近年来,皖江学院依据“应用型、地方性、特色化”办学定位,按照“围绕地方经济社会发展,契合区域产业需要,打造学科专业集群”的原则, 聚焦芜湖市相关建设发展目标,积极设置了系列社会急需专业。

▲陈剑/摄
今年新增的7个专业紧密契合芜湖市智能网联汽车、人工智能、新能源等产业发展需要, 是皖江学院推进人才培养与当地行业产业需求融合,实现人才链、创新链与产业链精准对接的有力举措。
目前,通过不断优化调整专业结构,皖江学院逐步形成了 结构优化、特色鲜明、契合芜湖区域经济社会发展需要的汽车工程类、材料化学类、智能制造类、大数据与人工智能类、集成电路类、人文教育类、艺术设计类、财经管理类等八大应用型专业集群。
专业获批细节披露
据介绍,当下各高校推进学科专业优化调整的步伐日渐加快,各类高校特别是应用型本科高校,初步形成了与地方经济社会发展需要相适应的专业结构。此次学校申报7个新的专业并获批,也是“有的放矢”。
大江资讯记者了解到,皖江学院目前正处在“转设”过程中,为契合芜湖市地方经济社会发展,学校从教育部颁布的相关专业目录中选择,并综合考虑学校的硬件、软件和师资等条件,选择申报了以上专业。
据了解,已经获批的7个新专业或两年以后才进行新生招生。 学校要在教育部正式下文,即成功转设为芜湖学院(公示名)之前,“为芜湖学院的未来发展做专业储备”。
相关人员表示,安徽省目前正在加快打造“三地一区”(打造科技创新策源地、新兴产业聚集地、改革开放新高地、经济社会发展全面绿色转型区)建设, 为更好服务芜湖经济社会发展大局、推动当地高质量发展,这7个专业的获批正当其时。
皖江学院转设有序推进
关于皖江学院的转设进程,大江资讯记者梳理了相关时间线:
1
1949年,芜湖市立师范学校创立。
2
1979年,改建为芜湖师范专科学校。
3
2005年,芜湖师范专科学校整体并入安徽师范大学,并更名为安徽师范大学皖江学院。
4
2019年,在相关榜单上,皖江学院在全国师范类独立学院排名榜单上位列第八。
5
2020年3月,芜湖市政府与安徽师范大学正式签订转设框架协议,皖江学院的转设之途正式启航。
6
2021年5月,学院设有10个院系,54个本科专业,在校生8803人。
7
2021年6月,教育部官网发布《关于拟同意设置本科高等学校的公示》,拟同意安徽师范大学皖江学院转设为芜湖学院。
8
2022年2月,安徽师范大学皖江学院获批7个新的本科专业,数量位居全省第一。
新校区建设按下“快进键”
2020年12月,皖江学院新校区一期项目发布规划建筑设计方案,标志着皖江学院新校区的建设迎来了实质性的进展。

▲皖江学院一期项目。杨大伟/摄
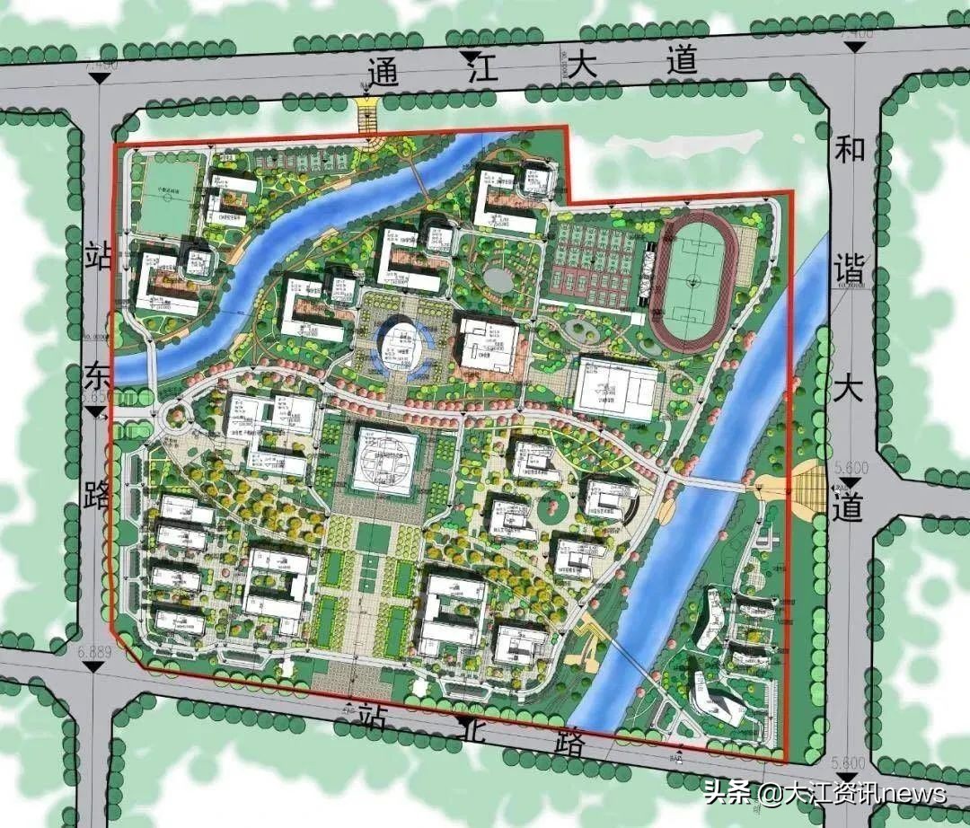
皖江学院新校区一期项目位于江北新区,芜湖北站的东北侧。 北至通江大道,南至站北路,西至站东路,东至和谐大道。项目总建筑面积约35.55万㎡,其中地上建筑面积约32.5万㎡,地下建筑面积约3.05万㎡。

▲皖江学院新校区一期项目位置图
根据规划,皖江学院新校区总占地约1000亩,规划建设教学楼、图书馆、体育馆、学生宿舍、食堂、国际学术交流中心、四个研究院、产教融合园、产业孵化基地等, 规划在校学生20000名,目标是建设省内一流、国内领先的高水平应用型大学。
2021年5月,新校区一期南片区项目开工建设, 此项目总建筑面积约6.8万㎡,包括新材料与环保学院、汽车学院、智能制造学院、微电子学院、教学楼和实训工厂等7栋单体。

▲皖江学院新校区一期项目效果图
2021年10月,芜湖市正式启动“双百攻坚”活动,按下人民城市建设“快车键”。皖江学院新校区一期建设项目积极落实“双百攻坚”目标,根据项目特点,制定了详细的攻坚建设计划。
2022年1月,新校区一期南片区项目7栋单体均已封顶,正在进行墙体砌筑、内墙粉刷等工作, 计划2022年5月底基本完工。
2022年3月,新校区北片区项目总建筑面积约28.93万㎡,包括图书馆综合楼、会堂、体育馆、食堂、宿舍等19栋单体, 该项目于2021年12月底完成了招标手续,现已全面开工,预计2023年6月完工。
起飞,皖江学院准备好了!
▍ 记者:田龙
▍ 编辑:邢嘉
▍ 部分图片来自皖江学院网站