所展示案例价格均为不含主材的半包价格, 个别方案若含有主材的价格,会另外标明的~装修不易,且装且珍惜!天凉好个秋,南昌业主装修不用愁哦!这里汇集了南昌各大楼盘欧式风装修效果,想装欧式风格的,一次看个够!想看实景的亲可以直接微信预约。
张宗宝原创设计/丛一楼装饰张宗宝
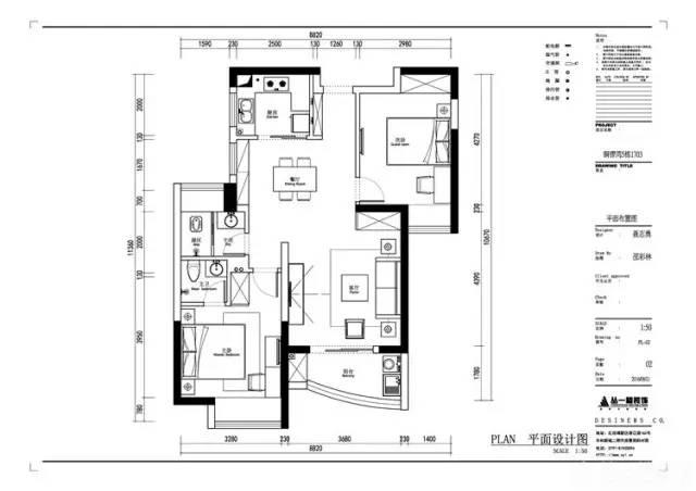
正荣十里江山139平欧式风
设计师:张宗宝(13870823590)
职务:首席设计师
设计单位:丛一楼装饰
城市:南昌
楼盘地址:正荣十里江山
户型:三房两厅
面积:139平方米
风格:欧式
造价:10万
设计用材:
新中源精工玉石、欧派橱柜、水曲柳索色、科勒卫浴
设计说明:
布局上突出轴线的对称,恢宏的气势,豪华舒适的居住空间。效果贵族风格,高贵典雅。细节处理上运用了石材、雕花、线条,制作工艺精细考究。

客厅

主卧

次卧

平面图
贺嘉原创设计/丛一楼装饰贺嘉
绿地玫瑰城300平别墅欧式风
设计师:贺嘉(13870823590)
职务:首席设计师
设计单位:丛一楼装饰
城市:南昌
楼盘地址:绿地玫瑰城
本案面积:300平方
本案户型:叠墅
公司部分造价:二十七万 主材造价:五十万
主要用材:护墙板,石材,呼吸涂料,墙纸,硬包…….
设计说明:设计师通过拆除局部墙面,采用全新框架,使空间中的流线更顺畅。通过这个设计重新思考所谓全新的人文精神与个人的创作观点,极度精简的停格画面,通过色彩与材质的演绎,勾勒出一幕幕精工剪辑的经典画面。空间中所有的立面材质,强调统一的天际线与精确的切割比例。灵活的动线和环境机能的配置,是空间如此迷人的主要原因。

客厅
主卧

次卧

平面图
聂志勇原创设计/丛一楼装饰聂志勇
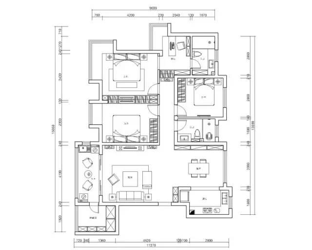
铜锣湾广场91平两房现代欧式风
设计师:聂志勇(13870823590)
职务:首席设计师
设计单位:丛一楼装饰
城市:南昌
楼盘:铜锣湾广场
户型:2房2厅
面积:91平方
风格:现代欧式
半包预算:9万
项目:1、水电;2、墙地砖安装、防水防漏;3、天花板造型、墙面造型、电视墙造型;4、墙、顶面漆;5、地板、防潮处理;6、灯具、洁具安装
主材:大理石、抛光砖、实木地板、灰镜、墙纸等
设计说明:本案例是现代欧式,力求简约温馨。

客厅

主卧

平面图
戚田彧原创设计/丛一楼装饰戚田彧
国贸阳光136平三房欧式风
设计师:戚田彧(13870823590)
职务:首席设计师
方案出品:丛一楼装饰
城市:南昌
楼盘:国贸阳光18栋
户型:三室两厅
面积:136平
造价:11.5W
风格:欧式风格
主材:欧式大理石线条、石膏线条,银箔,波打线,灯具、洁具、整体厨柜、实木门、墙纸、衣柜家具等
项目:
1、水电;2、墙、顶面漆;3、天花板造型、墙面造型、电视墙造型;4、墙地砖安装、防水防漏;5、地板、防潮处理;6、灯具、洁具安装。
设计说明:
本案风格定位为欧式风格,在家私上配时尚简约明快。整体风格营造典雅、自然、舒适。浪漫时尚是本案的主题,以舒适机能为向导,强调“回归自然”使变得更加轻松舒适温馨。高雅的生活空间能让人身心舒畅。色彩对比凸出造型立体,变形的直线与曲线相互作用构成室内温馨的气氛。让室内显示出温馨、时尚的特点,充满强烈的动感效果。
在本案中,阳台空间的改动,在使用上更协调。让原本较小的餐厅变得宽敞,客厅餐厅及过道吊顶区域空间分布,使整个空间更显通透。温馨的空间,附有文化之气息,具有浓郁的设计韵味及品味感触,后期饰品的精心陈设,使居住温馨之和谐。

客厅
书房

主卧

平面图
万娟原创设计/丛一楼装饰万娟
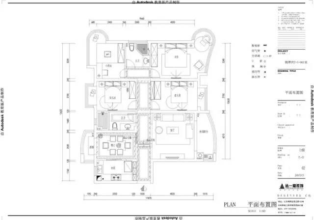
铜锣湾广场155平四房欧式风
首席设计师:万娟 (13870823590)
项目地址: 铜锣湾广场
城市:南昌
面积: 155平方
房型:四房二厅
风格:欧式风格
工程造价:半包17万
主材:
抛釉砖、实木地板,硬包,大理石,灯具、洁具、造型花格、无机呼吸涂料、墙布、实木家具等
设计思路:
本项目风格定位欧式风格。给人的感觉端庄典雅、高贵华丽,具有浓厚的文化气息。在家具选配上,一般采用宽大精美的家具,配以精致的雕刻,整体营造出一种华丽、高贵、温馨的感觉。使色彩看起来明亮、大方,使整个空间给人以开放、宽容的非凡气度,让人丝毫不显局促。
在本案中,餐厅、阳台、及卫生间都全面做了方位空间的改动,在使用上更协调。客厅餐厅及过道吊顶区域空间分布,使整个空间更显通透。高雅温馨的空间,前卫而富有文化之息和时代感,具有浓郁的设计韵味及品味感触,后期饰品的精心陈设,使居住温馨和谐。

客厅
餐厅

过道

平面图
叶子原创设计/丛一楼装饰叶子
紫金城142平三房欧式风
设计师:叶子(13870823590)
职务:首席设计师
设计单位:丛一楼装饰
城市:南昌
楼盘:紫金城15栋
户型:三房两厅
面积:142平方
造价:17万 (不含主材)
面饰:水曲柳扫白留纹、马赛克、硅藻泥等
主材:仿古砖、实木橱柜、洁具、实木地板、灯具、五金等

客厅

卧室

平面图
李彩虹原创设计/丛一楼装饰李彩虹
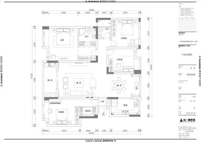
凯美怡和160平四房欧式风
设计师:李彩虹(13870823590)
职务:首席设计师
出品:丛一楼装饰
城市:南昌
楼盘地址:凯美怡和
户型:四房两厅
面积:160平方米
风格:欧式
公司造价:12万
设计说明:
本案例是一套四室两厅结构,南北通透、户型方正,平面上不需要做大的改动,把原建筑的主卧做多了一个衣帽间以增大储物空间;业主是位成功人士,此套房子是给父母居住,整体风格要求为欧式,全房经典欧式墙布,电视背景大面积用的是木制护墙板和隐形门做的对称的效果,既高端大气上档次,米黄色的整体色调又不失温馨;餐区地面与客厅整体大面积精致欧式铺贴地砖既美观又大气;主卧更是以温馨和舒适为主,多光源的天花造型与床头皮质软包,享受生活就该如此;一起期待完成之后的惊喜吧!

客厅

餐厅

平面图
-------我是华丽丽的分隔线--------
如果你正打算装修,咨询装修问题和报价,预约设计师微信号:13870823590(仅限南昌),觉得在手机上看图不舒服?联系我给你全套大图。 幸福宅 大设计 最高十万装修免单大奖,你还在等什么?