关于高州市中医院南院区(原市第二人民医院)内科楼位于高州市石仔岭用地规划方案的公示
公示说明:
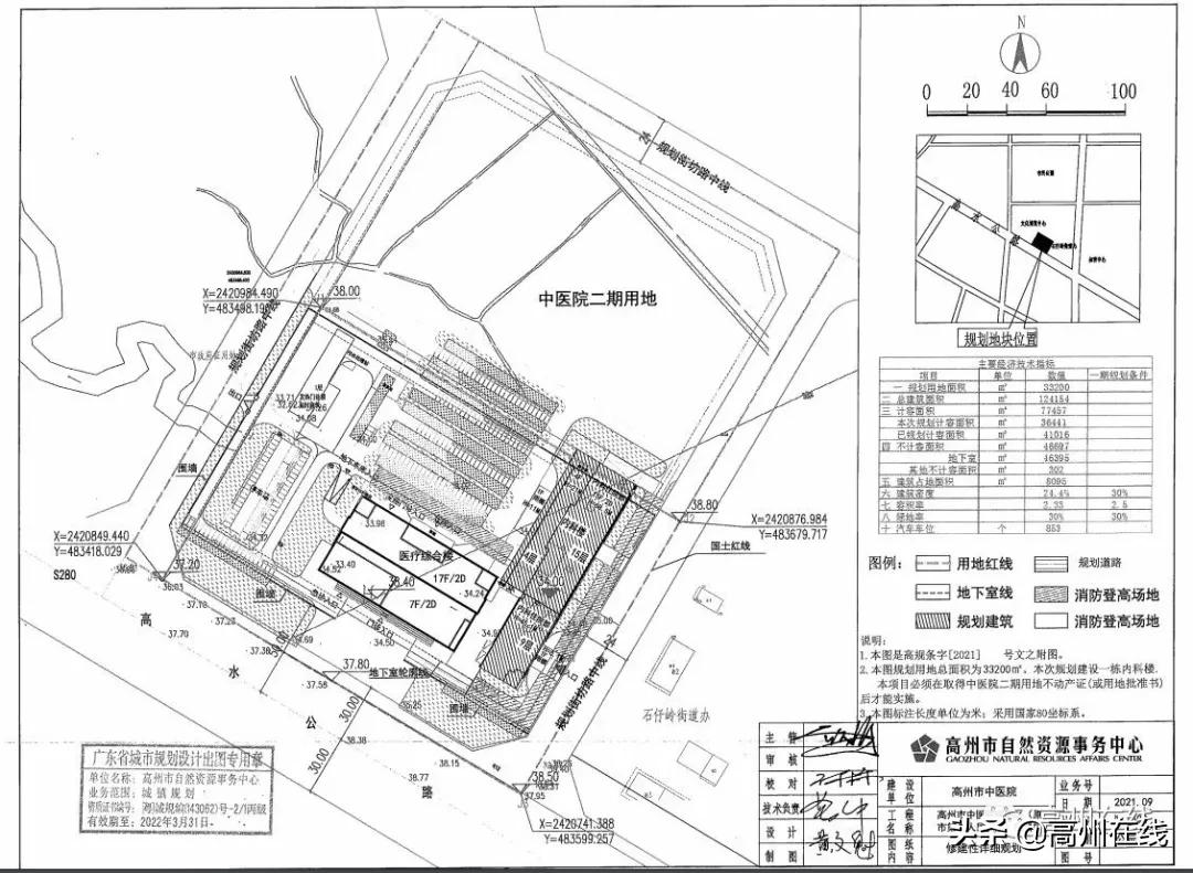
高州市中医院南院区(原市第二人民医院)内科楼申请办理位于高州市石仔岭用地规划方案手续,用地面积33200平方米(详见总平面图)。根据《广东省城乡规划条例》及相关法律法规的要求,现将该方案向申请人和利害关系人进行公示,公开征询意见。
建设单位(个人)名称:高州市中医院
项目位置:高州市石仔岭(石仔岭中医院)
申请内容:规划方案。
主要技术经济指标:
1、用地性质:医疗用地(A5)
2、总建筑面积:124154㎡;
3、容积率:2.5;
4、绿地率:30%
6、建筑密度;30%;
7、汽车车位:853个


高州市中医院南院区内建设内科楼
项目名称:高州市中医院南院区(原市第二人民医院)内科楼建设项目勘察设计
建设地点:高州市中医院南院区内
工程概况:项目总占地面积为 5400 平方米,项目总建筑面积为 48600 平方米,其中地上1-20 层作为中、西医内科及职能科综合用房,建筑面积为 37800 平方米;地下二层停车场,建筑面积 10800 平方米。
招标范围及内容:本项目范围内的岩土工程勘察(初测初勘、详测详勘、施工过程的补勘及施工超前勘察等)、初步设计、概算文件编制及修改、施工图设计及后续服务等工作。
勘察设计工期:勘察设计周期:90
日历天。其中勘察周期为合同签订后岩土工程勘察 30日历天内提交勘察成果文件,施工超前勘察为设计出具施工超前勘察后 30 天内出具施工超前勘察成果文件。设计方案经招标人和政府相关部门批准后 25 天内完成初步设计,初步设计批准后,
施工图设计周期为 35 日历天。
本项目设计类型为:工程勘察、工程设计
招标控制价:8620000.00 元,其中,设计费:6343000.00 元,勘察费:2277000.00 元。
#高州##茂名##茂名头条#