
▲ 点击“火柴设计联盟”,关注设计互动平台 每天更新,喜欢的可以点赞关注转发哦!
滑到文章底部获取免费资料
《普利斯设计》┆『成都中德麓府建筑』设计方案JPG+PDF┃效果图JPG┃设计施工图DWG+PDF┃官方摄影JPG┃物料详解PDF┃机电给排水图DWG+PDF┃3D MAX SU模型┃景观方案设计JPG+PDF┃3.19G〖火柴设计联盟〗第2059期
▼ - 部分作品阅览 -
1.项目概况
中德麓府位于成都市天府新区麓山,由成都新元素置业有限公司建成,总建筑面积650000,总占地面积218001,共计房屋625户,小区物业公司为成都衡信英伦物业管理有限公司。
麓府项目集中式合院、美容主题商街、新中式高层等业态于一体,致力于打造麓山首屈一指的低密高端社区。











2.资料截图

3.景观设计























































4.概念及效果图































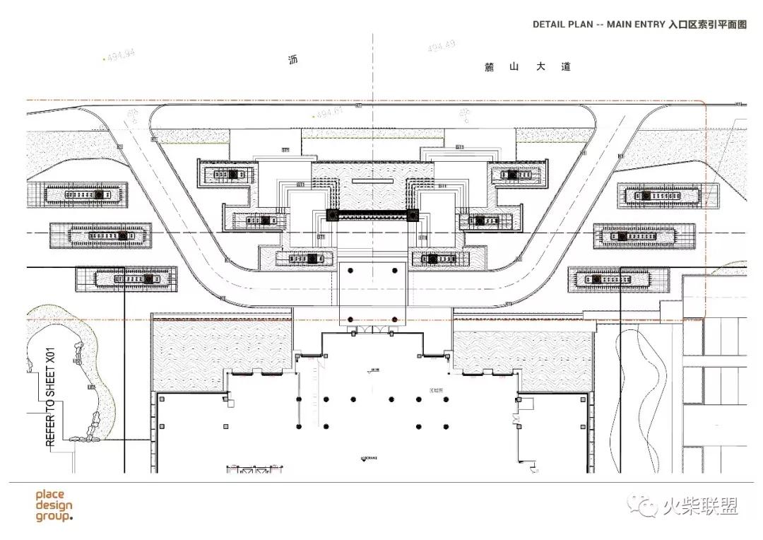
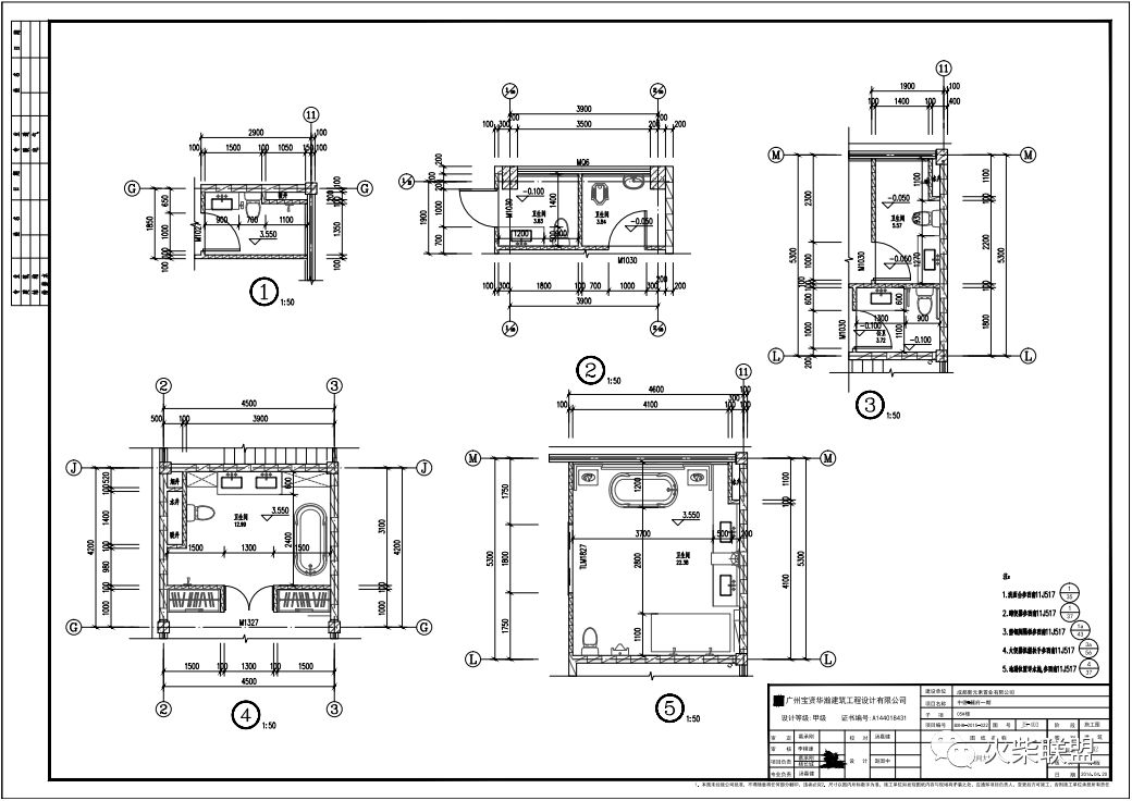
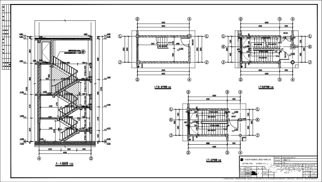
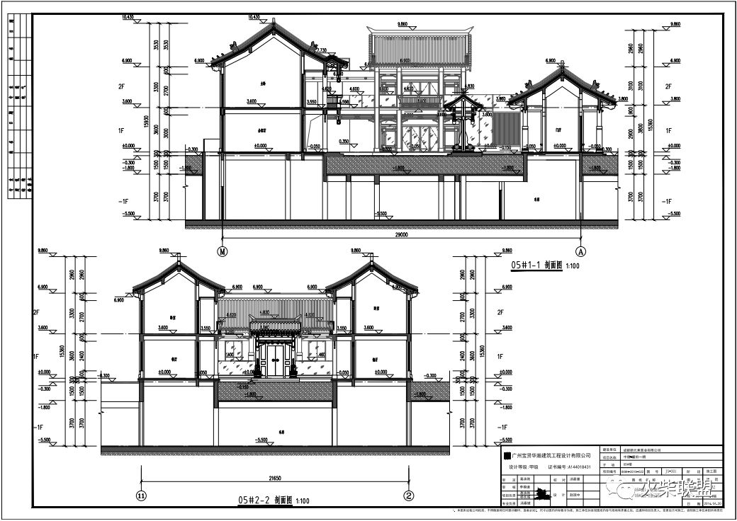
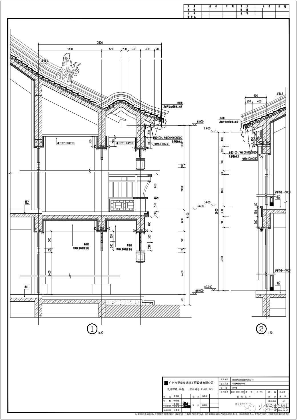
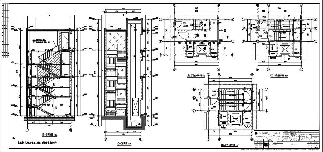
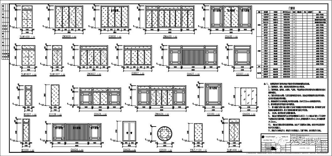
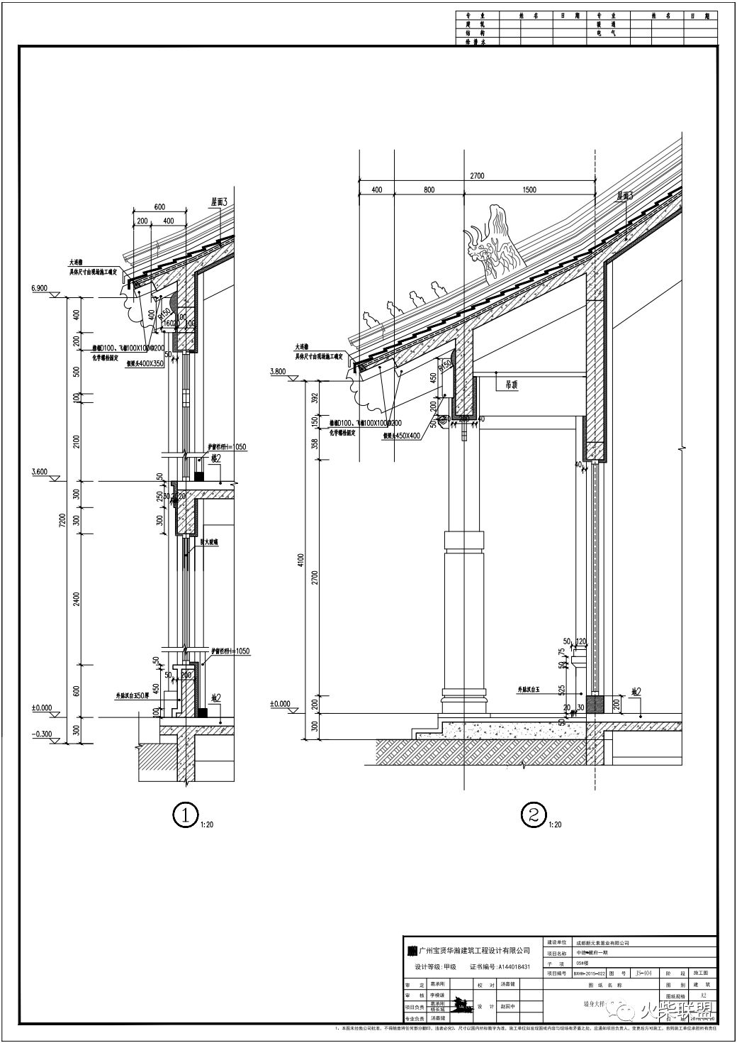
5.施工图样图





















中德·麓府,地处国家级战略特区——天府新区,项目占地300余亩,是继中德·英伦系联邦之后中德在城南又一重磅产品。麓府项目集中式合院、美容主题商街、新中式高层等业态于一体,致力于打造麓山首屈一指的低密高端社区。
在合院产品上,公司投入重金精研产品,形式上严格遵循古建规制,工艺上进行独有创新,将传统与现代工艺融合,大至院落形制,微至一砖一瓦均严苛把关,致力打造正统的中式大宅、官家府邸。同时,项目大手笔引入瑞士、日本、韩国尖端生命科技,涵盖美容、养护、抗衰等全生命链服务体系,真正打造一站式、立体化“生命”产业中心;在高层上继续秉承“关爱”的理念,在原有英伦联邦九冠品质的上进行全新升级,以全新新中式风格锻造,未来将打造为麓山板块新贵青年的生活主场,天府新区之上的空中府邸。
【作品名称】:『成都中德麓府建筑』
【作品内容】:设计方案JPG+PDF┃效果图JPG┃设计施工图DWG+PDF┃官方摄影JPG┃物料详解PDF┃机电给排水图DWG+PDF┃3D MAX SU模型┃景观方案设计JPG+PDF
【文件格式】:DWG,PDF,JPG,SU
【资料大小】:3.19G
【免费获取方式】
关注转发加评论后私信“2059” 即可获取此套完整版资料
免责声明:
以上图片及资料内容来源于网络,由我方整理,版权归原作者及其公司所有;
本资料仅供学习研究之用,不得用作于商业用途,若此图库侵犯到您的权益,请与我们联系删除;
本文章版权归本头条号所有,未经同意不得随意转载 ,若恶意侵权将追究其法律责任