【楼盘名称】才子佳苑
【装修面积】86㎡
【装修风格】现代风格
【装修费用】8万
【户型结构】两居室
设计思路
现代风格家居的空间,色彩就要跳跃出来,让原本比较小的空间跳出单一平淡的感觉,大胆用色不仅是对现代风格家居的遵循,也是个性的展示。除此之外,现代风格家居还重视通过功能和空间组织的利用发挥结构构成本身的形式美,用简洁的造型打动人心。

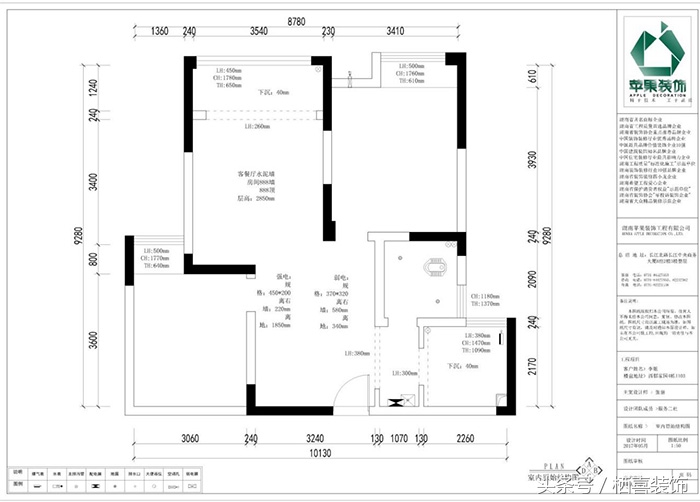
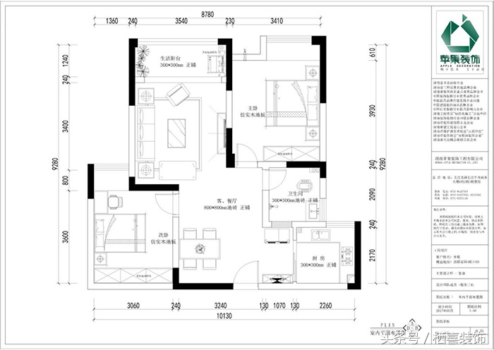
平面方案
由于客厅和餐厅曲折式隔离,栖喜装饰为了让空间增添一些情调感,在生活阳台设置一面墙的绿植,不仅能清新空气,还能装饰空间,让不怎么开阔的视野多了一份趣味性。

客厅
错乱的数字钟搭配浅灰色的砖墙纹路,在复古中彰显现代,在单调中注入时尚,空间不仅有奇妙的视觉体验,还增加了很多功能设置,比如充分利用电视背景墙的储物柜,不但不影响视听体验,还能增加空间利用率。灰色的沙发则让客厅多了一份闲适和舒畅感。

卧室
在床和飘窗之间的书桌是室内和室外的过渡,既能在疲倦时方便的侧身一躺,还能随意的转头欣赏怡人的风景,让卧室不仅是休息的好地方,同时还是工作、学习的好去处,悬空的绿植则让灰色的空间多了一丝清新感,俏皮感让空间的生活多了很多情调。

更多装修案例请关注:栖喜装饰官网