泰华房地产(中国)有限公司、深圳市新安安乐股份合作公司“泰华梧桐林居”项目(宗地号A004-0072)用地位于宝安中心区宝安大道与新安西路交汇处,用地面积76548.10平方米,容积率≤5.62。
泰华梧桐林居原名为泰华海逸世家,分两期建设,一期占地30600㎡,2019年6月1日开工。
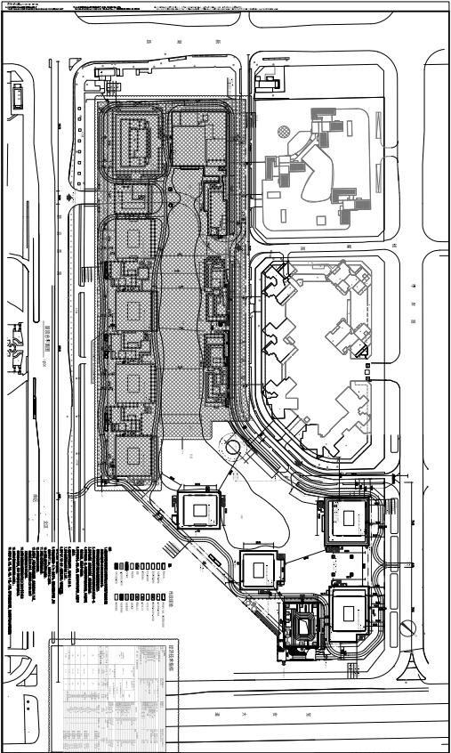
该项目分期建设,于2020年12月-2021年8月取得1-4栋、11-12栋及地下室部分的《建设工程规划许可证》,现开发商申请总平面图修改,3月11日,规划部门对修改方案进行公示。
根据公示信息显示,主要修改内容(详见附件图中云线圈示部分)如下:
1.图面区分表达已报建部分和未报建部分,其中已报建1-4栋、11-12栋为北区;未报建5-10栋为南区。
2.删除技术经济指标中未报建各楼栋(5-10栋)尚未确定的数据,对部分技术经济指标进行调整,调整后仍符合规划要求


项目总用地面积约7.7万平方米,容积率5.52,总建筑面积约58万平方米,其中:
地上规定计容建筑面积约43万平方米,不计容建筑面积约15万平方米,最大地上层数53层,地下2层。建筑最高高度229.9米,绿化覆盖率40%,绿化面积约3.1万平方米。
地下机动车停车位3081个,地上机动车停车位2个;自行车停车位1314个。
项目共规划(暂定)有4482户,建筑面积约38万平方米。其中户型建筑面积小于90平方米的有3538户,约27万平方米,分别占总量的78.94%和70%。本期总户数982户,约13万平方米。
项目本期共规划有4栋商住建筑和1栋幼儿园。其中:
1号楼高147.15米,38层,共约3.2万平方米,其中住宅约2.9万平方米,物业服务用房680平方米,商业约1400平方米。
2号楼高169.8米,44层,共约3.7万平方米,其中住宅约3.5万平方米,消防控制室115.07平方米,商业约2109平方米。
3号楼高193.2米,55层,共约3.7万平方米,其中住宅约3.6万平方米,商业约1600平方米。
4号楼高151.8米,共39层,共约2.8万平方米,其中住宅约2.7万平方米,商业约1300平方米。
12号楼幼儿园高13.75米,3层,2970平方米。
项目北区总建筑面积约30万平方米,计容建筑面积约15万平方米,不计容建筑面积约15万平方米。其中:
计容建筑面积包括商业约0.7万平方米、住宅约12.6万平方米、幼儿园约0.3万平方米、社区健康服务中心约0.1万平方米、物业服务用房680平方米、再生资源回收站100平方米、架空层绿化休闲约1.2万平方米、消防避难空间约1288平方米。
不计容建筑面积包括共用停车库约12万平方米、公共设备用房约2.6万平方米、城市交通约1622平方米。

该项目靠近地铁1、5号线地铁口,周边布局有总部企业、休闲文化市政配套,壹方城商圈、宝安图书馆、宝安少年宫等均在周边。
项目南面部分中高层单元可看到欢乐港湾旁的摩天轮。


泰华房地产(中国)有限公司成立于1991年,是经深圳市人民政府批准成立的外商独资(港资)企业,注册资本52,800万港元,是国家房地产开发一级资质企业。目前,已 开发“泰华花园”、“冠城世家”、“君逸世家”、“泰华阳光海”等十多个项目,以及“泰华梧桐岛”新一代产业园等。累计开发物业总建筑面积约200多万㎡。

泰华梧桐岛

泰华阳光海

君逸世家