
WiFi6 Mesh因其无缝漫游+超广的覆盖范围特质,已经倍受不少大平层、叠拼、LOFT办公室用户追宠,灵耀AX6600便是这样一款定位中高端消费市场的三频WiFi6 Mesh,能极大改善大户型用户使用体验。

禅意设计
灵耀AX6600整体给人简约、时尚,一体化设计巧妙地“隐掉”了传统路由天线,浑然一体的外观表面经过拉丝纹工艺处理,赋予整机出色的质感。LED指示灯设计在了logo下方,不同颜色代表标示着路由的不同工作状态。
顶部“同心圆”纹设计颇为醒目,该设计元素作为华硕“禅”系列设计的延续,将中国传统文化同时尚科技产品进行融合。

灵耀AX6600提供暮光黑和月牙白可供用户选购,能够很好的贴合现代家居的装修风格,各种接口则巧妙地安置在了背后下方,3个千兆LAN口,1个2.5GWAN口以及1个USB3.0接口。值得一提的是对于NAS和重度游戏玩家而言,灵耀AX6600搭载2.5G WAN口绝对是加分项。
简约天线设计
出色的天线的配置能够很好的解决了360度信号覆盖的问题。灵耀AX6600处理得很巧妙,将内部四根天线垂直排布、两天线根45°倾斜排布,配合全新OFDMA技术与智能雷达2.0技术,使WiFi6信号在360范围完美覆盖范围。

连接配置
灵耀AX6600套装本身不分主路由和节点路由,完全一样,这就给很多新手小白安装提供了便利。
将灵耀AX6600 WAN用网线连接光猫,便可进行设置。开机自检之后,便会进入到蓝灯闪烁状态,大约1分钟后,会有白灯常亮显示,配网过程非常简单。

然后扫描包装二维码安装APP,而进入到设置界面。根据系统中文提示,用户输入WIFI的名称和密码即可,仅需几步就可以完成整个设置流程,非常容易完成。
网页端设置则可在浏览器中输入网址http://router.asus.com,步骤与APP相同

APP里也会提供一些方便诸如NAS玩家这样的深度用户进行进阶功能的设置。可开启于无线回程或有线回程。

AiProtection智能网络卫士是华硕开发的一个相当有全面的安全插件,它的防护选项相当全面,使用也很简单,点击扫描便会将潜在危险一一列举出来。
性能测试
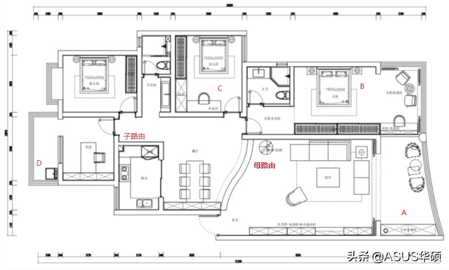
我们今天在一套建筑面积超过200平方米的大平层,会给大实地测试下灵耀AX6600的具体表现。
分别将灵耀AX6600两个路由放置于客厅和主卧,尽可能照顾所有房间和阳台网络覆盖的需要,两台路由器距离上尽量保持直线,将信号传输可能遇到的问题和阻碍降至最低。
无线网卡:ASUS PCE-AC88x2
手机:iPhone 13 Pro
测试前将路由固件及网卡驱动都升级到最新版本。选取A、B、C、D四个测试点,在电信500M光纤入户的宽带环境中,测试各点性能。


可以看出,灵耀AX6600无压力地就完成了200平方户型的覆盖,主路由直接顶满了500M光纤宽带的极限。其他点位虽然经过承重墙后网络上传、*载下**速度有所衰减,即使最远的D点也足以应付日常观看流媒体和游戏所需。

我们*载下**《王者荣耀》1.75GB的游戏安装包时,实时*载下**速度达到576.18Mbps,整个过程仅用了29秒,可见路由器可以轻松驾驭500M光纤的吞吐量;游戏安装前会进行升级包的*载下**,实时*载下**的速率为24.67Mbps,华硕APP的测速还是相对较为准确的;另外*牙虎**直播平台观看蓝光25M画质的直播,其*载下**速达到了23.62Mbps吃满了该画质下的流量。

我们借助Endpoint 9.50和IxChariot 6.70测试5G2 TO LAN的数据吞吐及承压能力。

在5G2 2x2 160MHz 802.11AX吞吐量测试环节,灵耀AX6600毫表现出相当强悍的承压能力,灵耀AX6600可以满足soho办公多设备连接的需求。

灵耀AX6600配备了USB 3.0接口,将NTFS格式的希捷移动硬盘同其连接后,直接测试AX6600的USB 3.0接口的读写速度。

附加值:特色功能
用户通过“ASUS Router”首次绑定设备后,软件会提示是否开启远程连接,用于远程管理Mesh的DDNS,智联路由节点位置一目了然,用户可轻松判别当前连接的路由节点归属,同时通过APP随时掌控网络状况。
智能网络卫士(AiProtection Pro)是一套终生免费的企业级安全防护系统,能够自动评估路由器的安全状况并提出建议,还具备恶意网站拦截、双向IPS、受感染设备防止级拦截等多项功能。对于各位家长来说,家长控制功能允许用户对某一台设备的APP使用、网页访问、上网时间等作出限制,能很好地培养孩子健康上网的习惯。

点评:综合性能极强的Mesh
在众多Mesh路由中,灵耀AX6600不仅具备强大的网络性能,舒适度无缝热点切换和丰富易用功能,让用户倍感亲切,智能组网、广覆盖更将Mesh和WiFi 6相结合的优势发挥得淋漓尽致,再加上家居感极强的外观设计,都让灵耀AX6600能成为大户型用户工作、生活最好的伙伴。