
1. 单人卧室
单人卧室的标准面积是6㎡;
单人卧室里面基本的布置为一个单人床、双开门的衣柜、一个床头柜和一张写字桌。
1.1单人床尺寸:
单人床尺寸:900*2000mm,适合一个成人就寝。
1.2单人床与通道的尺寸:
床边与衣柜的距离不应小于500mm;
1.3衣柜的尺寸:
衣柜深度是500mm~650mm,中国标准为600mm;衣柜门分为推拉门、平开门。
1.4小型床头柜的尺寸:
小型床头柜的宽度为450mm。

△单人卧室平面布置

△单人床尺寸


△单人床尺寸
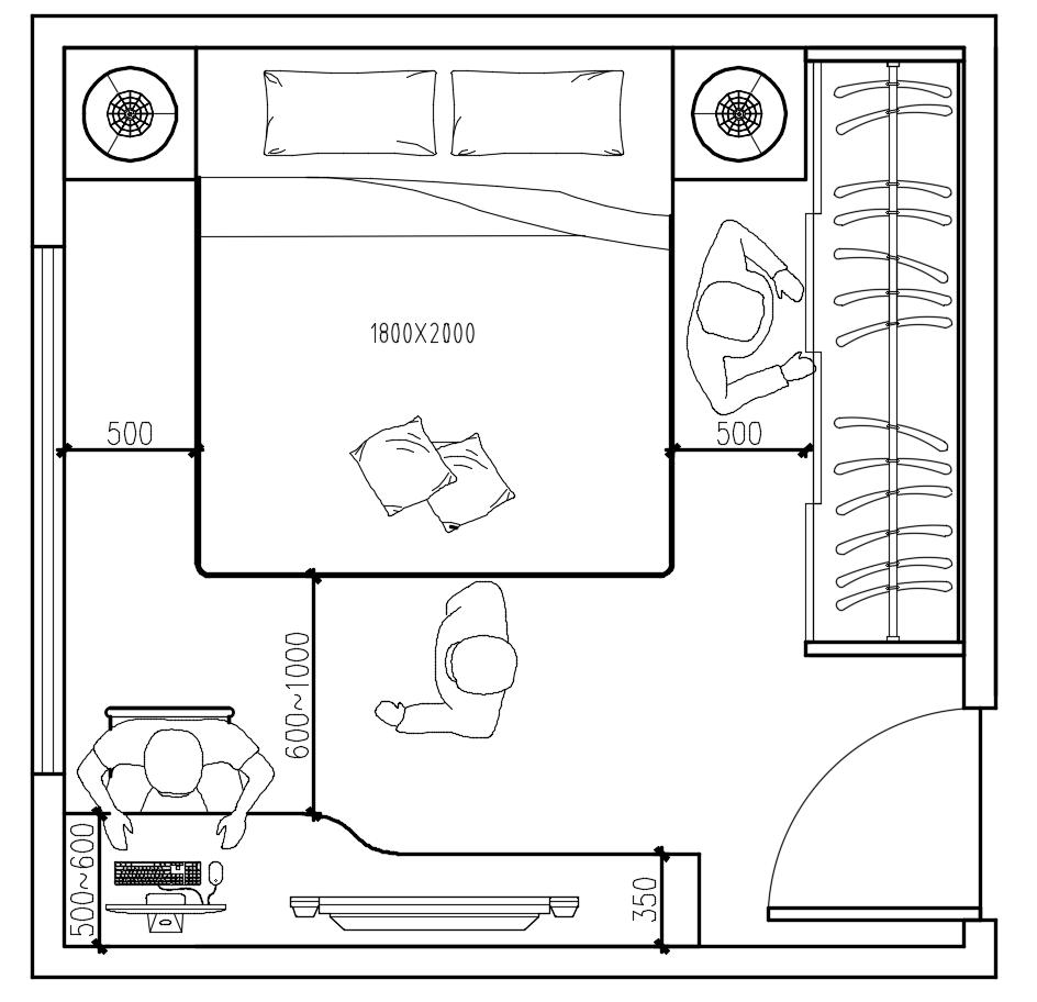
2. 双人卧室
双人卧室的标准面积是12㎡;
双人卧室里面基本的布置为一个双人床、双开门的衣柜、两个床头柜、一个电视柜和一张写字桌。
2.1双人床尺寸:
双人床尺寸:1800*2000mm。
2.2 双人床与周围关系的尺寸:
床边离床的距离不应小于500mm;
床边与衣柜的距离不应小于500mm;
床边离书桌的距离为600~1000mm;
2.3床头柜的尺寸:
床头柜的宽度为500mm。

△双人卧室平面布置



△双人床尺寸
2.3电视观看距离:
卧室的电视机安装高度=床的高度+35mm电视机安装高度。

△电视高度尺寸
3. XXL双人卧室
豪华双人卧室的标准面积是13㎡;
豪华双人卧室里面基本的布置为一个豪华双人床、一个双开门的衣柜、两个床头柜、一个电视柜和一张写字桌。
3.1 豪华双人床尺寸:
豪华双人床尺寸:2000*2000mm。
3.2 豪华双人床与周围关系的尺寸:
床边离床的距离不应小于500mm;
床边与衣柜的距离不应小于500mm;
床边离书桌的距离为600~1000mm。

△豪华双人卧室平面布置

△超豪华双人卧室平面布置

△豪华双人床
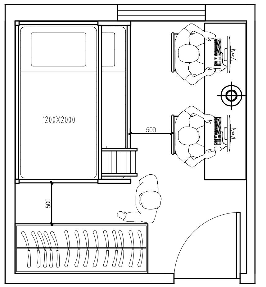
4. 主人与婴儿的卧室
主人与婴儿的卧室的标准面积是15㎡;
婴儿床应与主人床相连通或直接摆在主人房里。主人与婴儿卧室里面基本的布置为一张双人床、一张婴儿床、一个双开门的衣柜、两个床头柜、一个电视柜、一张写字桌。
4.1双人床尺寸:
双人床尺寸:2000*2000mm。
4.2 双人床与周围关系的尺寸:
床边与衣柜的距离不应小于500mm;
床边离婴儿床的距离不应小于750mm;
床边离墙的距离不应小于1000mm;

△主人与婴儿的卧室平面布置

△婴儿床的立面尺寸


5. 儿童卧室
儿童卧室的标准面积是11㎡;
儿童房里面基本的布置为一个上下床、一个双开门的衣柜、一张容纳两人的写字桌。
5.1儿童床尺寸:
双人床尺寸:1800*2000mm。
5.2 儿童床与周围关系的尺寸:
床边与衣柜的距离不应小于500mm;
床边离椅子的距离不应小于500mm。

△儿童卧室平面布置
6. 护理房
护理房的标准面积是12㎡;
护理房是专门设计给需要护理的人群,护理房里面基本的布置为一张护理床、一个双开门的衣柜。
6.1护理床尺寸:
护理房尺寸:900*2000mm。
6.2护理床与周围关系的尺寸:
如果护理的人群需要轮椅辅助,床边应预留直径1500mm的活动空间。
床边离墙的距离不应小于900mm;
护理床的一侧应预留看护人员的通道,通道的尺寸不应小于900mm。

△护理房平面布置


△护理房

△床的尺寸及适用面积表格









本文编著团队:
华建环境设计研究所(设计一组)
编辑:梁薇、熊峰
图片:范丝燕、 邓楚颖
审校:廖炽伟
由华建环境设计研究所收编整理,
发布于2020年6月“床的尺寸标准化HJSJ-2020”
用于各大院校装饰设计专业教学使用。
更多干货→点击关注 华建环境设计研究所
更多设计看点→点击关注
