山东恒远装饰设计工程有限公司,成立于2003年,是一家集装饰设计与施工为一体的专业化装饰企业。公司以“立足山东、辐射全国”为发展战略,业务辐射东北、华北、华东、西北和西南等国内市场,同时在海南、陕西、河北、石家庄、江苏、河南、济南、莱芜、青岛等地设立分公司。
作为日照市建筑业首家国家级高新技术企业,公司发展十余年来,施工的二十余项工程荣获“中国建筑工程装饰奖”、“国家优质工程奖 ”;四十余项工程荣获山东省建筑装饰工程质量“泰山杯”奖,公司注重新材料、新工艺的科研创新,每年有二十余项科技创新成果、工法等通过省、部级鉴定。
公司先后多次被评为中国建筑装饰行业专业化百强企业、优秀装饰施工企业、中国建筑装饰协会理事单位、中国建筑装饰协会“AAA”级信用企业、国家级守合同重信用企业、全国建筑装饰行业酒店类、办公类最佳专业化装饰企业及省、市级多项荣誉。
公司现有建筑装修装饰工程专业承包壹级、建筑装饰工程设计专项甲级、建筑幕墙工程专业承包壹级、建筑幕墙工程设计专项甲级等14项资质,在公司全体人员的不懈努力下,现已发展成为拥有人才云集的现代化、规模化建设工程公司,凝聚了一批经验丰富,充满激情的业内精英团队。

代表作品
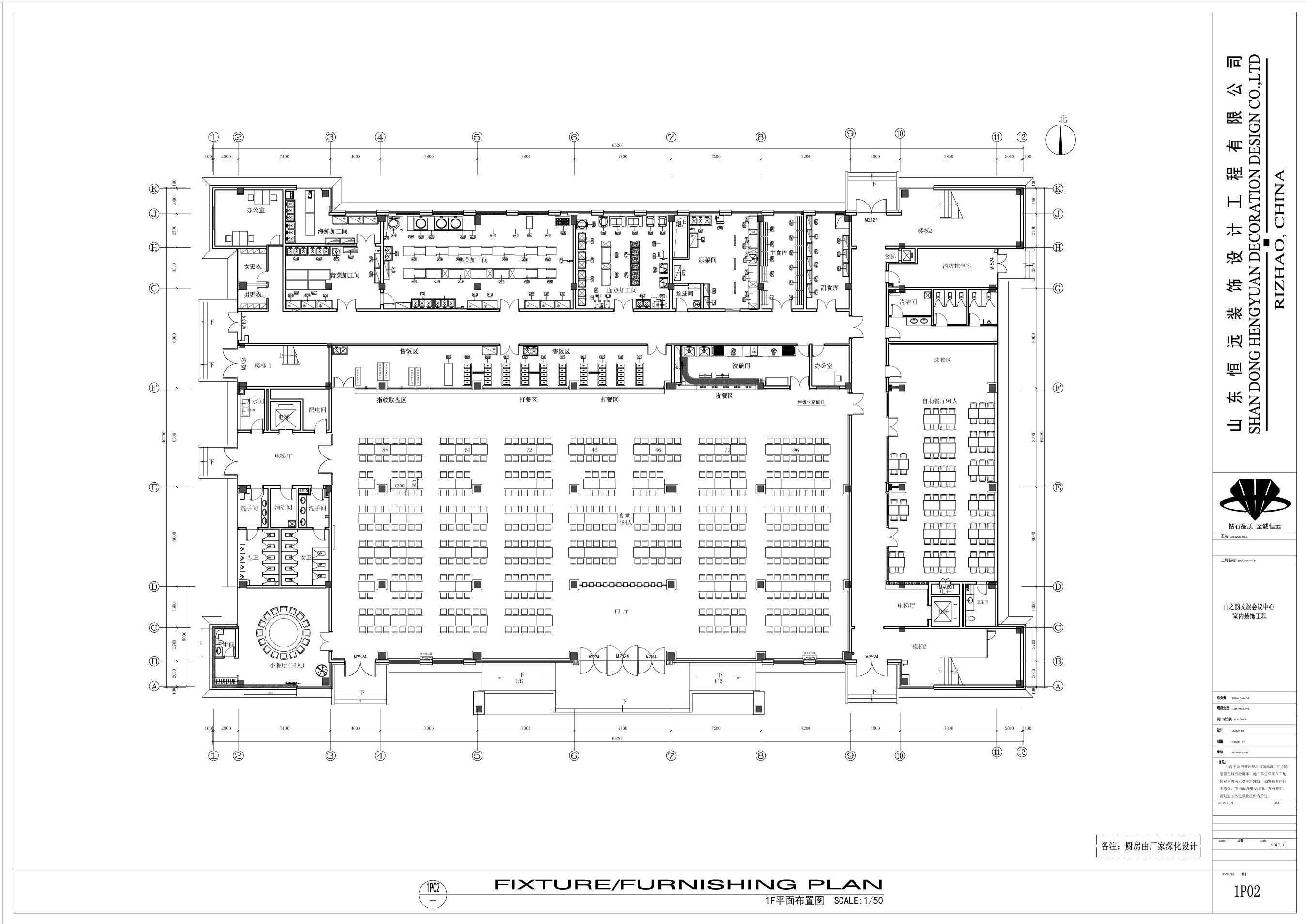
项目名称:山之韵文旅会议中心
项目地址:山东省日照市开发区
项目面积:10500㎡
设计公司:山东恒远装饰设计工程有限公司
材料应用:铝单板、新型锁扣式塑胶地板、木饰面等
山之韵文旅会议中心装饰工程,位于日照市开发区温州路以北,兰州路以东,框架结构,地上3层,建筑高度约25米。装修施工面积为10500平方米,工程造价为1288.83万元,工程结算造价为1420.38万元。于2016年09月12日开工,2017年 03月12日竣工。由日照经济技术开发区城市发展投资有限公司投资建设,日照日星建设监理有限公司监理,山东恒远装饰设计工程有限公司设计并施工。
本工程*会集**议与餐饮为一体,自中标之日起,将其质量目标确定为争创“中国建筑工程装饰奖”。成立创优小组,编制创优策划,落实质量责任制,严格工序控制,验收把关,保证一次成优。




山东恒远装饰设计工程有限公司施工的主要装修内容为:一层餐厅、自助餐厅、厨房,二层大会议室、小会议室、休闲室、接待室,三层包间、客房、宿舍,1-3层公共走廊、电梯间、卫生间等。



温暖的木色、柔和的灯光,营造舒适的空间,使人们感受浓郁的庄严氛围。在此基调上,用现代风格的设计手法,配合建筑屋脊的高度增加顶面层次,通长叠级石膏板吊顶,造型独特,使得整体空间更加恢宏。

小会议室石膏板造型顶搭配大块方形软膜天花,光源柔和无阴影。暖木色配以硬包的简洁,地毯的温柔厚重,天花的简洁大气,蓝色的点缀,营造既温暖又不失庄重的会议氛围。

接待室的设计化繁为简,家具材质及款式摒弃繁复浮夸,大面积的灰白色调为主,空间以软装、绿植做点缀,整个氛围沉稳大气而不单调。以雅致的灰白色和简化的线条打底,奠定空间的基调,为提升舒适度,沙发椅选择造型简约的现代款型,通过线条拿捏出中式的味道。



安藤忠雄曾说他的设计总是“以少量的几种材料和对质感的直接表现为特征”,除了色彩,材质的运用上同样如此,用简单的几种材质作为空间的语言,去完成空间的构建。木、石,是空间运用最多的材料,温润的木,清冷的石,自然的语言,对比与融合,最为贴近人的内心。
企业秉承“诚以载道,品质取胜”,该工程自竣工验收投入使用以来,工程结构安全,使用功能满足设计要求,取得了良好的经济效益和社会效益,用户非常满意。
