大家好,欢迎来到瑞致选房。
最近市场上滨湖金融板块的中海九樾热度非常高,离售楼部大老远就看到人头攒动,门口的车辆沿着成都路排起了长队,进售楼部需要排队等候,不得不承认中海九樾对市场焦点般的吸引力。
今天我们把目光从高新区移至滨湖区,给大家分析一下这个项目,想要了解的朋友看这一篇就够了!
作为一个有经历,有态度的房地产评测人,我认为每一个项目都是值得学习的,我习惯带着问题看项目,并希望为大家带来参考价值,为大家买到适合自己的房子提供中立的参考。
本文围绕2个问题进行——1.为什么中海九樾人气爆棚?,2.是否实至名归?
我们直接进入主题,先上项目的基本信息。
项目基本信息:

历望九载岁月,中海轻轻研墨,思忖何处是“樾”归,提笔沉思一顿,第九子在画卷上徐徐晕开。
2019年6月27日,中海以30.8亿拿下滨湖BH2019-07号金融板块中心地块,于是一副描绘中海从打造伦敦金融城、纽约曼哈顿一直到滨湖中海九樾的40载篇章跃然纸上。
买房子,买的是未来,"世界中海,起笔滨湖下一个十年",中海想通过滨湖九樾告诉合肥人民,这是合肥滨湖的繁华金融未来。品牌理念的挖掘和输出上非常深刻,从海外到国内,从世界到合肥,背靠央企中国建筑的中海地产实力不可小觑。
一、小区区位

中海九樾区位图
滨湖新区,其所滨之湖正是中国第五大淡水湖——巢湖,也是旧时合肥水路进入长江的门户,该区目前主要划分为五个板块——启动区1.0板块、金融2.0板块、省府3.0板块、环湖CBD4.0板块以及卓越城5.0板块,其中省府板块正是落址安徽省政府的重要政务核心板块,也是目前滨湖区域价格最高的地带。
中海九樾,位于滨湖新区西南处的2.0金融板块,作为曾经的价格洼地伴随央企开发商的进入,一定程度上提升了该区域的影响力,价格也因而水涨船高。

滨湖新区板块划分图
金融板块顾名思义,是以金融后台服务基地为主要产业的区域,涵盖从银行、保险到资产公司,主要坐落在徽州大道和广西路之间,呈纵向排列。目前已建成工行、中行、建行、农行、邮储、浦发、交行、中信合肥呼叫中心等大楼,届时可能会有银行总部(如徽商银行安徽分行)搬迁及后台中心设立运营;此外还有相关金融服务平台例如华拓金服、软通动力、光谷金融港、复星金融城、金融小镇等、相关教育平台如中科大国际金融研究院等进驻。

滨湖金融板块后台基地机构图
区域内在售的有荣盛华府、金鹏壹品天城、新城滨湖云境、正荣府、绿城招商诚园、中海九樾、文一豪门金地等,还有即将拍马杀入的华润昆仑御,各路开发商云集,区域热度逐步提升。
我们回到我们第一个问题——为什么中海九樾人气爆棚?
我们下面从价格开始,经由品牌、配套、户型、品质逐步深入得出答案。
最后我们总结分析回答第二个问题,即中海九樾究竟是否实至名归?
二、价格
我们先来重温一下这张图,

合肥九区四县存量房源及成交情况
图中可以看到滨湖的价格基本上仅次于政务区,但由于政务已无新盘,所以滨湖区妥妥坐实了合肥区域新盘最高均价的宝座。我们可以看到,滨湖新区的整体均价在21725元/㎡,区域内成交多,供应也多。2020年滨湖区计划新增供应368.8亩,共6宗地,其中5宗位于省府板块,预计全区竞争会更加激烈。
即便如此,作为历史价格洼地的痕迹还未褪去,金融板块的平均售价还是要略低于整体水平,板块内高层均价在18000-20000元/㎡,小高层19000-21000元/㎡,洋房21000-23000元/㎡,售价根据项目不一,参考下图。

滨湖区在售楼盘价格
我们聚焦到中海九樾,该盘目前是金融的纯新盘,价格很有参考意义,可用于反映开发商的预期和消费者的接受程度。
目前价格备案未出,准确价格未知,但根据消息,毛坯高层均价19000元/㎡,毛坯小高层均价19600元/㎡,洋房均价23000-25000元/㎡,分文不少。这个价格一经放出,就在市场上激起了千层浪,高层供不应求,这可是”真·火爆预约中“。

火爆预约中示意图
这个价格,直逼之前荣盛华府的17000-18000元/㎡滨湖门槛价,通过楼面价的差距(荣盛华府9974.95元/㎡,中海九樾13799.93元/㎡)换算一下这个实际售价已经十分接近了。当时荣盛华府首开7亿销售额,可想而知中海首开会怎样。
因此,我们通过中海的放风价以及消费者的热情可以反映出市场对于金融板块的价格预期在18000-19000元/㎡,热情根据开发商的不同有所增减,但总体实现去化的难度较低。此外,根据开发商拿地价以及售价的高低,反映出开发商对该区域的价值认可发生分化,有一定项目存在溢价。
好,我们现在确立了中海九樾的售价,接下来我们继续中海品牌的解读。
三、品牌

中海logo
中海地产,全称中国海外地产,中国建筑旗下央企,常说的中海地产包括中海发展(00688.HK)和中海宏洋(00081.HK)。其中,中海发展主攻一二线城市(含部分强地级市如苏州宁波等),而中海宏洋则下沉至三线城市(惠州扬州等,合肥例外)。
中海在业内是一个非常好的开发商,与保利、华润、金地、万科、恒大、招商、龙湖等同属一线品牌。品牌的背后是实力,各方面能力十分均衡,尤其是成本管控、现金流控制能力无人可出其右,但在业主耳中却鲜有闻名,用低调稳健来形容不为过。
中海在财务管理指标上的极致追求使得其一直高踞开发商利润率水平的榜首。据中海发布的中期业绩公告显示,2019年上半年公司净利润率为26.7%,处行业最高区间。此外,据港交所披露,中海地产在港发行的5-15年共计10亿美元的债券年利率在2.375%-3.125%,融资成本低得恐怖。优秀的现金流水平意味着中海在市场上具有更大的安全边际,尤其是在现有的经济环境下,会更加游刃有余。
历数中海在合肥开发的9个项目,有收获认可的,也有遭到批评的;有因物业服务收获口碑的,也有因房屋质量问题遭遇业主维权的,例如中海原山、中海城。

合肥中海楼盘维权图
但事物具有两面性,如此强劲的效益管理模式,一定程度上也是通过对上下游的把控实现的,无论是对内还是对外,都是如此,因此在不同情况下可能是由不同环节上的牺牲取舍换来的——以实现整体的目标,有利有弊。
总体来说中海是一个很优秀的开发商,但也要中性地去看待,尤其是对于大型房企。其实无论是国企还是央企亦或者是头部民营开发商,并不完全是有保障的代名词,只是相对更令人安心;即便是大开发商,麾下的各个项目也是个体,我们只能认为这种水平的开发商起点相对更高,但不代表一定会有优质的作品。
判断一个楼盘最终能否做出令业主满意的产品,取决于项目的经营是否用心,这是植根于方方面面的,从拿地、定位、设计、招标、建造等到交付,各环节之间的配合,发生问题时的定权定责以及执行,都影响最后交给业主的那份珍重。
我相信,在利润日渐稀薄的今天,如果开发商都没有有利可图,那么不管你听到的是怎样,最后”你看起来好的东西,往往并不像你想的那样。”,好的东西都是经过时间检验的,绝不是一朝一夕之间的,正如那句英文谚语所言——"Rome was not built in a day."
四、配套

1.交通配套
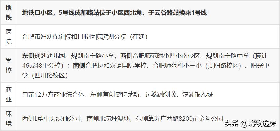
地铁:5号线
根据合肥轨道官方发布截止2020年的建设规划图可知,

合肥城市轨道交通近期建设规划(2009-2020)

中海九樾地铁口沙盘实景图
项目北侧小区出门左转5分钟就是5号线成都路站,是纯正的地铁口小区。
公交:
目前距离项目南边距项目不远处有36、511、t11、540、61路等,预计小区门口也会设立站点

中海九樾项目周边公交站
距离项目最近的公交站是靠近滨湖万科城的云贵路口(公交站),是小区门口公交站未建成前能通车的最近站点,步行距离500米。
高架、高速:
滨湖道路交通网呈横纵排布,形状方正,网格分明,西至经开、北至包河、庐阳,驾车约3公里进入京台高速,途径绕城高速、潜山路可达政务区。

滨湖金融板块交通图
近年来滨湖新区的交通框架愈趋成熟,在滨湖工作的人口逐步增加,人流车流量远超往昔。
无论是东西走向的方兴大道、云谷路、成都路、南宁路等还是南北走向的四川路、*藏西**路、广西路等,都交汇成了滨湖四通八达的交通体系。此外,还有纵贯南北的徽州大道、庐州大道、包河大道,抵达市中心十分便利。
2.教育配套
幼儿园:小区东侧规划幼儿园
小学:南宁路小学
中学:南宁路中学
由于目前还没有学区函出具,我们仅能通过项目宣传及教体局官方发布的信息分析其学区。
目前周边已建成的小学有——师范附小四小南校区和师范附小三小(贵阳路校区),已建成的中学有——公立的阳光中学(四川路校区)以及私立的合肥双语国际学校;在建的中小学为规划中的南宁路中学以及小学。
根据2019年包河区教体局发布的中小学学区示意图,

合肥市包河区2019年中学学区示意图
我们可以得出目前项目在规划中小学未建成前划分为师范附小三小(贵阳路校区)和阳光中学(四川路校区),等建成后可能转为南宁路中小学。
再结合2018年和2019年的指标到校分数线可以看到,

2018年和2019年的指标到校分数线图
2018年,四十五中本部第一名,总分746分;48中本部7名,总分741,阳光中学本部33名,总分725。
到了2019年,在全市中学中,第一名滨湖寿春740分,第二名45中739分,48中本部第8名,734分;阳光中学位于24名,724分。
由于教育局无法查到阳光中学四川路校区的数据,我们参考本部的分数,于全市的学校中,阳光中学本部的分数线大概处于中上,依此来看四川路校区可能会相较更弱。
此外据悉南宁路小学去年已面向社会招生,南宁路中学也准备在今年9月开始招生,中学届时可能由46中或48中教育集团进行管理运营。
周边的教育资源正在日益成长,从整个滨湖来说,有不少优质的高中,例如滨湖寿春、46中南校区、48中滨湖校区等,基本上是属于合肥除了市区老城及政务区以外最好的学区所在地。
假设届时南宁路中学由48中进驻,但我仍需提醒的是:
第一,新建的校区是需要时间进行成长的。一座优质学校的诞生,不仅需要更好的生源,更优质的教师队伍以及还需要政策的支持等。因而集团化的管理,有好处也有弊端——好处是教育理念统一,资源之间可以相互协调,但弊端是教学质量不能保证,因为资源在个体之间是有倾斜的。
第二,学区在很多情况下是作为开发商吸引置业的一种方式,甚至可能存在对学区房进行炒作的行为,我们不能盲目地去相信没有任何历史成绩的宣传,应客观多维度地评价我们指向的那座学校的教育水平。
其实不仅我在这里提醒,而且我建议大家对多数楼盘都应如此看待,尤其是以学区为标榜的。越是如此,可能学区越是该楼盘的最大价值,也就对应着业主们支付的最昂贵的资源成本就在于此。
我鼓励大家对购房因素进行权重的合理分配,并将该标准作用于你的意向楼盘,同时在楼盘间进行一一比对,用分数的高低得出一个你最满意的楼盘,从而找到最合理的价格。例如,重视学区价值的,分配配套60%(其中学区30%,交通20%,医疗10%),户型10%,居住品质10%,价格20%,再对上述每项以总分10分进行打分后加权平均,得到的数值反映出在你评估同维度下的总体水平,越大的越符合你的标准。
对于开发商来说,评估各项价值得出一个最终售价已经是基本技能,故整盘售价必然是最终所有资源的加总,但各项指标总会有高有低,看看开发商在楼盘的固有资源上的定价侧重你是否认可。俗话说“一分钱一分货,七分钱三分货”,如果开发商的定价与市场预期发生偏移,你要决定你是否愿意为获得更好的资源而支付溢价以及支付多少。因此,如何评估并正确选择自身最需要的那项资源也是对消费者的提出的更高要求。
3.商业配套
小区东边自建12万方的商业,半径3km范围内有云谷商业配套,周边的大型商场有九联圩站的首创奥特莱斯,还有近巢湖的融创茂,沿着5号线抵达云谷路站出战即可到滨湖银泰城。
小区所在的金融板块商业资源相对匮乏,还得依赖目前较为成熟的环湖CBD板块,总体来说,滨湖新区从酒店、公寓、写字楼到大型综合商场均有覆盖,诸多商业体均为新建,发展态势良好。若从中海九樾附近出发开车也很方便,十几分钟即可通达各大购物中心。
4.医疗配套
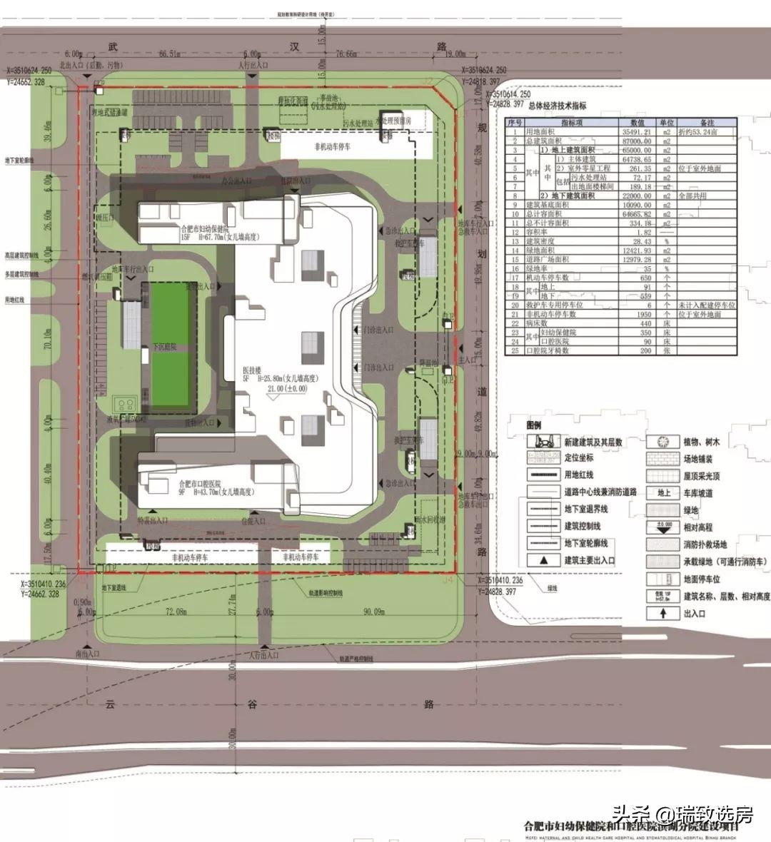
如区位图所示,项目目前最近的医院是北边的合肥市妇幼保健院和口腔医院滨湖分院(市属三甲医院),与项目之间大概600米。

合肥市妇幼保健院和口腔医院滨湖分院规划图

合肥妇幼保健院和口腔医院滨湖分院鸟瞰图
滨湖的其他板块也有不少医疗资源,例如滨湖医院、在建的省立医院(滨湖)及上海长海医院合肥分院等,整体医疗资源虽不及老城但也仍在逐步提升中。
5.环境配套
滨湖新区最大的几块公园分别是:塘西河公园、金斗公园以及方兴湖公园,与项目均有一些距离,最近的金斗公园离项目直线距离也有约3km。
所以小区环境的改善只能通过小区西侧自建的绿地和内部绿化来进行,此外,尽管小区西北角有地铁站,但西侧绿轴公园隔离了与马路之间的距离,加上北侧云谷名庭的洋房群,居住环境也不至于喧闹,相对较舒适。

中海九樾沙盘实景
本文分为上下两篇,我们在下篇着重分析一下户型和品质,并谈一下选房的建议,欢迎大家关注下一篇。
我们回头见!