
户型基本信息:
地址:广福路希望汇小区 户型:D1户型(建筑面积109.04㎡)
朝向:东南、西南 层高:2.9米
空间:3室2厅2卫 作者:别样装饰-包小编(点击QQ咨询)

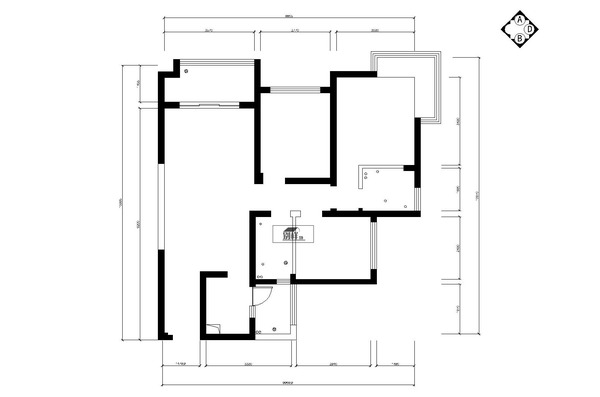
希望汇D1户型-原始户型图
从户型上看,本户型承重墙较多,很难有大的拆改。原始户型的入户空间较为狭长,但同样无法拆改,所以建议选购的鞋柜尽量采用有弧形边角鞋柜。
综合下来,本户型有以下几个特点:
1.承重墙较多,难以有大面积拆改。
2.客厅格局足够,一般的电视背景都够做。
3.餐厅空间富裕,客餐厅动区与静区分配合理。
4.双阳台,景观阳台已经空出了位置放置柜体
5.主卧带大飘窗

希望汇D1户型-推荐平面布置
由于没有很大的拆改空间,户型基本没做拆改。考虑在希望汇购房业主大部分为附近的建材商家,即对建材家饰有一定了解的户主,所以我们的设计师推荐“轻装修,重装饰。”
推荐装修风格:北欧风格
推荐理由:北欧风格在软装配饰上花费预算最低,时下最受80、90后欢迎,但很考验设计师的功底,用简单的软饰搭配让室内空间活跃起来可是一门功夫,一不小心就变成了“欧不欧简不简”。

北欧风格
推荐装修风格:简欧风格
推荐理由:简欧风格融合了欧洲文化元素与现代元素,是简约风格与欧式风格的择中之选,如果你不喜欢你的家太单调,而又不习惯欧式风格高调的气质,那么希望汇的户主们可以选择简欧风格。

简欧风格

本案设计师
本文由别样装饰原创发布