项目;四海云亭(宝安沙井)
户型;三房
面积;89
风格;现代简约
主创设计;乐杜鹃智能整装
房屋性质;精装房
软装配饰;木质,皮制,棉麻
设计定位;稳重内敛,自然简约。
{前言}
家庭成员的增加,就意味着居住面积的增加,人对空间的需要也会相应的增加,本案的业主就是在说在前面
有了小宝宝后,意识到的后期小孩玩具其它物品的增加和加大空间的需要,最后基于预算和居住的需求考虑,业主考虑全屋整装模式,一方面是想省去装修的麻烦,有小宝宝业主考虑环保材料问题很注重,另一方面也是觉得户型满满足他的需求。
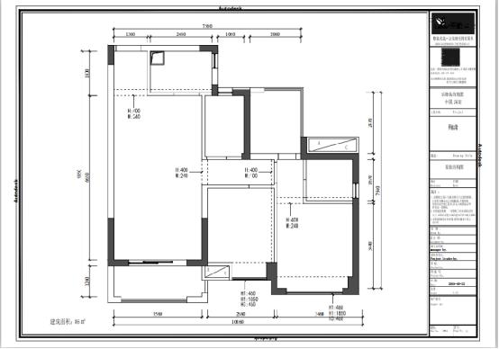
户型图
原始户型方正
也基本满足了业主的基本需求
不过在细节的地方还是需要进行考虑

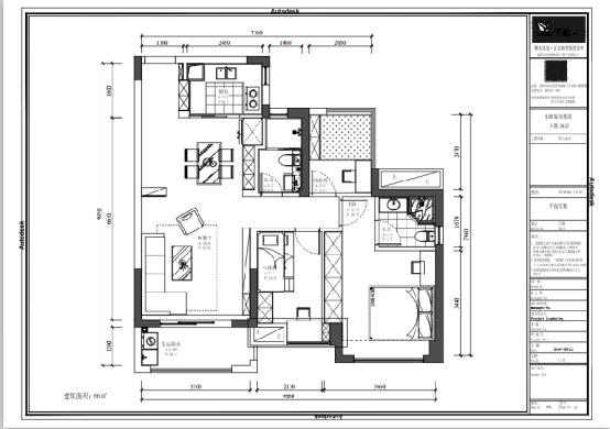
方案布局
基于业主的预算与实用性考虑,我们进行了平面布局的微调。
1,为了满足鞋子的收纳,打通厨房墙体利用墙体的空间做成一排入户鞋柜,七分收纳三分展示,满足需求,整体感觉更舒服。
2,将冰箱移到餐厅位置,便厨房更加宽敞方便。
3,业主对衣柜储物空间的重要需求,主卧借助次卧之前的墙体做成暗藏衣柜足足达到三米,做成薄墙隔音处理。
4,儿童房虽然被主卧占用了一点空间,整体空间不会影响,为了整体空间的宽阔考虑小孩房有书桌的需求,刚好把飘窗的位置利用起来做书桌。
5,也是考虑需要书房,考虑到父母平时也会过来一起住,在次卧这边做成多功能房,做成榻榻米的设计,榻榻米对于收纳物品及强,满足书房的设计也解决父母睡觉问题。


客厅的整体配色比较温暖
客厅墙面上用了两种分色处理,做法很简单,然而因为涂料上墙会有色差,所以为了达到理想的效果,采用了挪威佐敦美爵士与合一油漆可擦洗的水性漆,佐敦漆(JOTUN)是以优质丙烯酸树脂为基料,丙烯酸树脂有着优异的流平性,抗紫外线辐射、抗海洋性潮湿气候、抗酸雨、耐碱、防霉及单向透气等特性。而国内的都使用的是一些改性合成的树脂,效果大大不如丙烯酸树脂。注重品质与环保。

主卧
平静简洁的主卧另有玄机,主卧的衣柜隐藏起来与墙面平齐颜色统一,做按压式打开,打开衣柜别有洞天,衣柜里面做了感应灯内置增加有试衣镜,第一感觉完全察觉不到橱柜的存在。

上下铺儿童房
满足床位数量的需求,为了体现出整体氛围,顶面天花做了星空设计,采用艺术涂料搭配灯光效果,仿佛进入童话世界。
