
© 鲁鲁西
不久以前又去了一趟南锣鼓巷,本是逛了无数次的地方,却随着一路的人流与斑驳的树影在巷子的尽头发现了藏在两棵槐树身后的扇子小铺。站在入口处的树荫下,简约的大玻璃窗,框出店内的“扇景”。时值三伏里,虽然有树叶遮阴却也燥热难耐。“扇子解招风,本要热时用”来上一把扇子的念头倏然而生。

© 鲁鲁西

© 鲁鲁西
抬脚刚踏上阶梯,忽而,被瓦檐上的一只黑猫吸引了注意力。它像是身手矫捷的黑衣剑客,站在高处上耀武扬威,吸引了不少游人的目光。门口的两棵老树,倒是成了成全它的妙所:轻轻一跃,引得树影摇曳,转身它已在树杈之上舔着自己的爪子。

分析图
推门进入店内,正是陈列扇子最多的售卖空间,若是爱扇之人怕是喜不自禁,各式各样的扇子陈列其中。大面积的木饰面朴拙沉静,甘于做底衬,衬出扇面之上或是花团锦簇,或是云淡风轻。

© 鲁鲁西

© 鲁鲁西
展示台上各式不同的扇子鳞次展开,引得不少的客人在挑扇子。展示台下的柜子比起普通的收纳柜要窄上许多,正是为了扇子本身的尺度考虑。灯光透过玻璃打在最上层抽屉里的扇子上,又使得扇子更加具有质感。

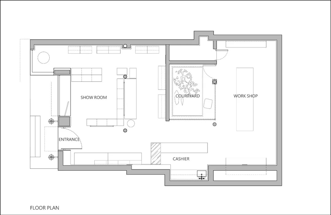
平面图

© 鲁鲁西

© 鲁鲁西
再往前走,收银吧台正对着这处空间中最宜人的庭院。一整面的玻璃墙不仅将自然光悉数洒进室内,更是将庭院中的绿景引入了室内。行至此处,来人皆会放慢脚步。

© 鲁鲁西

© 鲁鲁西
里间的正中,放着一张长桌。忙碌时是陈列扇子的地方,清闲时又是喝茶对谈的场所。坐在桌边,眼里看着庭院中的白玉兰树,正觉清爽,却又见一只好似进门前的那黑猫正绕着玉兰树踱步,招惹了不少目光。想是南锣鼓巷嘈杂的人间烟火盖住了它踏着瓦片归来的声响。

© 鲁鲁西
这扇子铺便是“京扇子”,其立足于北京,醉心制作中国传统的扇子。南锣鼓巷这间店不仅仅售卖扇子更是爱扇子的雅士们喝茶畅谈品扇之道的去处。京扇子的设计是古鲁奇与往常不同的一次设计体验,作为专注于的餐饮空间设计公司,古鲁奇所做的零售空间占比并不多。

© 鲁鲁西

© 鲁鲁西
“但是当我们来到南锣鼓巷,希望可以在闹市中置一处能让人缓下来的空间的想法油然而生。我们希望给雅士持一把扇子,给扇子置一个院子,给院子种一棵树,而在树下,有素爱哲思,不喜言语的“黑格格”,听人语、枕风眠。”

© 鲁鲁西

© 鲁鲁西

© 鲁鲁西
来源 ArchDaily
注:这个号是个人小号,是所长在日常见到好的设计素材随手收集并分享一下,不做广告不盈利,如涉及到版权问题,请多包涵。