我们中国人买房,都喜欢南北通透的户型,确实 南北通透格局的通风效果很好,房间内的异味,厨房和卫生间里所产生的废气也可以迅速对流出去,让家里保持室内空气的清新 ,所以当初我买房的时候,也是按这样的来选。
可最近看了不少的装修,发现除了南北通透的房子,横厅结构也能这么美,而且这样的 横厅 设计,由于 面宽>进深 ,将两个动态区域设置在一起,室内显得特别的开阔与敞亮,这样的 大空间随便一装都是那么美,现在是越来越后悔当初没有买横厅的房子 。
本期给大家带来的就是一套 大横厅 的装修案例,再加上装成了 日式风格 ,室内更加好看。 日式风格,是一种朴素的美学 ,经过设计实现返璞归真,将自然、原本、纯粹的生活美学展现得淋漓尽致。

听白设计
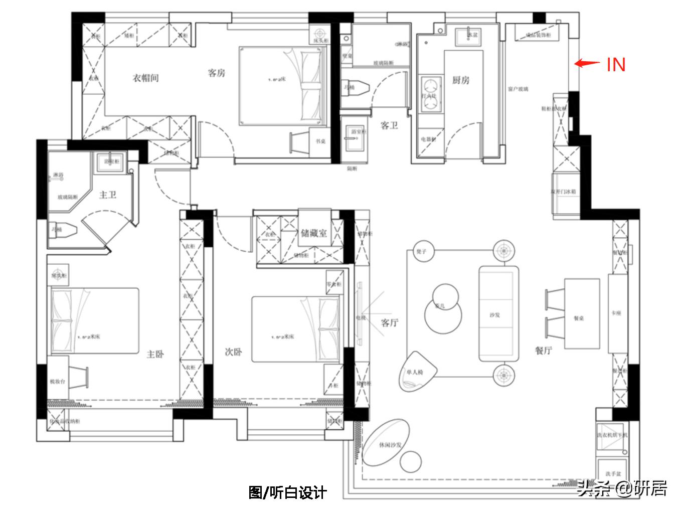
上面是该横厅的最终平面布置图,很显然,完美的户型不需要过多的改造,保留对原始结构最大的尊重,但我抓取到两个细节,一是将厨房靠近大门的墙体改成了玻璃墙,让光线更透,开门就见敞亮,心情很好;其二是北边的两间卧室打通成一个套房,让居住者享受更为开阔的休息空间。下面跟着我一起去看实景细节。
客餐厅在一起,开阔大气

直接来看家里最大的活动空间, 一眼望去横厅,满目的大气 ,先不说风格怎么样,光是这么开阔的空间就足够吸引人的眼球,相比竖厅,横厅没有了中间的过道空间,全计算在一起,利用率更大,这也是后来我所关注到的,再后悔也没有用,等有钱了再去买一套横厅结构的房子。

再来说装修风格,很显然,经典的日式风,在纯净的白色空间里,用原木家具,简单就营造出温暖静谧的居家氛围。
区别以往看见的全屋通铺木地板的日式风格,这个横厅里选择了 哑光灰色瓷砖 ,简约不过时,耐看又好打理;搭配暖米色布艺沙发,用它柔软亲切感来降低瓷砖的硬朗气息,共同塑造一个经典且不失艺术气息的空间。


日式风格追求简单的同时,还讲究实用性,除了可以收纳的电视背景外,沙发后面的用餐区,也定制出可收纳的长排吧台椅,一直延伸至阳台区。 两个对立的收纳系统,和谐大方,即区分了客餐厅,还让空间保持高度的统一性 。不乱,干净,做到了日式的纯粹无杂,越看愈发喜欢。

横厅还有一个优势,就是它的可变性很强,可以随时改变格局,但这个家因为卡座与电视墙已经固定,不能做太多的变动,但足够大的空间足以让人羡慕,坐在卡座上同样享受到客厅的视听效果。
真的,大空间随便装都好看,我们再去感受一下其它空间。
阳台

我们再来看阳台,它被规划成洗衣房,采用 上下叠放的洗烘套装设计 ,还有收纳柜可以收纳洗衣液和洗手液等洗涤用品,非常实用。
看到了吗? 阳台与室内并没有做过门石一样的分隔处理 ,通铺过去,更显大气。
厨房

进门正对着厨房,这里的采光变更好了,因为掏掉一面墙改成了玻璃窗。
里面的橱柜选择了白色,干净又整洁,窗台上还能整齐地摆放调料瓶。
走廊

连着动静两个区域的唯一枢纽,走廊的设计依然充满了日式韵味,用原木色门与纯白色墙漆,简单又舒服。
公卫干区

当然过道里有一景不能忽略,就是公共卫生间的干区设计,非常打动人,先是用黑边框的长虹玻璃隔断增加采光,然后在洗手台背面贴上 浅绿色的细条纹砖 ,一下子就让空间变得很清新,非常有治愈效果。还有地面黑白花砖,也有少许的复古气息。
卧室


三间卧室,其中主卧室和次卧室的调性完全相同,若不是墙面上的挂画,还看不太出来,都是选择灰色与原木色为主,带来宁静又柔和的休息氛围。


另外一间卧室,墙面则用了深浅相互碰撞的灰蓝色,再用上温柔的床品,一个温暖的儿童房跃然于眼前。对比平面图后,你会发现,最后床还是选择了南北摆放,能给儿童创造出更多的地面活动空间。
看完了上面这套案例,相信大家和我一样,对大横厅非常有印象,听过这样一个词,叫 “越横越高级” ,相比传统的南北通透的竖厅,横厅因为采光、通风等原因给人的感觉会更加高级,最重要的是 大空间能给我们极大的满足感 ,真是越看越喜欢。