一家三口+三只泰迪居住,之前夫妻俩是学摄影的!
户型:两室一厅

▲现在孩子到了该上学的年龄,为了孩子上学方便,买了一个学区房,从装修到现在入住前前后后一共8个月。套内面积77㎡。

原始户型图

改造后户型图 一楼

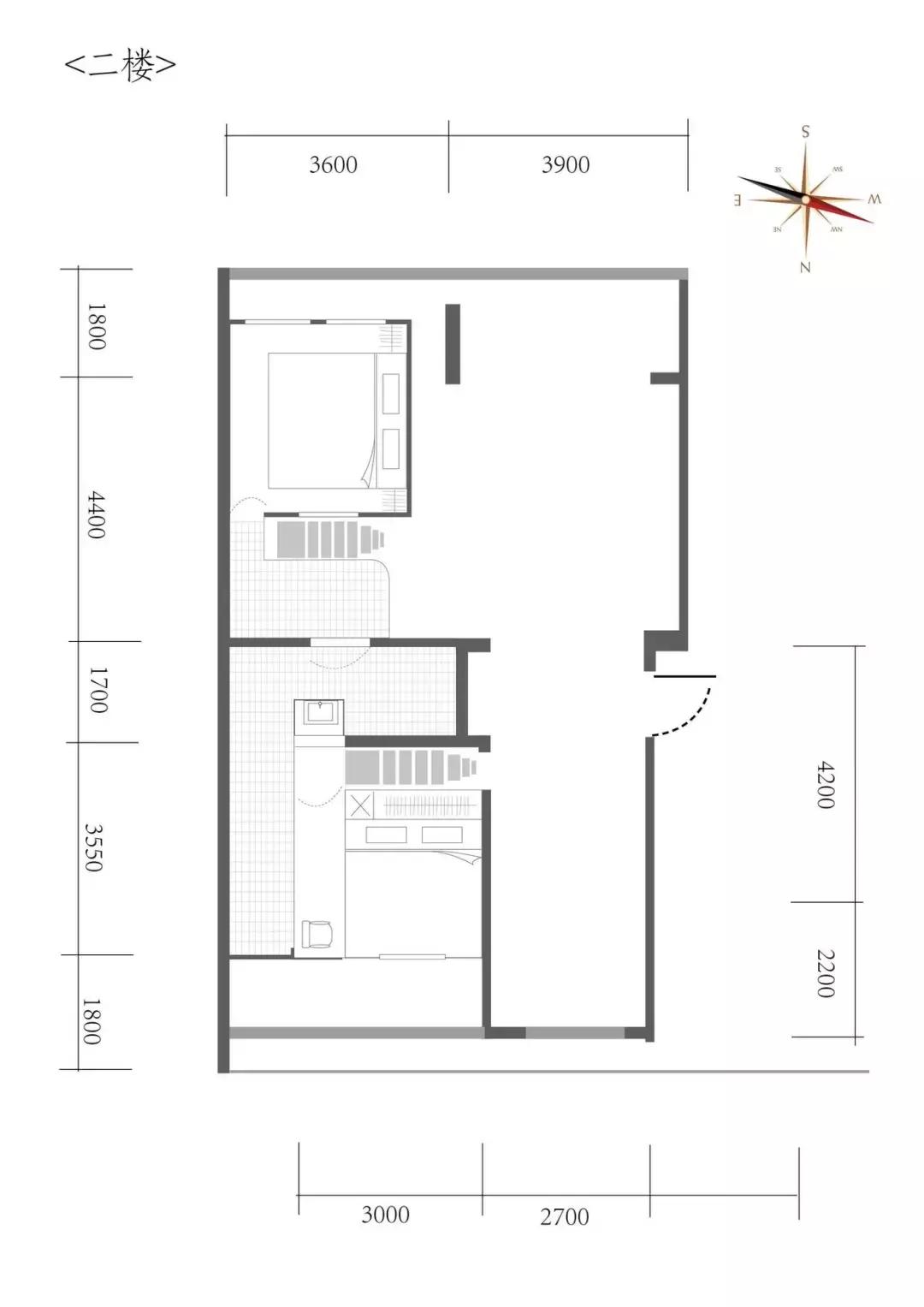
改造后户型图 二楼
装修之前夫妻俩在网上,杂志、书籍上看过很多装修案例,积累的丰富的装修经验,硬装是小两口一起设计的,从买房子就开始准备,知道交房才确定了设计方案!
他们一直在关注《梦想改造家》这个节目,这为他们做二层提供了很多设计灵感,对空间的规划原则是上下错落。装修风格他们始终如一坚持北欧风!

进门就能看见宜家鞋柜,上边安装黄铜金属把手,很有质感,从入门就开始精致,鞋柜的位置进出家门收纳相当方便!

▲鞋柜后边的两个楼梯,左侧上去是客卧,右左侧上去是主卧。抢镜的灰泰迪


入户门右侧客厅区域,一整面墙都是收纳柜,顶天立地柜超级能收纳。

大家看一下打开后的效果!

超强储物空间。柜子右下侧开放空间是三只泰迪的小窝。

入户方向看客厅,砸了两面墙,阳台包进客厅,客厅面积增加了41㎡,视野开阔,安装投影仪。沙发的颜色非常小清新,内部还有储物空间。

两面3.7米的落地窗,室内采光通风都超级好,很敞亮。红砖是从*迁拆**的地方捡来的!这种省钱技巧我都能想到,佩服我聪明的大脑袋,手动点赞。
绿萝是特别接地气的植物好养活,琴叶榕算是这个屋里最高大的植物,是一个视觉焦点,视觉空间得到延伸。

阳光洒进来,客厅就像是个阳光房。

为了给孩子足够的活动空间,平铺白色自流平。平时孩子喜欢在地面上铺个垫子玩玩具,客厅空间很大,足够让她摆!小编提示:白色自流平不好清洁。


进门左侧是厨房,面积仅仅8㎡。做了开放式厨房跟岛台。开放式厨房很多人担心油烟问题,其实只要选择吸力大的油烟机,油烟基本不成问题。

厨房面积狭小。所以厨房的家具基本都是定制的,木工打的双层橱柜容量非常大,建议一层宽度三十,二层宽度五十,间隔大放射灯比较好放。
左侧岛台面是定制的老榆木面板,表面刷了油,木质的很舒服。
岛台的下方放油盐酱醋,旁边拉篮里装葱姜蒜,最下方留了放平时买的菜和水果的空间。

借助儿童房的一部分面积做嵌入式冰箱,儿童房里做柜体遮挡,还可以增大儿童房收纳空间,美观实用。


谷仓门就是入户门。在岛台右侧做了一竖排空间做酒柜。


位于客厅上方的主卧,10.5㎡的面积。放了一张1.8*2米的床,床头两侧做了吊柜,满足日常储物,床前留了65cm宽的过道。

儿童房上方的客卧。主卧和次卧都是直接厚度是20厘米的床垫!


儿童床的上部与二楼走道连接,要想二楼走道可以直立行走,床的高度不能超过一米六。儿童床的尺寸是1*2米,床底都是可收纳抽屉柜。

原本的北阳台一分为二,纳入儿童房的部分做了攀岩区跟收纳柜。

还有一面黑板墙,孩子可以涂鸦写字。

衣柜采用白灰撞色设计,更有层次感,柜子中间六边形开放区,作为读书角。孩子年龄小,所以衣物很少,下边的灰色区就可以 满足收纳了。


主卧下方是工作区。工作桌是丈夫用在水库买的石头+淘来的木板自己设计的,木板可是费了不少功夫,是男主人自己切割打磨的,耗费了整整一周的时间!

摆放好的工作区,顶天立地式书柜,可以将家里的书籍全部收纳起来,两夫妻一直坚持做开放式书柜,因为他们坚信加了柜门打开书柜的几率就会很低。


与书架对着的是缝纫机。


楼层平台下边做了1.2*2.6米的衣帽间,与厕所一墙之隔,楼梯下方空间也得以利用,做了隐藏的鞋柜。

柜板厚18mm。


走上楼梯走手边的工具房。




为了能放下双层浴室柜,洗脸盆就只能缩小!最终决定选60厘米宽的洗脸盆,浴室柜虽然有些突兀,但是很实用,收纳面积强大!


洗衣房在攀岩墙的背面。

两个洗衣机旧的给狗子用,洗衣机的前边是狗子的“浴缸”,对面是狗子的“梳妆区”。

狗狗的美容区,三只泰迪洗澡吹毛都会在这里进行。


不将就,不只是对房子的态度,也是对人生的一种态度。小小的家蕴藏大大的能量。