案例名称:曲江 . 紫汀苑
工程总价: 12 万 总面积: 150 平方米
装饰风格: 欧式风格
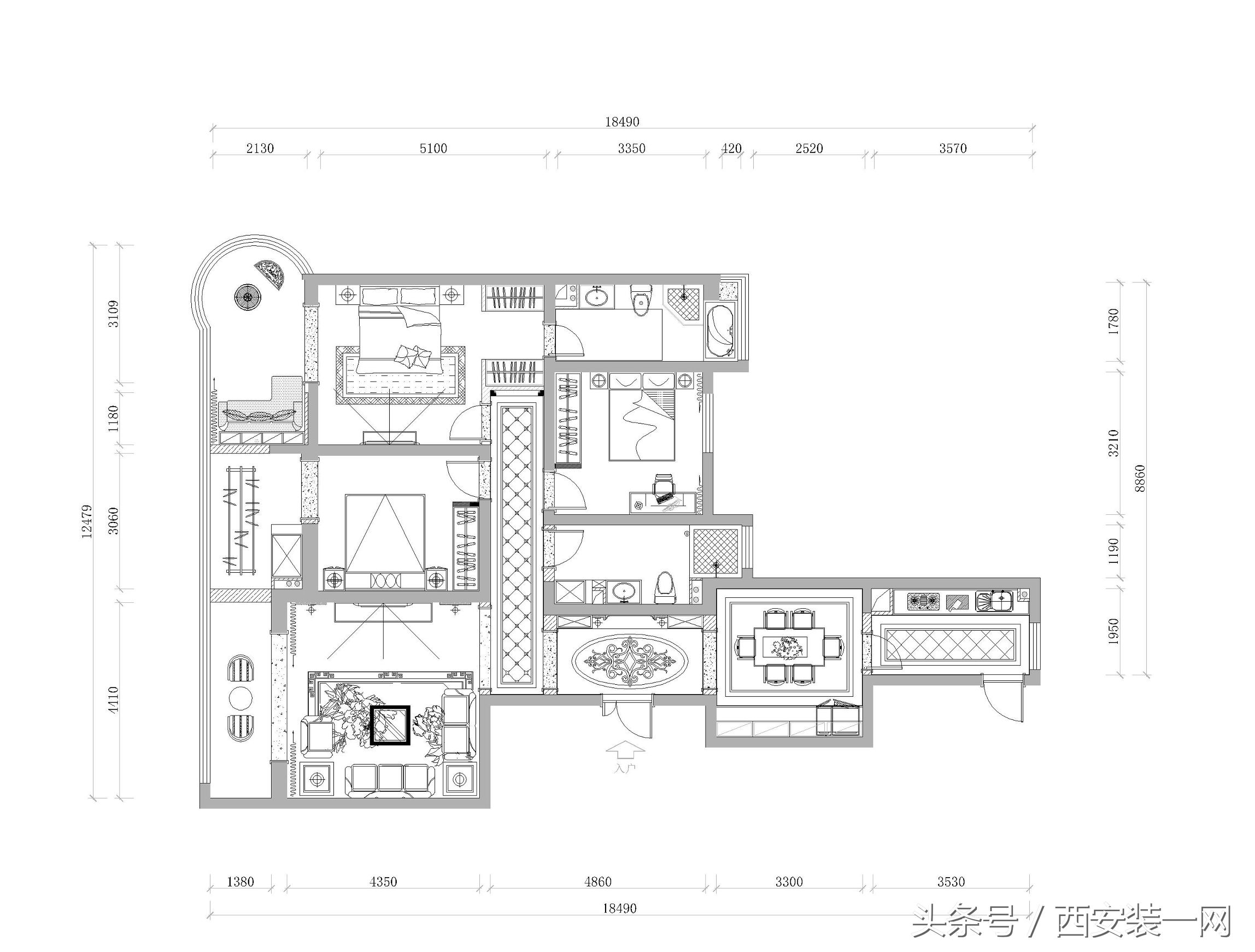
户 型: 三室两厅两卫
设计说明: 本案是一个朋友介绍的,业主之前已经找过三家设计了都不是非常满意,总是和设计师沟通不到位,直到找到我们。在房子里面我们通过简单的沟通,当场确定了合作单向,所以这套设计我起名为华丽的冒险,户型结构上没有过多改动,在色调上业主要求温馨又不失奢华,根据业主的生活习惯我将厨房做成了开放式,并拓宽了厨房空间,增加了一个实用的小吧台。橱柜与墙砖都采用白色系,吊顶是用的天然杉木材质。客餐厅公共空间我整体采用暖色,揉合了护墙板、棱形玻璃等材质使墙面造型更加整体。主卧是**房间,从家具到壁纸窗帘都是比较稳的色调,与业主**的气质相符。次卧是业主的房间,空间稍小一点,我针对性的用了绿色,视角效果更柔和的同时降低小空间带来的压抑。整体风格体现了欧式的华美,也很有现代感。

曲江.紫汀苑150平米整体风格体现了欧式的华美,也很有现代感

曲江.紫汀苑150平米整体风格体现了欧式的华美,也很有现代感

曲江.紫汀苑150平米整体风格体现了欧式的华美,也很有现代感

曲江.紫汀苑150平米整体风格体现了欧式的华美,也很有现代感

曲江.紫汀苑150平米整体风格体现了欧式的华美,也很有现代感

曲江.紫汀苑150平米整体风格体现了欧式的华美,也很有现代感