龙华民治公租房82套 (深圳龙华区公租房单身户型)

2018年龙华区共面向户籍无房家庭推出9个项目850套公共租赁住房房源,具体户型信息如下:

一、阳基御龙山家园项目

该项目位于福城街道福前路。北面为福前路,南面为永久性蔬菜基地。本次供应60套房源,户型为60㎡两室两厅,供应对象为三人及以上家庭。

龙华民治公租房82套,龙华三房公租房

鸟瞰图

龙华民治公租房82套,龙华三房公租房

平面图

本次配租房源分布在五栋B座单元3-32层的D、E房号,朝向为东南。户型图及样板房实景如下:

龙华民治公租房82套,龙华三房公租房

龙华民治公租房82套,龙华三房公租房

5B栋D、E户型图

龙华民治公租房82套,龙华三房公租房

龙华民治公租房82套,龙华三房公租房

龙华民治公租房82套,龙华三房公租房

龙华民治公租房82套,龙华三房公租房

样板房实景

二、佳华领域广场一期项目

佳华领域广场(一期)项目位于观湖街道观澜大道右侧,保障房位于项目南侧1栋B座1单元,建筑面积8670平方米,共168套,为60平方米两房两厅。

龙华民治公租房82套,龙华三房公租房

鸟瞰图

龙华民治公租房82套,龙华三房公租房

平面图

本次配租房源朝向分别为西北和东南。户型图及样板房实景如下:

龙华民治公租房82套,龙华三房公租房

龙华民治公租房82套,龙华三房公租房

龙华民治公租房82套,龙华三房公租房

龙华民治公租房82套,龙华三房公租房

龙华民治公租房82套,龙华三房公租房

龙华民治公租房82套,龙华三房公租房

户型图

龙华民治公租房82套,龙华三房公租房

龙华民治公租房82套,龙华三房公租房

龙华民治公租房82套,龙华三房公租房

龙华民治公租房82套,龙华三房公租房

龙华民治公租房82套,龙华三房公租房

龙华民治公租房82套,龙华三房公租房

龙华民治公租房82套,龙华三房公租房

龙华民治公租房82套,龙华三房公租房

样板房实景

三、尚峻御园项目

尚峻御园项目位于龙华区大浪街道辖区,布龙路与建设东路交汇处。北面为和平里住宅区,南面为规划城市综合体。建设用地面积2.25万㎡,其中住宅为5栋塔楼共9.318万㎡。保障房位于项目西侧,此次公共租赁住房配租套数152套,分别为69.25-71.9㎡两室两厅共76套、37.68-38.04㎡单房共76套。

龙华民治公租房82套,龙华三房公租房

鸟瞰图

龙华民治公租房82套,龙华三房公租房

平面图

本次配租房源分布在2栋的3-21楼层,朝向分别为东南、西南、东北。户型图及样板房实景如下:

龙华民治公租房82套,龙华三房公租房

龙华民治公租房82套,龙华三房公租房

龙华民治公租房82套,龙华三房公租房

龙华民治公租房82套,龙华三房公租房

户型图

龙华民治公租房82套,龙华三房公租房

龙华民治公租房82套,龙华三房公租房

龙华民治公租房82套,龙华三房公租房

龙华民治公租房82套,龙华三房公租房

龙华民治公租房82套,龙华三房公租房

龙华民治公租房82套,龙华三房公租房

龙华民治公租房82套,龙华三房公租房

龙华民治公租房82套,龙华三房公租房

龙华民治公租房82套,龙华三房公租房

样板房实景

四、华盛峰荟名庭项目

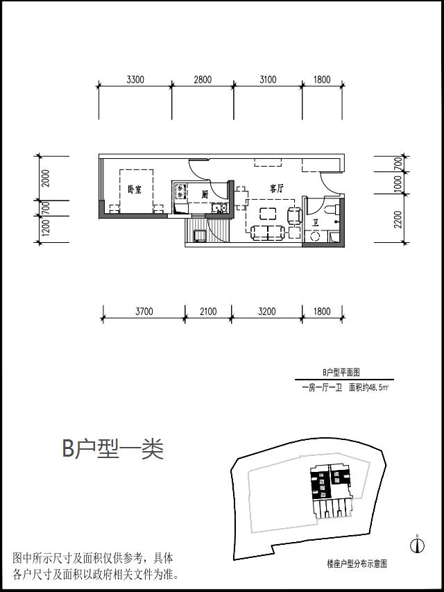
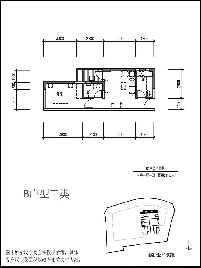
该项目位于龙华区观澜泗黎南路和核电路交汇处东南侧。本次供应125套房源,户型为50㎡一室一厅,供应对象为两人及以上家庭。

龙华民治公租房82套,龙华三房公租房

鸟瞰图

龙华民治公租房82套,龙华三房公租房

平面图

本次配租房源共有A户型、A'户型、B户型、B'户型,朝向分别为正北、正南、正西、正东。户型图及样板房实景如下:

龙华民治公租房82套,龙华三房公租房

龙华民治公租房82套,龙华三房公租房

龙华民治公租房82套,龙华三房公租房

龙华民治公租房82套,龙华三房公租房

户型图

龙华民治公租房82套,龙华三房公租房

龙华民治公租房82套,龙华三房公租房

龙华民治公租房82套,龙华三房公租房

龙华民治公租房82套,龙华三房公租房

龙华民治公租房82套,龙华三房公租房

龙华民治公租房82套,龙华三房公租房

龙华民治公租房82套,龙华三房公租房

龙华民治公租房82套,龙华三房公租房

样板房实景

五、澜汇居项目

该项目位于龙华区观澜大道以西、福民路以东、人民路以南。本次供应157套房源,户型为60㎡一室一厅,供应对象为两人及以上家庭。

龙华民治公租房82套,龙华三房公租房

鸟瞰图

龙华民治公租房82套,龙华三房公租房

平面图

本次配租房源分布在2-32层的01-13号房,朝向包括东南、西南及西北。户型图如下:

龙华民治公租房82套,龙华三房公租房

01-13号房一室一厅户型图

龙华民治公租房82套,龙华三房公租房

龙华民治公租房82套,龙华三房公租房

龙华民治公租房82套,龙华三房公租房

龙华民治公租房82套,龙华三房公租房

龙华民治公租房82套,龙华三房公租房

龙华民治公租房82套,龙华三房公租房

样板房实景

六、招商锦绣观园项目

该项目位于龙华区观澜街道茜坑社区,东近龙观快速路,西侧为茜坑社区公园。本次供应13套房源,户型为85㎡三室两厅,供应对象为四人及以上家庭。

龙华民治公租房82套,龙华三房公租房

鸟瞰图

龙华民治公租房82套,龙华三房公租房

平面图

本次配租房源分布在1栋15-26层及2栋的14-24层的H、J户型,朝向分别为东北及西南。户型图及样板房实景如下:

龙华民治公租房82套,龙华三房公租房

H、 J户型图

龙华民治公租房82套,龙华三房公租房

龙华民治公租房82套,龙华三房公租房

龙华民治公租房82套,龙华三房公租房

龙华民治公租房82套,龙华三房公租房

样板房实景

七、福安雅园项目

该项目位于龙华区观澜街道,东接观兴东路,西临福前路,北靠新丹路。本次供应48套房源,户型为90㎡三室两厅,供应对象为四人及以上家庭。

龙华民治公租房82套,龙华三房公租房

鸟瞰图

龙华民治公租房82套,龙华三房公租房

平面图

本次配租房源分布在1栋、3栋、6栋、13栋,朝向分别为西北、西南。东南。户型图及样板房实景如下:

龙华民治公租房82套,龙华三房公租房

龙华民治公租房82套,龙华三房公租房

龙华民治公租房82套,龙华三房公租房

C、 C1、C3户型图

龙华民治公租房82套,龙华三房公租房

龙华民治公租房82套,龙华三房公租房

龙华民治公租房82套,龙华三房公租房

龙华民治公租房82套,龙华三房公租房

龙华民治公租房82套,龙华三房公租房

龙华民治公租房82套,龙华三房公租房

龙华民治公租房82套,龙华三房公租房

龙华民治公租房82套,龙华三房公租房

龙华民治公租房82套,龙华三房公租房

龙华民治公租房82套,龙华三房公租房

龙华民治公租房82套,龙华三房公租房

样板房实景

八、深业泰然玫瑰苑项目

该项目位于龙华新区观澜大道与盈丰路交汇处西南侧。本次供应22套房源,户型为35㎡单房19套,供应对象为一人及以上家庭;50㎡两房一厅3套,供应对象为两人及以上家庭。

龙华民治公租房82套,龙华三房公租房

鸟瞰图

龙华民治公租房82套,龙华三房公租房

平面图

本次配租房源分布在A座1单元、A座1'单元、A座2单元(两室一厅)、A座3单元,朝向为西北、东南。户型图及样板房实景如下:

龙华民治公租房82套,龙华三房公租房

龙华民治公租房82套,龙华三房公租房

龙华民治公租房82套,龙华三房公租房

龙华民治公租房82套,龙华三房公租房

A座1、1'、2、3单元户型图

龙华民治公租房82套,龙华三房公租房

龙华民治公租房82套,龙华三房公租房

龙华民治公租房82套,龙华三房公租房

龙华民治公租房82套,龙华三房公租房

龙华民治公租房82套,龙华三房公租房

龙华民治公租房82套,龙华三房公租房

样板房实景

九、壹成中心花园项目

该项目位于深圳市龙华区东环一路与梅龙路交汇处。本次供应105套房源,户型为65㎡两室两厅63套,供应对象为三人及以上家庭;85㎡三室两厅42套,供应对象为四人及以上家庭。

龙华民治公租房82套,龙华三房公租房

鸟瞰图

龙华民治公租房82套,龙华三房公租房

平面图

本次配租房源分布在1A座33-34层、1B座24-41层、2A座46-53层、2B座5-52层、3A座3-39层、3B座3-34层,朝向包括东南、西南、东北、西北。户型图及样板房实景如下:

龙华民治公租房82套,龙华三房公租房

龙华民治公租房82套,龙华三房公租房

龙华民治公租房82套,龙华三房公租房

龙华民治公租房82套,龙华三房公租房

龙华民治公租房82套,龙华三房公租房

户型图

龙华民治公租房82套,龙华三房公租房

龙华民治公租房82套,龙华三房公租房

龙华民治公租房82套,龙华三房公租房

龙华民治公租房82套,龙华三房公租房

样板房实景