这是豪宅测评 栏目 第5期,此次我们要测评的项目是万科·天府锦绣。
万科擅长做主流产品。这一点没人会反对,成都市占率首次有企业超过5%就是万科。
但当万科决定要在成都做一个其内部最高端的产品时,这一项目就注定不同与以往。万科进入成都市场21年,已开发超过50个项目,仅有五龙山、天逸和公园5号排进万科的高端序列。
距离拿地已过去两年多,万科·天府锦绣样板间终于开放。耗时之久,在万科的开发历程中并不多见。而传言在这近三年中,万科光做产品设计就做了几十稿。

万科·天府锦绣会馆实拍图
这一过程无意中透露出“地产老大哥”在这一项目上的“确定”与“不确定”——“确定”,是在这个定价或突破3万+的项目,有意跳出自己在主流产品上的“舒适圈”;“不确定”,源于前所未有的产品定位以及对高端客群的掌控度。
样板间的开放,标志着万科·天府锦绣正式开始接受来自市场的评判。

天府公园西板块:
天府新区资源聚集度最高的区域
从过往几期我们测评过的项目可以看到,目前成都市场单价3万+的高层产品,有两类明显的生长路径:
1
一类,如新希望·D10天府,占据城市中心地段;
2
另一类,如绿城·凤起潮鸣,位于城市的文脉和传统高端住区之上。
区别于以上两种, 万科·天府锦绣选择了第三条路径:跟随城市骨架延伸,落子在未来城市的中心。

万科·天府锦绣项目区位示意图
2017年9月,万科以约9600元/平米的楼面地价拿下天府新区杭州路西段一宗约236亩、容积率2.5的住兼商用地。
彼时,区域内入市的项目仅有蔚蓝卡地亚花园城,但当天的拍卖结果已为这一板块的后市奠定了走向高端的基础——经过百余轮举牌,在熔断竞配建人才公寓后,万科才“艰难”拿下这一地块,也就是现在的万科·天府锦绣项目。
经过近三年开发,“杭州路西段”已被业内誉为“天府新区最‘贵’的一条路”。

万科·天府锦绣项目区位示意图
“贵”,一方面是指串联起的项目,从最早的蔚蓝卡地亚花园城,到目前已相继亮相的万科·天府锦绣、保利·和光屿湖、龙湖首开·云著等,高层产品面积区间几乎都是150平米起跳,统一定位其内部的高端产品。
“贵”,另一方面是板块紧邻天府新区最“贵”的两个资源——总投资额约1110亿的天府总部商务区和约1.6平方公里的天府公园。杭州路西段,也因此被称为“天府公园西”板块。
在这一板块中,另一加分项是天府七小和天府七中均已投入使用。“高端客群扎堆的地方,最稀缺的东西只有两样,房子和教育。”当把这些稀缺的外部配置集齐,杭州路西段和天府公园西已毋庸置疑地成为天府新区核心区中资源聚集度最高的板块。

天府七中实景图

项目透视:
172-256平米 两梯两户 板式 南北向
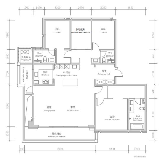
进入项目内部,由5个独立地块组成,总占地约236亩,以“亭、桥、廊、水、石、松”为基底,打造如川西古镇般的生活场景。目前,万科·天府锦绣已实景呈现三个部分,约5000平米的锦绣会馆、约5600平米的商街和约3200平米的自在湖。

万科·天府锦绣项目平面图
投入超过1亿元的锦绣会馆作为项目率先亮相的部分,在去年开放后一度成为客户和业内同行参观的必打卡地。交房后,锦绣会馆将作为业主日常的生活配套。

万科·天府锦绣会馆实拍图
约3200平米的自在湖,以稻城亚丁的牛奶海形状为原型,是万科·天府锦绣中庭景观极其重要的一部分。从2号地块的社区步行主入口进入小区,就可以看到已呈现的湖区。论湖区面积,3200平米并不能排到区域领先,但 不得不承认万科很会在塑造产品和园林景观上塑造独有的“故事线”。

万科·天府锦绣项目实拍图
从小区门口起,中式风格的堂会、戏台、风雨连廊串联起商街和住宅,再到湖区,并非肉眼可见的“豪”,但用内敛的方式传达着文化共鸣。万科给这一设计理念打了一个比喻:“‘安缦’式的生活。”
在5个地块中,湖区北侧的2号地块将率先入市,共13栋高层,2T2板式呈南北阵列式布局。2号地块分为“锦院”和“绣院”两个组团,其中“锦院”组团中的8、9、11、12、13号楼将首批次取证销售,每一栋楼就是一种户型,从南到北依次是172平米户型、198平米户型和256平米。

万科·天府锦绣项目效果图

户型
端厅 的设计 无关对错,只有关喜好
172平米的户型临湖最近,也将是买入万科·天府锦绣总价最低的一个户型,目前暂无样板间 。
目前,项目共开放了198平米和256平米2个户型的非实体样板间。实体样板间预计将于今年底开放,而目前样板间所在的地块将在后期改造为配建的幼儿园。

万科·天府锦绣项目172平米户型图
先说198平米的户型。纵观目前市面上户型区间在200平米左右的项目,基本都做的是三房,要么强调社交,要么放大每个空间的尺度,让人第一眼感觉就是“豪”!但在天府锦绣198平米这个户型上,你会看到不一样的做法,即加入一贯以来的“万科逻辑”,即房子要住得进去,会更强化居住的功能性。因此,万科·天府锦绣把198平米做到了四房两厅三卫。

万科·天府锦绣项目198平米户型图
功能性之外,这个户型的亮点是在客餐厅部分做到了约270°的采光面和约15平米的景观阳台。不过受限于追求南北通透和2T2的梯户比,四个房间中有3个不得不摆到了朝北的位置。

万科·天府锦绣198平米装修示范单位实拍图
256平米是此批次的楼王户型,位于11号楼。在这个户型中,万科采用端厅设计——简单来说入户先经过卧室区再到客厅。256平米南向的视距最佳,达到了近50米。

万科·天府锦绣256平米入户门厅实拍图
样板间开放后,市场上曾就此出现两种不同的声音,一种认为端厅牺牲掉了卧室部分的私密,即便卧室区设有独立玄关;另一种则认为门厅处设有约10平米的空间,增强入户仪式感的同时,保证了客餐厅的采光和视野。在万科·天府锦绣这一户型中,客餐厅面积达到约73平米,并实现三面约270°的采光,主采光面接近12.5米。

万科·天府锦绣项目256平米户型图
坦白说,端厅的设计无关对错,只有关业主喜好。因为这并非万科原创,在一线城市一些高端公寓和成都此前麓山等项目中,都曾有过类似的设计,也都被市场认可。而且,到了购买总价800万+产品的级别,本身也是“货卖爱家”。
但从客户购买行为的倾向来看, 这一户型或面临的争议点是,仅有约8平米的阳台,这一点或让部分喜欢大阳台的成都人失望 。目前,市面上同面积段的产品,普遍做法是采用当下更流行的公建化外立面,或是把阳台的尺度扩大到25平米及以上。

精装
集齐劳芬、旭格、柏丽、Smeg等“豪宅标配”
对于单价在3万+以上的产品,精装永远是测评时重要的一项。
万科·天府锦绣对于两个户型的软装,选择了截然不同的风格。198平米的户型,采用原木色系,有意营造更轻盈的居住氛围;256平米的软装则更偏咖啡色,整体给人更成熟的感觉。

万科·天府锦绣198平米装修示范单位实拍图
在硬装装标上,发哥打听说,样板间开放前,万科内部就天府锦绣硬装品牌有过不止一次的讨论,如何在限价、成本控制和“标杆级产品”中,做到更优的配置。
说直白点,花钱谁都会,但是花多少钱买什么样但东西然后拼接起来,才是核心关键。如今呈现出来的配置,让万科·天府锦绣在精装这一项将拿到高分。

万科·天府锦绣256平米装修示范单位实拍图
这是部分品牌清单:
1
LAUFEN(劳芬)——两个户型的主卫区都采用劳芬马桶、浴缸及面盆“三件套”,尽管不是这个品牌的高端序列,但一个数据仍可见“劳芬”对于万科·天府锦绣硬装的加分:256平米主卫中的浴缸,市场报价就超过10万。

万科·天府锦绣256平米超过10万的浴缸
2
SCHUECO(旭格)——万科·天府锦绣在门窗上的选择是来自德国的旭格系统窗,做工程的朋友大致算了一下,旭格系统门窗的造价一般是普通系统门窗的3倍。
3
在中西厨柜体和厨电方面,万科·天府锦绣分别使用的是德国的nobilia柏丽和意大利smeg,这两个品牌也都被称为“豪宅标配”。
除了在用大牌填充提升精装档次之外,万科在天府锦绣项目精装上的“抠细节”也再次体现了万科非常想做好天府锦绣的决心。

万科·天府锦绣198平米装修示范单位实拍图
比如,在卧室门把手上加了皮套,避免冬天开门时冰冷的手感;在入户玄关柜里,专门预留了可移动的柜板和可后期安装鞋子风干净化器的接线盒。这样一来,既能保证女业主冬天的长靴可放进柜子里,也可随时保证鞋柜的清新。

预期和时间的博弈
以上,是我们对万科·天府锦绣所做的实地测评。看完后,一位同行的业内人士给出的整体评价是:“超过了市面上95%的项目。”
这是对于产品本身的肯定。但对于万科·天府锦绣,这并不等于为入市后的销售业绩上了绝对的“保险”。
因为万科·天府锦绣一旦取证,将创造区域价格的“天花板”,每平米单价或突破3万+,最高总价或接近900万——这在此前天府新区的大平层产品中从未有过。

万科·天府锦绣198平米装修示范单位实拍图
第一个“吃螃蟹”的项目,势必也是这一类项目的“探路人”。
如文章一开始所说,在很长一段时间里,我们都留下了“豪宅生长在城市中心”这一刻板印象,即在城市既定的中心,出好产品的概率应该是最大的。
如果对市场抱着这一点认知,再去看看那些占着好地段的项目,你可能会发现:目前,成都市中心的全新项目,除新希望·D10天府外,其余项目的做法出奇的一致:定位主流面积段,更好的控制总价。
也就是说,同时满足城市中心+高端定位+户型约200平米起、深度居家的产品,在成都主城区处于空白。毕竟越在城市中心的项目,开发商“束缚”越多。地价、地块大小、形状、周边环境,还有现实的销售业绩等诸多因素,都考验着企业的心智。

万科·天府锦绣项目示范区实拍图
当改变不了环境时,就去改变自己。万科·天府锦绣属于这一类——他们押注的,是把豪宅从传统城市中心“搬”到新兴的城市中心,再配上一个填补空白的产品。
从一线城市已有的豪宅发展历程来看,万科·天府锦绣的这条路无疑是趋势。但之于现阶段的购房者,对区域预期的认知和价格接受度,需要时间去说服。
眼前,是用时间换空间,还是先占据空间、牺牲掉对产品部分的追求,或才真正决定着万科·天府锦绣入市后的销售表现。
万科能否跳出“舒适圈”,一切的谜底,时间终将给出答案。
作者:谢雯