天中国际这家户型提前我们在小区装过,业主找了当地几家装修公司。我们在现场测量过后约业主去看方案,由于老公不在家推迟了一下。
装修户型:三室两厅一厨一卫
装修预算:全包12万(不包括家具家电)
装修面积:128
业主要求:
1.主卧自己住 一个儿童房 一个老人房。
2.卫生间干湿分离。
3.储物多一点。
4.餐厅喜欢卡座样式

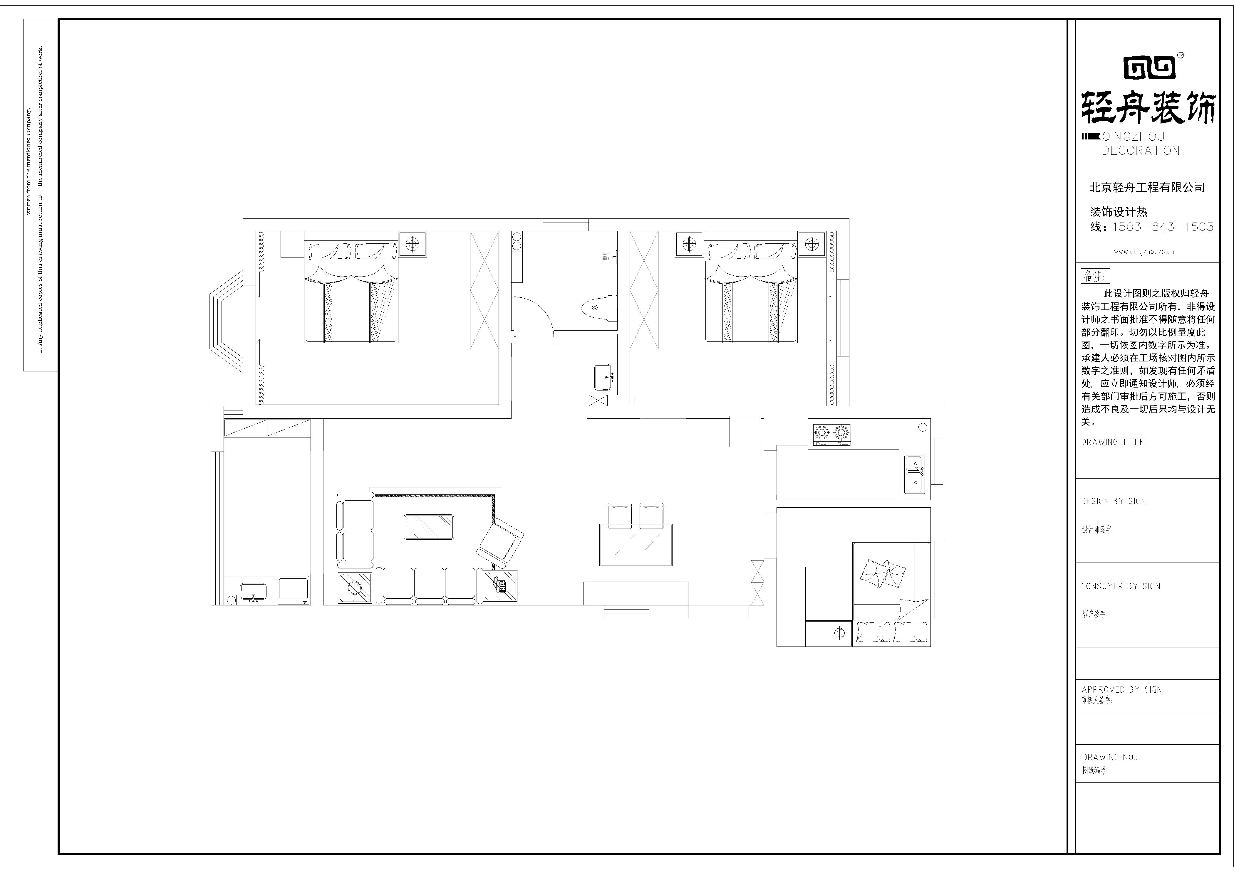
原始结构图
户型分析:
1.客餐厅连接在一起 没有单独的过道区分 整体客餐厅空间给人的感觉非常大。
2.餐厅没有单独的酒柜区域,收纳较少。
3.阳台南北进深宽,阳台比较宽敞
4.卫生间干区空间过大,造成浪费。湿区马桶正对卫生间门口

平面布置图
改造解析:
1.封闭原有餐厅区域的窗户 做成卡座 收纳柜一体,增加储物空间,巧妙利用餐厅空间。
2.拆除原有卫生间隔墙,扩大卫生间内部空间,做三分离卫生间,解决马桶对着入户等问题。
3.入户右手边做入户收纳柜,存放包 钥匙。
4.入户房间考虑儿童房住,考虑空间过小做成了转角书桌+衣柜,给孩子预留了1.5米的儿童床
5.阳台封闭西侧窗户 储物柜增加收纳,东侧洗衣机伴侣+上方吊柜。
6.其他卧室属于正常布置,
效果图

餐厅

沙发背景 卡座

客厅
客餐厅整体造型并没做过多的吊顶 只是前后背景做了局部暗藏光源吊顶弱化了梁体,背景墙也就简单贴了石膏线,整体造价也不高,但整体效果出来还是蛮大气的。餐厅区域的卡座超级实用,解决了就餐的问题,还把储物的空间提升了,餐厅偶尔 可以放几瓶红酒 做一些简单的收纳。一家人其乐融融!
更多设计案例分享,一定要关注小编才能看到噢!
如果你装修遇到了什么问题,可以私信我,小编会为您免费解答噢!
如果您近期准备装修,可点开作者头像进入主页,点击左下方“联系我们”,即可直接预约。