
▲东北侧鸟瞰图
清控人居文化创意产业园
项目地点: 上海市松江区
设计团队: 朱晓东,席文川,梁歌,刘枫,冯正海,宋康,李飞,韩昊庆
用地面积: 78170㎡
项目总建筑面积: 159000㎡
新建建筑面积: 116000㎡
设计时间: 2019年1月
中标时间: 2019年3月5日
项目背景
清控人居文化创意产业园是清控人居集团在文创产业园区领域打造的首个标杆性项目。该项目位于上海西南部,松江新城东部。用地原为超人电器生产厂区,用地南侧为G60高速,北临新腾路,东侧为新润路。场地为南北向条状用地,场地的西侧及南侧有水系通过。
▲项目区位
项目总建筑面积15.9万平方米,其中改造面积4.3万平方米,新建面积11.6万平方米,主要以科研研发、科研配套等功能为主。园区还将延续清控人居集团多年坚持产学研一体化的发展道路,与松江区共建“长三角文创生态圈”,为G60科创走廊的文创升级提供人才、技术、资源的交互迭代,实现孵化、投资、运营协调发展的创新创业新生态系统。
整体项目用地分为南北两个部分:北区地块,规划面积46483.8㎡,属工业用地性质,用地容积率2.0,场地限高30m,局部为50m;场地内有现状建筑3幢,其中两幢已经改造为中央创意空间(图3)。 南区地块,规划面积31686.4㎡,属工业用地,容积率2.0,场地限高30m,局部为50m。

▲改造完成的中央创意空间
改造设计充分发掘工业建筑园区的文化属性,使之成为园区的“特色符号”和“文化标杆”。新建项目在改造后的老厂房周边展开,合力打造区域特色,完善园区功能。
思考逻辑
1. 对话
如何将旧有建筑服务功能纳入全新的园区体系,并使新旧两者产生有机的对话与联系,完成城市的迭代和更新?
2. 价值
在时代大背景下,产业不系统,投资门槛低,同类产品竞争激烈。如何让产品脱颖而出,打造出市场差异化精品。既能满足政府需求以实现社会价值,又能体现经济价值?
3. 社群
如何通过空间设计的手法融合全时生活圈系统,在营造舒适空间的同时,提升参与感,把握身份认同,使员工在这里享受工作,而不仅仅是作为一个工作聚集地?
解决方案:
1. 在保留与变更中寻求新旧的平衡,并使之产生全新的对话。设计遵循中央创意空间的核心地位,围绕其建筑风格进行园区的更新升级。在实现空间营造协调统一的基础上,建筑元素彼此呼应,从建筑形体、色彩等层面增强沿街形象的展示性。
2. 项目设计从建造的经济性角度,对建筑进行成本控制,充分考虑建筑模块化,运用BIM技术从设计各环节进行匹配性介入,充分考虑建筑造型与结构构建的装配化需求,以规整的造型和模数化的设计体现工业园区的文化属性,同时彰显新型文创的园区性格。
3. 以配建公共开放绿地的规划条件为契机,以经济回报测算为基础,在打造园区高品质公共开放空间的同时,重视宜人尺度的文创环境营造。通过景观环境的引导形成新的社群环境,融入清华精神和园区主题,在外部空间的营造层面提升产品的吸引力;全时生活圈系统的引入,扩充了园区的工作和生活维度,强化了社群感,最终形成极具吸引力的文创产业园新标杆。
总体规划

▲东南侧鸟瞰图
本项目设计以工业园区的特征和园区使用需求为根本出发点,从协调性、经济性、流线合理等角度确定规划原则。
园区按功能属性不同分为三类产品区域:
第一类区域为“高层研发办公区”,是园区内的高层部分所在,位于用地南北侧沿街位置高度为50米,是园区对外的形象展示和标识性建筑;
第二类区域为“多层研发办公区”,该区域由20余幢独立多层办公空间组成,是整体园区品质化的产品体现。
第三类区域为“生活配套区”,该区域是为办公研发人员提供的住宿产品和配套功能产品。位于用地的中间部位,便于南北区人员就近使用。

▲功能体量分布图

▲扩充工作与生活维度流程图
建筑设计
设计师尝试将文创产业园区的项目定位具象化,将其体现在实际的设计风格之中,打造具备创业活力与文化辨识度的区块节点。设计为突出园区的工业气质,采用构成风格分割主体体量,突出横向层板与外置楼梯等纵向构件,将结构构建充分外展,并通过适当悬挑,使得会议、交流等内部空间更加灵活自由。整体设计风格在体现工业感、高技感的同时,以悬挑体块创造更为丰富的半室内、半室外空间。

▲东北侧人视图
建筑平面设计充分考虑未来工业园区办公模式的多变特征,以方正空间凸显其高效性、可变性、和办公空间的灵活性。
从差异化的营销模式思路出发,在对周边竞品调研分析后,确定研发办公楼的不同面积类型。高层办公空间在满足各类规范的前提下,尽可能提高办公面积的使用效率,并在空间划分中寻求新的突破。
建筑立面采用规整且模数化的构建产品以体现装配式建筑的特征要求。在竖向元素的划分上,通过变形手法与建筑外遮阳系统进行融合,实现园区在建筑风格和空间形式上的一致性。高层建筑的竖向分割形式是通过体块的分割变化加以体现和强化的,楼体侧立面的竖向箱体元素从视觉感受上更能凸显建筑的工业性、段落感以及雕刻感。

▲北区高层建筑体块拆解图

▲南区高层建筑体块拆解图
色彩方面,建筑群组以暖灰色为主要基调色,在办公建筑的楼梯间、入口空间以及建筑角部采用色彩条框以增强建筑群组的可识别性,同时色彩条带又可丰富园区的活跃氛围,提高组团的辨识度。整个园区体现出素雅品质的同时不失活泼灵动的风格。

▲岛式办公与完整空间示意图
设计利用高层部分和裙房部分的不同空间特性,灵活引入 “绿色共享”的空间形式,在设计中,除标准办公空间外,结合岛式、散点式布局非标的办公空间。在裙房部分的二层,利用穿孔金属板造型,自由分隔“岛式”公共空间,并于周边形成室外平台,并在间隔处设置天窗,供大空间办公采光需要,同时在其周边设置绿化庭院,打造共享舒适的办公微环境。
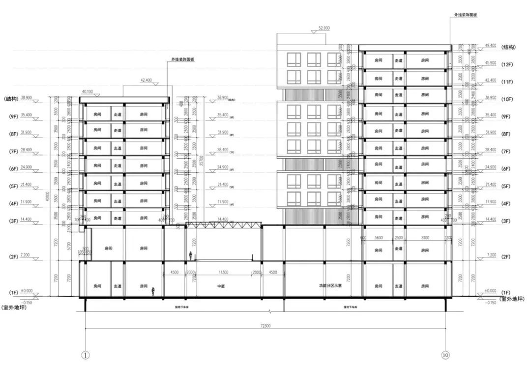
▲北侧高层办公剖面图

▲统一构成方式
相同的思想延伸至多层建筑设计上。设计根据多层在功能上自由分隔和造型上需要形成围合庭院的需求,利用构成风格及打造小空间的特性,将多层的空间进行合理划分,形成多层露台+一层花园的空间形式。以体块穿插的设计语言将方框、玻璃墙面、入口空间等进行有机整合,形成多层次的基本形象。

▲G60高速沿线人视图
总结
本项目立足于松江城市更迭的工业区,随着G60科创走廊的加速建设和工业城区的转型思路,松江工业园区亟需创新、创智的空间营造和品质空间的更迭提升。面对城市的扩张,旧厂区的衰落,“更迭新生”才是老工业园区在新时代的必然选择。
以松江工业区的历史文脉为出发点,站在客户实际产品需求的角度,确定项目应有的气质和特征,通过模块化、景观化、个性化的思路进行方案构思,用朴实的设计手法,将新与旧的对话彼此延展,着力打造具有高度认同感的创新社群。将旧有建筑的工业遗存,与新建筑的活力彼此叠合,共同构筑具有现代风貌工业园区的序列感。最终,在更迭与新生中,实现区域的复兴!
供稿:第二分院