第一部分、项目概述

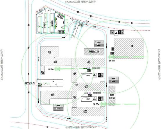
跟椐该建设项目平面图,给出如下智慧工地实施方案。
第二部分、项目背景
一、系统建设目标
本项目通过物联网等信息技术有效提升建筑工程安全管理水平,达到以下目标:
l 全天候的管理监控
为企业的管理者提供365*24小时的人员安全、设备安全、施工进度、绿色施工等监管及服务,全方位的了解工地的施工情况。
l 全方位的协同监管
建立多部门协同管理的监管系统,实现全方位协同监管,提高工作的效率,做到过程可查询、结果可分析。
l 全流程的安全监督
采用在线执法,远程取证,动态预警等方式实现对建筑工地全方位的安全监督。
l 全方位的数据分析
包括自动处理现场的实时数据,共享各种类型的数据为管理提供及时、准确的信息。
二、项目建设概要
根据施工图统计预实施智慧工地相关硬件设备如下表:
公司平台开放协议接口,项目自有设备可实现对接

该系统的建设以项目现场应用为基础,能够实现横向的各参与方(如业主、监理、咨询公司)的协同管理,纵向与集团公司层面进行信息互通,同时提供标准化的接口协议,可实现数据对第三方平台的对接分发。
基于我们现有的功能及项目需求,其前期可搭建的系统架构图如下,后期可按照项目的实际需求进行升级优化,从而实现所提出的围绕项目的全生命周期建立一个支撑现场管理、互联协同、智能决策、知识共享的一整套项目现场管理的信息化系统。

当前项目平台的功能围绕人员管理、设备管理、质量安全监管、绿色施工、进度管理及多方协同管理展开,实现对工地现场人员、设备、环境、流程全要素的信息化,并通过GIS的形式进行展示,实现可视化、智能化的管理。在接入数据的基础上实现动态展示、分析预警、并按照工地的组织结构权限进行划分和设定,实现数据的有效监管。项目部可通过桌面应用、大屏、APP及触摸屏来查询数据,实现随时随地的管理。
Ø 人员管理
人员管理主要围绕进出的管理和施工过程的管控两个部分,通过进出管理能够防范非法人员进入工地,评估劳务用工;施工过程管控帮助管理人员更好的把控劳务工人的施工时长,在规定时间是否未出工地等,评估施工工效及风险。
针对工地的布局分为施工区、办公区、生活区,根据不同的环境需求进行针对性的部署和设计。
办公区:可采用高速人脸识别方案,能够有效的管控进出的人员,保证办公区的安全性;
施工区:可采用IC卡进行人员进出管控,其进出的效率相对于普通的人脸识别方案更快,但是容易出现代刷卡、给别人刷卡的情况,其考勤统计数据的准确性不是很高;建议在施工区铺设我们最新的高速人脸识别系统,其相对于常规的人脸识别的在速度上更高,劳务工人小跑就可以进入,提高进出效率;同时可设置黑名单及安全帽识别,防止非法人员及未带安全帽的人员进入工地。科技含量高,对于后面的观摩是一个很好的展示主体。
生活区:生活区人员流动量大,可考虑高速人脸识别
安全帽定位:通过RFID无线射频技术,通过在施工场地内架设定位基站,探测基站半径50米左右覆盖范围人员的数量及信息,对危险区域长期滞留系统自动预警提示。
Ø 设备管理。当前工地需上塔吊、升降机、卸料平台等相关其中设备的硬件产品,为提高施工安全及效率可配套的上对应的监控系统。
1、塔吊监控:通过各种传感器能够监控塔吊的运行工况,并实现超载、超力矩报警及区域保护,因为现场的塔吊均涉及交叉施工,所以需上群塔防碰撞功能;
2、升降机监控:该项目有处于高层建筑,需要上施工升降机,通过司机身份识别,防止非法人员操作,减少作业风险;
3、车辆管理:可在工地的车辆进出口加装车辆出入监控,实时统计进出的车辆,还可设置黑名单防止非法车辆进入工地;同时项目部可自行加装洗车槽,保证出工地的车辆不会带尘土到外面的道路中,对市容市貌造成影响。
4、视频监控:当前项目工地已安装视频监控系统,可考虑将该视频监控数据接入到平台中,实现远程的监督监管。
5、红外对射:对施工场内危险区域(四口五临边)架设红外射仪,在人员发生穿越该区域时,本地声光报警器即刻发出声光警报,以提醒穿越人员。同时平台产生相应的区域报警信息,提示相关安全负责人到该区域处理。
Ø 质量安全管理。质量安全在设备监控的基础上,核心还是针对人的管理,通过提高对人的意识、技能的培训,从而从源头上保障安全、质量。
1、资料共享:现场的各种技术、安全、质量等各种文档及规章制度可上传后,所有进行查阅,减少信息传递的不及时,实现随时随地的学习。
Ø 绿色施工。监管单位对工地的施工环境越发的重视,需要实时显示环境数据并对能有针对超标环境有治理的功能,同时还涉及到能耗治理。
环境监测:通过扬尘噪音监测设备,能够实时统计PM2.5、PM10、噪音、温度、湿度等,并设置报警值,当超标则及时提醒。现已采购1台,可接入平台中。
环境治理:通过与雾炮、地面喷淋、塔吊喷淋联动,可实现手动、自动(与扬尘噪音设备联动)、定时(根据施工时间挂钩)的降尘作业,对现场环境的治理更全面。
Ø 项目协同。在施工过程中会涉及到其他关联方(如监理、甲方等)的联动,
实时的互动沟通既能够提高施工效率,也能够提高用户满意度,为业务的业务开展铺路。
第三部分、智慧工地系统总体设计
一、系统总体架构

平台是物联网、移动互联、大数据技术在建筑行业的典型应用,根据运营商在产品安装、调试过程中制定的“运维管理、服务保障”体系和国家制定的“标准规范”体系,整体框架设计为:数据采集与感知层、数据传输层、数据存储中心、指挥中心、标准接口与数据交换层、平台建设、应用层。
Ø 数据采集与感知层
主要由前端监控设备的各种传感、遥感设备与采集分析主机组成。它可以通过传感器采集施工现场的安全、质量、人员数据,通过监控主机进行数据分析和过滤,实现施工现场安全、质量的检测与报警。
Ø 数据传输层
施工现场的设备安装监控主机后,并通过3G/4G及有线方式进行数据的传输,将现场设备采集的数据远程传到数据中心进行存储,数据采集和传输使用了物联网技术。
Ø 数据中心
对设备采集到的数据和业务办公的数据在中心统一存储和进行访问。主要有项目、企业、人员、设备、业务、视频、设备采集和报警数据等。
Ø 标准接口与数据交换层
详细说明参考本章节“系统接口设计”。
Ø 应用层
应用层使用对象为项目管理人员及工作人员等,其应用功能模块参考本章节“平台功能设计”
二、用户权限设计
系统支持用户管理、角色管理、权限管理等。
(1) 用户管理
可对系统用户的基本信息、单位信息等进行管理。
(2) 角色管理
系统需根据单位的类型、用户职位等进行角色划分。
(3) 权限管理
系统需根据用户的情况赋予不同的角色,进而进行严格的权限管理,查看不同的数据及执行不同的操作。
三、系统接口设计
系统包括了多个应用系统,并与外部系统协同工作。因此,系统的接口设计包括了两个方面,一是系统内部的接口设计,二是与外部系统之间的接口设计。
系统内部接口是智慧工地系统内部的各类接口:无线数据传输接口、视频监控接口、本地数据交换接口、业务系统接口、GIS地理信息系统接口、短信系统接口、门户网站信息发布接口、以及后续扩展应用开发接口等。
系统必须能提供标准化的接口,且各接口应实现模块独立,封装为独立的服务,符合SOA架构的相关规范,满足SOA架构的相关要求。
四、设计原则
为确保系统建成后能够达到预期目标,项目建设过程中,将具体遵循以下原则:
Ø 规划先导,超前设计
在技术和设计与应用上着眼未来与全局,既要满足行政执法工作的直接需求,又要适应企业现状下其他工作的应用需求。
Ø 统一标准,分布实施
严格遵循国家和省的有关规定,确保技术、标准、协议和接口统一,坚持分布实施、分布推进、分层推经、分阶段实施建设。
Ø 整合资源, 信息共享
充分利用职能部门现有的网络、信息、设备等资源,把增量投入与存量有机的结合起来,促进互联互通和信息共享。
Ø 安全可靠,保障有力
采用政府认定的安全保密措施和手段,建立健全组织、制度、安全等保障体系,确保系统的安全可靠。
Ø 实用性原则
坚持按需建设的原则,以业务为先导,正视管理层和现场管理痛点。
Ø 系统兼容性原则
数据定义与系统接口等方面应与相关行政主管部门的系统兼容一致,保证数据的可交换性和业务流程的可交互性。
Ø 开放性原则
建议提供一个开放的、易于维护的、灵活的、易于扩展的、统一的标准数据接口,以达到和外单位系统的应用数据能够无缝的进行数据交换。
Ø 扩展性原则
充分考虑业务规模和结构的发展变化,系统构架和应用开发均具备可扩展性,能够随着应用的逐步完善和信息量的逐渐增加不断地进行扩展。
Ø 稳定性原则
系统设计要保证系统正常工作的能力和在错误干扰下重新恢复和启动的能力,不至于因某个动作或某个突发事件导致数据丢失和系统瘫痪。
五、设计规范
根据项目实际需求和国家有关法规的要求,我们经过认真研究、分析设计本系统方案。该系统具有性能先进、质量可靠、经济实用等特点,而且该系统具有方便扩展、与其它信息系统实现无缝连接的能力。为实现安防系统的可视化管理奠定了基础。
依据的相关规范包括:
建设依据国家相关法律规章、国家和行业相关标准、相关研究成果等资料进行规划设计,依据的相关规范具体如下:
l 《建筑工程施工现场视频监控技术规范》(JGJ/T 292-2012)
l 《安全防范工程技术规范》(GB50348-2004)
l 《城市监控报警联网系统通用技术要求》(GA/T669-2006)
l 《视频安防监控系统技术要求》(GA/T368-2004)
l 《安全防范系统通用图形符号》(GA/T74-94)
l 《安全防范系统验收规则》(GA308-2001)
l 《民用建筑电气设计规范》(JGJ/T16-92)
l 《建筑物电子信息系统防雷技术规范》GB50343-2004)
l 《电气装置安装工程施工及验收规范》(GBJ232-92)
l 《塔式起重机》(GB/T5031-2008)
l 《关于进一步加强企业安全生产工作的通知》(国务院2010年23号)
l 《塔式起重机安全规程》(GB5144-2006)
l 《建筑起重机械安全监督管理规定》(建设部166号)
l 《空气中粉尘浓度的光散射式测定法》LD98-1996
l 《公共场所空气中可吸入颗粒物(PM10)测定方法 光散射法》(WS/T206-2001)
l 《工作场所空气中有害物质监测的采样规范》(GBZ159-2004)
l 《环境空气 总悬浮颗粒物的测定 重量法》(GB/T15432)
l 《中华人民共和国国家计量检定规程—光散射式数字粉尘测试仪》(JJG846-1993)
l 《环境噪声自动监测系统技术要求(暂行)》
l 《建筑施工场界环境噪声排放标准》(GB 12523-2011)
l 《污染源在线自动监控(监测)系统数据传输标准》(HJ/T212-2005)
l 《电声学 声校准器》(IEC 60942-2003)
l GB/T15381-94《会议系统电及音频性能要求》
l GB/T 16858-1997 《采用数据链路协议的会议电视远端摄像机控制规程》
l GT/T 50311-2000《建筑与建筑群综合布线系统工程设计规范》
l GB-50169-92《电气安装工程接地装置施工及验收规范》
l GB-50254-96《电气安装工程低压电器施工及验收规范》
第四部分、智慧工地系统详细设计
1.智慧工地应用框架
智慧工地在项目工地的部署及执行是全方位的。
通过引入智慧工地集成平台帮助项目工地实现全方位、全时段的监控管理,有效的提升管控效率;同时在项目工地独立开辟一个区域部署智慧展厅,全方位、一站式的将工地的信息化情况进行集中展示,便于更好的向领导、项目管理人员、施工人员进行讲解和体验,形成从上到下的认知;智慧工地的部署需要项目方全方位的配合,通过制度的引导和督导落地,才能将智慧工地真正的应用下去并产生成效。
2.智慧工地集成平台
2.1集成平台概述
智慧工地管理平台是一整套软件、硬件结合的系统化产品,通过硬件设备的监控及数据采集、平台的统计及分析的闭环流程,建立基于施工过程管理,建立互联协同、安全监控体系,并通过对所采集的数据进行挖掘和析,提供预测和预案,实现对工地的可视化和智能化管理。
通过一站式平台,集中呈现工地现场的设备、安全、质量、环境、人员等各块信息,将工地的平面图植入到系统中,并在当前平面图的基础上显示各种设备的监控分布,可直接点击查看各设备的监控状态和数据分析,实现可视化的管控。
2.2集成平台功能框架

2.3 智慧工地集成平台Web端
1)平台驾驶舱
通过一站式平台,集中呈现工地现场的设备、安全、质量、环境、人员等各块信息,将工地的平面图植入到系统中,并在当前平面图的基础上显示各种设备的监控分布,可直接点击查看各设备的监控状态和数据分析,实现可视化的管控。

2)用户管理
当用管理员账号登陆平台时,可看到平面图右侧按钮“用户管理”,可创建项目的组织架构并配置劳务及项目人员账号,可通过该账号登录劳务版及工地版APP,实现移动办公。

3)权限管理
当用管理员账号登陆平台时,可看到平面图右侧按钮“权限管理”,可以添加角色并为这些角色分配不同的权限,实现不同角色的差异化管理。

4)工程信息
可查看相关建设、监理、设计、勘察企业的信息展示,包括企业名称、企业信息、官网链接、工程资质、工程案例、项目负责人等;可查看项目的信息展示,包括工程类型、总建筑面积、审批状态、计划工期、工地详址等。

5)人员管理
智能分析。其涵盖现场施工总人数的实时统计、现场劳务人员各工种出工统计、场内人员数量24小时变化趋势、各工种出工历史统计、人员地域/年龄/性别/受教育分布情况统计。

Ø 人员管理。可排量导入、删除劳务人员信息,同时对于劳务工人进行信息的编辑及完善,实现劳务人员的档案管理。

Ø 考勤管理。可按部门、姓名、手机号、日期查看劳务人员的考勤记录,并可设置考勤异常范围并查询相应考勤异常人员,全面掌握现场人员的考勤情况。

Ø 组织架构。看到清晰的组织架构和岗位设置,方便内部管理和对外展示。

6)现场监控
Ø 塔吊监控子系统。可看到塔吊近七天设备作业强度/设备违章排名/司机违章统计的各项监控数据,查询设备的运行、违章及司机作业记录,通过动画实时塔吊运行状态,可远程查看吊钩眼视频图像。


Ø 升降机监控子系统。可看到升降机近七天设备作业强度/设备违章排名/司机违章统计的各项监控数据,查询设备的运行、违章及司机作业记录,通过动画实时升降机运行状态。


Ø 车辆出入管理子系统。车辆进出工地时进行抓拍并统计,可看到场内车辆的变化情况和历史车辆的详细信息,更利于车辆的管理和监督。

7)数字办公
Ø 巡检管理子系统。可查看APP发起的各种巡检事项,如现场照片、巡检结果、审批流程等,同时对于有争议的内容平台有权进行二次的编辑完善。

Ø 资料管理子系统。当有资料变更,技术人员将资料上传到系统中并设置提醒人,用户可在APP*载下**资料进行查看和确认,随时随地能接收

8)绿色施工
Ø 扬尘噪音监测子系统。可查看PM2.5/10实时监测数据,并提供当前及过去24小时的监测统计数据波形图;通过设置报警参数,当达到该数值后进行远程报警数据推送;同时提供未来72小时的天气预报,包含天气、气温、PM2.5/10、风速等数据信息,方便相关人员依据天气变化提前做出应对;

Ø 降尘喷淋控制子系统。可实现远程及现场手动降尘喷淋,在自动模式下可设置定期启动时间,也可设置超限数值自动启动;

Ø 用电管理子系统。可看到实时用电、用水情况的分类占比、详细数据、趋势分析,全面掌握能源消耗情况;还可远程控制用电、用水开关,远程配置自动开关,合理分配能源,节约使用能源。

2.4 智慧工地集成平台APP端
1)主页
可看到工地环境(扬尘、噪音、风速监测数据)、进度(项目起止时间及实时进度)、人员(24小时内工地现场管理人员、劳务人员实时人数变化趋势图,以及总人数与异常人员数)、安全(塔吊、升降机、卸料平台的实时在线数量与异常数量)、质量(各巡检类型的累计巡检次数)的实时数据展示,快速了解工地现场情况

2)人员
可看到劳务人员、管理人员的智能分析、考勤管理、组织架构:
Ø 智能分析:实时显示场内人员数量(总人数/异常人员数/劳务人员数/管理人员数),各工种人员数,各工种近7天出工情况;
Ø 考勤管理:可切换查看劳务人员/管理人员近7天出勤异常情况和具体人员;
Ø 组织架构:即人员通讯录,左上角可切换显示劳务人员/管理人员,下方是人员分组,点击可查看某个分组的通讯录。点击劳务人员可查看详情或拨打电话,点击管理人员可拨打电话/发送信息/发起视频,实现工地现场的即时通讯。

3)监测
Ø 视频
显示工地现场视频监控摄像头列表,蓝色表示在线,灰色表示不在线。点击可查看实时视频监控画面,全屏模式下可进行云台控制。管理人员可随时随地查看工地视频监控,方便管理的同时起到了很好的监督作用。

Ø 塔机
可查看近7天违章次数变化趋势图,点击“详情”进入“违章历史”页面,可筛选查看违章历史记录;页面中部是塔机分布图,下方是塔机列表,点击进入塔机详情页,可看到塔机实时动画及吊钩可视化视频等。管理人员通过这些数据可及时了解塔机作业情况,加强对塔吊的安全监控。

Ø 升降机、卸料平台
可查看近7天违章次数变化趋势图,页面下方是升降机、卸料平台列表,点击进入升降机、卸料平台详情页,可看到升降机、卸料平台实时动画等。管理人员通过这些数据可及时了解升降机、卸料平台作业情况,加强对升降机、卸料平台的安全监控。

Ø 扬尘噪音
显示实时的PM 2.5、PM 10、噪声、温度、湿度、风速监测情况及当天PM 2.5、PM 10、噪声监测数据变化趋势及是否超过相关报警值情况,以及近7天天气预报。便于实时掌握工地现场的环境情况。

Ø 雾泡喷淋
可以对雾泡喷淋设备进行远程配置和开关控制;

Ø 车辆出入
当天工地现场车辆数量变化趋势图,输入车牌号可查询该车进出时间及停留时间;

4)工作
Ø 资料共享
点击“资料共享”,进入资料共享页面,可查看资料文档,方便相互交流。

Ø 项目信息
点击“项目信息”,进入工程信息页面,包含企业信息和项目信息。企业信息中可切换查看勘察、设计、建设、施工、监理企业的详细信息、公司官网、工程资质、工程案例、负责人信息等,项目信息中可了解该工程基本信息及相关图片等。

3.可视化前端产品设计
3.1、视频监控子系统
视频监控无疑是施工企业对施工现场最直观的科技监管手段之一。现代监控的联网、高清、无线 三方面更加贴合工地行业应用的实际场景。项目远程视频监控系统可应用于项目施工生产、质量、安全、文明施工管理等方面, 管理者可及时掌握施工动态,对施工难点和重点及时监管。监控范围全面覆盖现场出入口、施工区、加工区、办公区和主体施工作业面等重点部位,还可结合移动单兵设备、进行工地常规巡检或应急救援、隐患排查、项目验收、组织专家进行远程指导等情况使用。

网络拓扑
前端摄像头所采集的监控数据通过流媒体网关上传到阿里云,可视化平台可通过从流媒体网关获取数据并在应用端显示;

3.2、人员管理-实名制管理子系统
产品概述
从业人员(实名制)考勤管理子系统可采用低频射频卡或人脸生物识别技术实现对工地劳务人员、企业自身内部员工等进行实名制的管理。从实名制信息注册、考勤、数据上传、统计查询,形成基本的数据资料,为农民工维权及避免企业遭受恶意*薪讨**打下坚实基础。

身份识别方案
1、IC卡。主要功能就是读取IC卡种卡号并显示到平台上,平台用于跟所录入的人员进行绑定,每个劳务工人一张IC卡。

2、高速人脸识别方案。针对人流量大的工地,其识别效率为30帧/秒,准确率达到99%,针对移动和静止的人员均能检测和识别,支持多人同时监测,劳务工人可小跑进入工地,有效的保证了进出的效率。该系统支持黑名单功能,针对设为黑名单的工人可禁止其进入工地。

功能介绍
1. 人员进出管控
人员通道闸机通行支持IC卡、人脸识别、手机卡、等多种认证方式,对于认证通过的人员予以放行,将无权限人员拒之门外,未授权人员强行闯入时会发出声光报警,实现对人员进出的有效管控。
2. 人员考勤管理
可以把人员刷卡的记录,当做出勤记录统计出勤工时。
3. 人员抓拍识别
无论是人员通道闸机还是门禁考勤一体机,均可配置高清摄像机(或人脸抓拍机)。人员刷卡动作可联动摄像机抓拍,对进出人员进行图像抓拍并存档记录,便于后期事件追溯,并将卡号、工种的显示图像上,便于检索。
4. LED屏信息显示
本工地工人的考勤卡,刷卡成功后,三辊闸或翼闸会开启,刷卡提示音箱会提示“考勤成功,进入工地,请戴好安全帽。”,并会在LED屏上显示刷卡人的基本信息。
3.3、人员管理-智能安全帽定位
系统概述
智能安全帽是以工人实名制为基础,以物联网+智能硬件为手段,通过工人佩戴装载智能芯片的安全帽,现场安装基站数据采集和传输,实现数据自动收集、上传和语音安全提示,最后在移动端实时数据整理、分析,清楚了解工人现场分布、个人考勤数据等,给项目管理者提供科学的现场管理和决策依据。

系统功能
l 区域人员统计:可查询区域或者作业面人员人数的展示,单击区域或作业面展示人员数量,工种种类,各工种人数的柱状图。
l 禁入区域告警:工作人员在系统做初始化时,限定该人员的禁入区域,当人员闯入进入区域时,平台会推送告警消息给管理人员(可配置)。
l 辅助考勤管理:即以佩戴智能安全帽人员最早进入监测区域时间和最晚退出检测区域时间的工时,减去中间不在场内的时间计算工作工时,形成工时考勤记录。
工人身份识别:管理人员可以利用带有NFC扫描模块的手机或者其他设备,对员工安全帽进行扫描后可以立刻查询该员工人员信息,同时可以上传此次检查是奖励,惩罚。回传奖励加分,回传惩罚减分。在每月、季度、年度对所有员工进行评比,系统输出人员积分排名。奖惩条目可追溯。
配置及参数
安全帽定位系统的硬件构成分别为: 智能安全帽,基站,无线网关,注册机几部分。设计原理为利用智能安全帽与基站通讯,通讯距离不同信号强度不同的特性。
安全帽
l 安全帽定位模块精度10米至100米
l 安全帽定位模块续航 30个月
基站
l 基站 型号 GY2411C
l 工作频率 2400MHz~2300MHz
l 射频接头 SMA-F
l 平均工作电流 10MA
l 衰 减 度 0~31dB
l 识别距离 依天线而定,如外接2dBi全向天线,其识别距离为10~100m
l 防冲突型 一次识别1000张以上标签
l 数据传输 2/3/4G
l 供电电源 AC 220V 30~60HZ
l 重 量 2 Kg
l 工作温度 -20℃~+70℃
l 安全帽标签ABS材质
l 供电方式 内置扣式电池,工作寿命2.3年,
l 通讯频率 ISM2.43G
l 信号发送周期 10MS一次或根据客户要求定制
l 数据处理 独有加密算法,保证数据安全
l 读取距离 80-130米
l 超低功耗 平均工作电流10UA
3.4、人员管理-安全帽识别系统
系统概述
安全帽识别系统是利用图像识别技术,在被监控区域内,动态识别行人和行人是否佩戴安全帽,记录抓配未佩戴人员的图像,上传云平台,进行统计分析告警提示。

系统功能
n 图像抓拍告警。识别到未佩戴安全帽的相关人员会进行自动抓拍,其报警信息会给该区域或工作面责任人(可设定)发出警告。
n 数据统计分析。对监测数据用饼状图展示正常佩戴和未佩戴的百分比对比,点击图示可以看到告警的条目时间地点。
配置及参数
l 复杂场景识别准确率90以上
l 360度快速识别:正面 侧面 背面均可
l 识别速度 60ms/10人次,80ms/30人次
l 不依赖于安全帽的颜色和人员是否为运动
l 识别告警,并抓拍存储未佩戴安全帽人脸
l 同一画面内可是别30+人次
l 电源 AC220v正负20V 30Hz 识别速度30帧/秒
l 工作环境温度 -40摄氏度至70摄氏度
l 工作环境湿度 小于%93不凝结
l 检测对象 运动/静止
应用截图

图2 人员抓拍识别应用界面
3.5、特种设备-塔机监控子系统
产品概述
通过传感器实时采集塔吊的运行数据,当前发生违章操作时监控设备在发生预警、报警的同时,自动终止升降机危险动作,有效避免和减少安全事故的发生;同时该数据通过GPRS上传到云端服务器,平台进行远程的监控与管理。

硬件组成

系统由主机、显示器和传感器组成。传感器主要有:重量传感器、变幅传感器、高度传感器、回转传感器、风速传感器、倾角传感器等。
功能介绍
(1) 数据采集与显示
主机采集塔吊运行的起重量、起重力矩、起升高度、幅度、回转角度、风速、倍率、GPRS信号、自检状态、司机工号或卡号,并且在屏上显示。
(2) 声光报警、预警功能
主机会发出声光报警、预警,并能在主机中设置报警、预警的阀值。
(3) 超载、力矩限制功能
安装继电器控制盒后,塔吊超载或力矩超过额定力矩后,监控设备能够限制起重设备向危险方向运行,只能向安全方向运行,直到危险解除。
(4) 区域保护
监控设备在同一台塔机上可以设置6个保护区域。
(5) 防碰撞
可以预防御13台以内的塔机群塔作业,当多台塔机作业区存在交叠交叉,他们各部分将存在相互干涉(包括塔臂、塔身、钢丝绳、桅杆等)时会发出报警声音。
(6) 防倾翻
设备倾斜10°以上后会发出报警声音。
(7) 司机身份认证
主机可接卡、人脸、虹膜身份认证模块。
(8) 本地数据存储功能
监控设备可以存储2万条以上的工作循环数据,数据可以通过U盘*载下**。
(9) 数据远传
监控设备采集后的数据,可通过无线通迅模块远程传输到数据中心,传输频率1s/次。
(10) 远程IP、端口设置
可通过平台远程设置监控设备上传数据的IP地址和端口;
(11) 密码保护
主机分管理员和用户两种密码,管理员输入密码后可以对系统进行设置,密码长度为6位。
(12) 自动远程校时
监控设备可按服务器时间完成自动时间校正,保持与服务器时间同步。
(13) 设备自检功能
监控设备开机时,自动检测各传感器状态是否正常。
(14) U盘升级功能
能够通过U盘对设备系统进行升级。
系统界面

3.6、特种设备-升降机监控系统
产品概述
通过传感器实时采集升降机的运行数据,当前发生违章操作时监控设备在发生预警、报警的同时,自动终止升降机危险动作,有效避免和减少安全事故的发生;同时该数据通过GPRS上传到云端服务器,平台进行远程的监控与管理。

硬件组成

系统由主机、显示器和传感器组成。传感器主要有:重量传感器、高度传感器、上下限位状态传感器、前、后门状态、天窗状态传感器等。
功能介绍
(1) 运行数据采集
通过精密传感器实时采集吊装重量、高度、速度、门锁、天窗、冒顶、蹲底等多项安全作业工况实时数据。
(2) 工作状态实时显示
通过显示屏以数值方式实时显示当前实际工作参数、升降机额定载重,使升降机司机直观了解升降机工作状态,正确操作;
(3) 数据远传
升降机运行数据和报警信息通过无线网络实时传送回监控平台。
(4) 司机管理
通过使用刷脸或刷卡或虹膜的方式验证司机身份。
(5) 开关门保护
当升降机前、后门开启时,实现自动断电,保护预防人员上下升降机时的人身安全;
(6) 冲顶、蹲底监测
系统传感器实时监测升降机吊厢顶部与底部的位置关系,接近安全值时进行实时报警,及时预防冲顶和蹲底事故发生;
(7) 超载报警
当发生超载作业时,系统自动发出报警;
(8) 密码保护
主机分管理员和用户两种密码,管理员输入密码后可以对系统进行设置,密码长度为6位。
(9) 本地数据存储功能
监控设备对设备运行数据存储,数据可以通过U盘*载下**。
(10) 远程IP、端口设置
可以远程平台设置监控设备上传数据的IP地址和端口;
(15) 自动远程校时
监控设备可按服务器时间完成自动时间校正,保持与服务器时间同步。
(16) 设备自检功能
监控设备开机时,自动检测各传感器状态是否正常。
(17) U盘升级功能
能够通过U盘对设备系统进行升级。
系统界面

3.7、绿色施工-扬尘噪音监测子系统
产品概述
扬尘噪声监测系统依托自动化监测设备,可对施工现场区域环境的空气及噪声进行实时监测,其中室外环境监测设备可对噪声、颗粒物浓度(PM2.3、PM10)、风向、风速、湿度、温度、大气压等多项环境参数要素进行全天候现场精确测量与LED屏实时显示。同时,设备支持通过3G/4G网络与葛洲坝集团智慧工地云平台的对接,将监测数据实时上传。

硬件组成

功能介绍
(1) 数据采集
监控设备可以采集颗粒物浓度、噪音、温度、湿度、风向风速等数据。
(2) 远程传输
监控设备使用远程传输模块把颗粒物浓度、噪音、温度、湿度、风向风速等数据上传到数据中心。
(3) 具有防尘、防水的功能
设备防尘、防水级别为IP63。
(4) 控制降尘设备
安装联动控制器后,支持联动雾炮等喷淋降尘设备。
3.8、绿色施工-降尘喷淋系统
系统概述
当现场出现PM10、PM2.3等颗粒物超标后,管理人员可通过手动、定时方式进行现场的喷淋作业,提高工地的施工环境。
我们仅提供喷淋控制器,可对接雾炮喷淋、塔吊喷淋、墙面喷淋等多种喷淋设备,支持平台的远程操控。

应用效果
针对降尘喷淋:在施工过程中,由于管理措施不完善,一些工地粗放式施工。如料堆遮挡不够完整、严密,造成容易起尘的物料、渣土外逸;不能及时清理建筑垃圾、渣土等;施工现场的路面不能及时清扫、出入工地的机动车不能及时清洗等等,均易产生建筑扬尘。
针对自动控制:
1、APP手动控制。管理人员无需到现场便可开启设备喷淋,避免人工处理;
2、定时控制。项目方可根据施工周期及施工环境来配置定时喷淋,比如在闷热的夏天上班前喷淋3分钟,提高空气湿润度,提升施工环境;
3、与扬尘噪音联动。当检测到颗粒物超标后系统自动喷淋,实现自主的降尘作业,提高施工环境。
系统功能
Ø 权限设置。仅有被分配权限的人才可在APP端进行喷淋操作。
Ø 多种喷淋方式。平台支持APP端手动喷淋、定时喷淋等多种喷淋方式,简单便捷。
3.12、红外对射
3.9、车辆出入管理系统
系统概述
方案中车辆管理部分,简单来讲是车辆识别是依靠摄像机对车辆车牌的识别,当车牌进入摄像机监控范围时,摄像机就开始分析,当车牌触发到虚拟线圈后,摄像机将识别结果发送给计算机软件。线圈是触发给结果的信号,而不是识别范围或者触发拍照的信号。所以摄像机在调试的时候,尽量让摄像照的远一些,然后线圈尽量离道闸近一些,距离再在-4米为宜。
摄像机的补光灯不要调的太亮,太亮容易让车牌曝光,摄像机补光灯调到车辆距离摄像机4-7米时,车牌字母反点光即可。外置补光灯,将远处照亮即可。
(1)车牌识别系统硬件组成
车牌识别系统主要由
快速道闸、数字车辆检测器、环路地感线圈、车位显示屏、语音系统、车牌识别一体机、LED补光灯、摄像机固定立柱、光束对射探测器,多光束栅栏组成。
(2)摄像机内部接线图

(3)车牌识别系统拓扑图

(4)摄像机的安装位置
注意事项
1、摄像机的安装位置关键要注意摄像机和车道的水平夹角,以及摄像机和地面的夹角(即俯角)控制在30度以内。正常情况下,摄像机安装高度0.8~1.8米,摄像机距离聚焦位置2~8米,可视具体情况调整。
2、现场环境,车牌识别系统对车道有一定的要求,车道越直识别率越高,一般要求当车头摆正后到摄像机要有5米的直道距离,这样才能保证识别率,如果现场路况为弯道,可采用多加车牌识别一体机方式实现。

各安装点具体安装位置
进车是弯道,两边各加一个车牌识别一体机。

混进混出,进弯道,出弯道,进口摄像机对来车方向。

门口紧邻马路,两个摄像机分别对来车方向,出为两个方向,摄像机分别对来车方向。
3.10、危险区域红外防护系统
危险区域红外防护系统主要是由主动红外探测器和声光报警主机这两个基本部分组成,主动红外探测器本身发射红外线束,由发射端和接收端两部分组成,根据工作距离的不同一般分为双光束和四光束两种。工作时,发射端发出红外光束,与它相对的接收端收到红外光束以后即处于警戒状态,当光束全部被遮挡时,探测器接收端即发出报警信号给报警主机。主机接收到信号后发出声光报警信号,同时输出报警联动信号驱动相关的设备动作,联动智慧工地云平台。

系统特点
(1)低误报率:周界报警探测器由主动式红外对射探头组成,不但长距离瞄准精度高,更具有高稳定性和误报率极低的特点,对室外环境工作表现出极强适应性。
(2)稳定的信号采集与传输:采用先进的通信传输网络,直接将信号传输到保安中心计算机。因此具有传输距离远,系统扩展余地大的优点。
(3)计算机监控集成
采用数字化处理技术,能以电子地图、数据库记录等手段对警情作出迅速反应,并可与其它安防系统联动,达到万无一失的目的。
(5)反应迅速:
接警时间极短,报警控制器检测到报警信号后,在 0.5s 内即可将报警信息上报至控制中心。
(6)系统安装运行、维护成本低,使用寿命长
(7)在线电子地图显示报警位置
通过各组团的报警软件,可直观的显示各种平面地图,发生报警时,可直观显示警情确切位置与报警类型。

技术参数
一百米对射
型号:XA-100D
名称:一百米双光束对射
性能:·警戒距离:室外100米
·电源:DC10-28V
·消耗电流:最大85mA
·光轴可调范围:垂直方向±5º,水平方向±90º
·遮光时间调整范围:50msec/100msec/400msec/700msec
·使用环境:温度:-25~+55℃,湿度:Rh.95%以下
·外形尺寸:234(H)×77(W)×83(D) (mm)
第五部分、售后服务
售后服务是任何一种产品的重要组成部分,特别是对于智慧工地这种较为复杂、庞大的系统工程,售后服务的及时性、专业性是决定智慧工地运行效果的重要保障。
为用户提供“专业、标准、快捷、满意”的服务,是我们售后服务团队的工作目标,也是共友赖以生存和发展的保障。
4.1、服务承诺
1.1 提供1年保修期内的免费人员培训及信息咨询;
1.2 我公司将库存必要的关键设备备件,在设备非人为损坏后及时更换,保证系统正常运行;
1.3 提供7x24小时服务,用户提出故障报修后立即响应,维护工程师会立刻赶到故障现场,进行故障排查。
4.2、服务方式
为提高服务质量,保障用户系统运行稳定,我公司对于所有项目采取用户保修及不定期巡检。
l 用户保修:通过免费服务热线报修。
l 设备巡检:服务工程师不定期现场巡检主要设备。
4.3、故障报修
根据用户服务请求的内容,我公司采取的服务措施有电话服务、远程技术支持、现场服务等三种。
Ø 电话服务
提供7X24小时免费服务热线,可随时帮助用户解答各种问题,根据用户的描述判断故障,选择合适的解决措施。
Ø 远程技术支持和维护
电话中无法指导客户解决故障时,部分系统可通过远程登陆用户电脑进行故障排除,远程支持主要用于可联网的应用系统和查询系统。
4.4、服务时限
售后服务期限一般为一年,具体以签约合同为依据。