【 目 录 】
(1)明宇豪雅 - 水电改造
小科普:水电改造的大致流程是什么?
(2)中洲锦城湖岸 - 水电改造
小科普:水电改造时常见的五大误区?
(3)ICC凯旋城 - 成品保护
小科普:为什么过道也需要成品保护?
(4)麓山国际茵特拉肯 - 木作吊顶
小科普:吊顶的常见的材质有哪些?

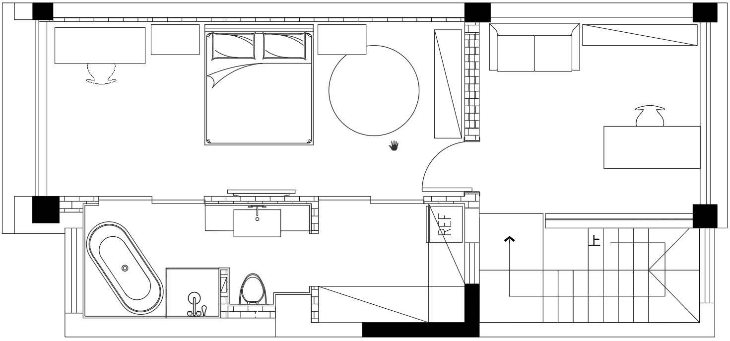
Ming Yu Hao Ya

■ 面积 | 户型 | 类型
240㎡,4室2厅3卫,毛坯房
■ 设计负责 | 施工负责
拾光悠然,造梦家毛毛




Plane layout 平 面 布 局 图 ▲

Construction Site 施 工 现 场 ▼

水电改造 —— 水电开槽
水电开槽一定程度上也是为了
保护电线在装修过程中不受损



水电改造 —— 底盒固定
开槽还可以保护
地面和墙面的外观平整


水电改造 —— 水电开槽

【 小 科 普 】
水电改造的大致流程是什么?
■ 定点:业主、工地负责人、电工师傅三方到场,确定点位。
■ 弹线:根据点位线路走向弹线。
■ 开槽:根据弹线进行开槽。(墙面横向开槽不可大于30cm)
■ 穿线:安装管路,再穿管线。
■ 测试:检测电路,并对水路进行*压打**测试。
■ 敷槽:水泥沙灰抹平线槽。

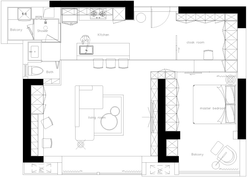
Zhong Zhou Jin Cheng Hu An

■ 面积 | 户型 | 类型
136㎡,3室2厅1.5卫,毛坯房
■ 设计负责 | 施工负责
独立设计师谢秉恒,造梦家土豆


Plane layout 平 面 布 局 图 ▲

Construction Site 施 工 现 场 ▼


水电改造 —— 水电开槽
开槽还可避免地面抬高
并且整体工地形象更美观


水电改造 —— 水电开槽
地面开槽不用担心影响房子结构
因为楼板上通常是有找平层的
而开槽则正是在这个找平层上

【 小 科 普 】
水电改造时常见的五大误区?
■ 过于重视价格,而忽略水电材料的质量
水电改造也是不能过于节约的一个项目。
可以考虑从其他预算里节省一部分,来保证水电改造预算的充足,以选购有品质保障的水电材料。且不要忽略其配件,配件也需使用同品牌旗下产品,预防安全隐患。
■ 电源插座未预留充足
很多朋友装修完成入住以后才发现插座预留不够,后期生活不便,但这个时候已经无力回天了。
所以需要在前期就做好充足的考虑,并且可以增加一小部分插座作为备用。
■ 电线超载
管道内放置的电线载面不能超过管子的30%~40%,最好是一根管子放三根电线。
■ 强弱电直接交叉
首先强弱电一定要保持一段距离,且交叉的地方应该做好屏蔽处理,防止强电干扰弱电。(强弱电禁止同管)
■ 水电改造后,未留设计图纸
毕竟水电属于隐蔽工程,后期维修不便。所以建议保存设计图纸,且水电改造完成后拍照留底,便于后期维修。

ICC Kai Xuan Men

■ 面积 | 户型 | 类型
86㎡,2室2厅1卫,毛坯房
■ 设计负责 | 施工负责
山朴设计陈宣,造梦家青木


Plane layout 平 面 布 局 图 ▲

Construction Site 施 工 现 场 ▼

成品保护 —— 过道保护
根据楼盘物业要求
使用纸板进行过道保护


成品保护 —— 入户门保护
入户门保护时
记得门套也需要同时保护


成品保护 —— 窗户保护

【 小 科 普 】
为什么过道也需要成品保护?
过道虽然不是家里理念上范围内的区域,但是在整个装修过程中,过道属于一条必经之路。
运输建渣、挪动大型板材、搬运软装等过程,终归是会有一定磕碰、划伤公共区域的瓷砖等的可能性。
如若没有对公共区域进行保护,那么造成的损坏是需要额外进行赔偿造成不必要的经济损失。

Lu Shan Guo Ji Yin Te La Ken

■ 面积|户型|类型
150㎡,4室2厅2卫,毛坯房
■ 设计负责 | 施工负责
TWO POUNDS空间设计,造梦家灰面


Plane layout 平 面 布 局 图 ▲

Construction Site 施 工 现 场 ▼


木作吊顶 —— 放线弹线
使用红外线仪器辅助
找到一条水平的参考线
用墨线弹出明显痕迹


木作吊顶 —— 龙骨安装



木作吊顶 —— 石膏板安装
尽量采用整板制作吊顶
板材长度不够可拼接,但需记得错位

【 小 科 普 】
吊顶的常见的材质有哪些?
■ 石膏板
目前使用较为广泛的一种吊顶材料,主要是以建筑石膏为主要原料,具有良好的装饰效果和吸引效果.
目前常规分为普通石膏板和防潮石膏板,普通石膏板主要用于客厅、卧室等相对干燥的环境,而防潮石膏板主要用于厨房和卫生间。
■ PVC塑料扣板
以PVC为原料的PVC塑料,经加工成为企扣式型材。扣板防水防潮防蛀虫,而且重量轻安装也方便.
常用于卫生间、厨房、阳台等地方。日常维护时,可以用清洗剂擦洗后再用清水进行清洗,清洗时注意避让照明电路。
■ 铝扣板
铝扣板是以铝合金板材为基底,通过开料,剪角,模压成型得到。
按照不同的作用,可以分为装饰板和吸音板两种。按照表面处理技术,可以分为覆膜板、滚涂板和烤漆板三种。(烤漆板相对寿命较短,易出现色差)
选购铝扣板时,千万不要只看厚度不看材质。
■ 铝塑板
铝塑板是由铝材和塑料合制而成。
铝扣板是全铝型,铝塑板是面层是铝皮,内是采塑性材料。
两个安装方式基本一致,铝塑板常见切割为条形使用,而铝扣板则常见为规整的方形。
■ 桑拿板
桑拿板一般选材于进口松木类和南洋硬木,经过防水、防腐等特殊处理,不仅环保而且不怕水泡。
常见于卫生间及阳台,质感独特给人以休闲感。但该材质抗污性能较差,不易清洗,且相较于其他型材更易受温差影响。