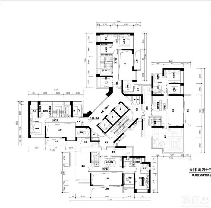
昨天,有网友曝料了星龙园1栋户型平面图,从图可以看出,1栋基本都是大户型,3梯4户,感觉都是120平起步的四房,42-43层为顶复产品。 关注深圳打新,可以关注公众号“深圳楼市探子”
网络爆料图源,具体已官方公布为准:


星龙园项目位于龙城街道龙翔大道与黄阁路交汇处东北侧,由深圳市利联龙城房地产开发有限公司开发建设。

星龙园为陂头背、建新村旧村城市更新单元,属旧城(城中村)改造项目,*迁拆**区总面积共约21.8公顷,综合规划总用地为15.5公顷,总体开发体量约为63.2万㎡。

据了解,本项目将建成一栋高层写字楼、一栋高层地标性酒店、一栋高层酒店式公寓、大型高尚住宅区(含原居民回迁高尚社区)、二个文化娱乐中心、一座大型Shopping Mall、一座仓储式超市、一条地方民居风情特色的酒吧街、一条欧式OUTLETS步行商业街、一个标准12班幼儿园、一个保留生态广场。

陂头背、建新村旧村城市更新单元整体效果图
星龙园项目用地面积9866.58㎡,由3栋建筑组成,其中1、2栋为商住楼共42层、3栋为6班幼儿园4层,规划总户数448户,其中户型套内建筑面积<90㎡410户。

星龙园效果图
简约立面|玻璃幕墙|空中花园



星龙园 所在位置可以说是龙岗最好的,它的北侧是龙岗外国语学校、西侧是龙岗最贵的楼盘之一“绿景大公馆”、再往西是大运中心体育场馆、大运公园...
不远处的16号线“大运中心站”预计于今年年底建成通车!
【免责声明】本文部分信息和图片来源网络,如有相关内容侵权,请联系删除。文本仅代表个人观点,所述内容和意见仅供参考,不构成市场交易依据和投资建议。