项目名称:橡树湾
项目面积:110平米
风格定位:现代简约
整体造价:35万
主要材质:墙纸、木饰面、大理石、硬包
設計 \ 施工单位:苏州阔达装饰
家,是一个载体,承载着我们的生活与个性,记录下内在的心怀与情愫。木色提升了温暖质感,色彩沉稳而充满活力,拉近了生活和心里喜好的界限。温馨在空间里摇曳,自然在居室内沉淀。优雅但不过分张扬,舒适不失庄重之美,一切均为生活服务,一切体现生活的本质,让身心得到圆满放松,这就是本案最终归宿。

设计师强调功能性设计,线条简约流畅,色彩对比强烈,用最简单的设计语言,巧妙掌握材质层次的转换与色彩比例,调和住户偏好的温馨度和舒适度。随处可见的木质设计,给予了空间生活的本真,以最平凡展现空间质感。

远离城市的喧嚷,放慢脚步,业主想要的一切,一一实现:有桌子上家人的照片、有精心烹饪的晚餐、有香味弥漫的厨房、有明亮的浴室... ...

质朴的木元素空间,让走进其中的人,仿佛穿越到过去,邂逅最久远的自然。整个空间,明而不素、简而不凡、雅而不奢,和业主最初的期待一样,简单却包容一切,朴素却亲近自然,闲适宁静的生活即将从这里开始 ... ...
木的原始清香,在现代家居的优雅中四处漫溢,素朴的木、柔软的布艺、温馨的灯光,温度刚好,旋律刚好,一切刚好。心与自然同在的时候,永远都会获得一种宁静,这正是现代人所极力追求的。
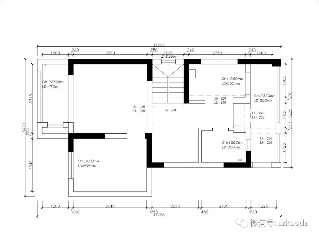
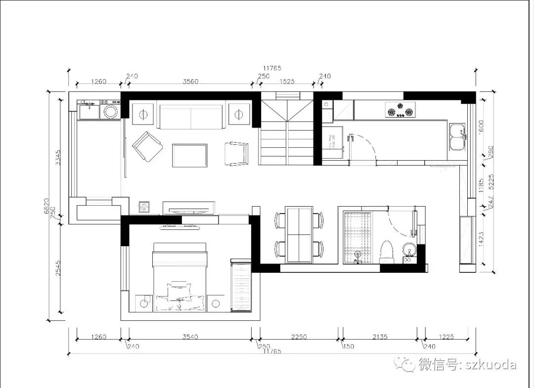
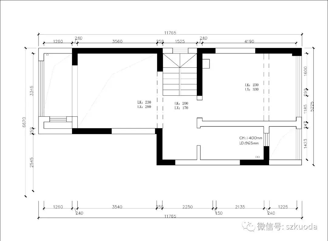
户型改造点

一层原始结构图

一层平面改造图

二层原始结构图
