
随着建造技术和材料行业的发展,越来越多非线性的,具有流线感的设计,得以脱离纸面,落地成型。其中就离不开GRG,GRC,GRP,这3种材料的运用。
3种材料的使用前景广泛,但是相关的材料知识却比较匮乏,不便于设计师对这3种材料的了解,更限制了设计师对3种材料的运用。
本期我们就为大家带来GRC材料的讲解,主要想解决下列问题:
1、什么是GRC?与GRG有什么区别?
2、GRC应用在哪些领域?
3、为什么要使用GRC?
4、GRC这么好,应该怎么用呢?
01.
GRG、GRC、GRP

图中运用的材料,就是咱们今天的主角GRC。

别着急,这三种材料都是与玻璃纤维复合而成的材料,
GRG(Glassfiber Reinforced Gypsum)是指玻璃纤维增强石膏预制构件。G是石膏的意思。
GRC(Glassfiber Reinforced Cement)是指玻璃纤维增强混凝土预制构件。C是水泥的意思。
GRP,另一个名字叫FRP(Fiber Reinforced Plastics ),俗称玻璃钢。P是指塑料的意思。

接下来,我们正式开始分享GRC的知识点。

GRC,全称为Glass fiber Reinforced Concrete,中文名称是玻璃纤维增强混凝土。
是以耐碱玻璃纤维作增强材,硫铝酸盐低碱度水泥为胶结材并掺入适宜集料构成基材,通过喷射、立模浇注、挤出、流浆等生产工艺而制成的轻质、高强高韧、多功能的新型无机复合材料。
与混凝土同等性能及寿命,是一种可再生循环利用的绿色建筑材料。
02.
GRC应用在哪些领域

△建筑外立面的运用案例
GRC主要运用在建筑领域,用于建筑外立面装饰以及室内空间的外墙面装饰,也可以用于建筑装饰构件和景观小品。

△室内外墙面的运用案例
GRC在建筑外表皮的运用最为多见。现代建筑中,各种各样的建筑造型,各种外立面设计,GRC都能够很好的满足设计要求,实现设计效果。

△建筑装饰构件
GRC在室内空间的运用多见于大型的,具有开放性的公共空间,赋予空间未来感和科幻感。

△ 艺术景观
建筑装饰构件是GRC运用最多的地方, 市场各种GRC构件制品,如GRC罗马柱、GRC檐线、GRC装饰线条、GRC角线、GRC门窗套、GRC花瓶栏杆等。
03.
为什么要使用GRC?

俗话说,没有无缘无故的爱,GRC能够得到普遍认同和广泛应用一定是有原因的。
1、目前建筑领域面临的痛点
1)概念设计与实际落地,间隔着一条鸿沟
著名的女建筑师,扎哈哈迪德,曾一度被称为“纸上建筑师”。就是因为概念设计一直停留在纸面上,没有技术支持,无法变为现实。
近年来,越来越多的建筑师设计非线性的建筑,形态复杂多变。对建造技术提出了更高的要求,需要建造技术作为概念设计和实际落地的桥梁。

2)建筑工人数量减少。
随着中国将步入老龄化社会的进程加快,适龄的青壮年劳动力减少,建筑工人也面临短缺的情况。
3)施工质量难以控制。
施工质量受到诸多因素的制约,工程质量不可控。
4)建筑能耗高,造成严重的能源浪费。
国家一直在倡导节能减排,对降低建筑能耗,打造绿色,节能型建筑提出要求。
2、GRC为何能够受到市场青睐?
1)可塑性
GRC产品是将原料按一定配比搅拌,在模具内喷射成型,可生产出造型丰富,质感多样的产品。可根据客户和设计师的不同需要,进行任意的艺术造型,完美实现设计师的设计梦想。

2)质量轻、强度高
GRC的体积密度约为1.8-1.9,8mm厚标准GRC板重量仅为15kg,抗压强度超过40Mpa,抗弯强度超过34Mpa,大大超过国际标准要求。
3)超薄技术、尺寸大
GRC板最薄可做到5mm,标准宽度为900mm和1200mm,长度不限,满足运输条件即可,亦可做成5mm至任意厚度,任意尺寸。

4)色彩丰富、造型多样
GRC产品采用同质透心矿物原料,可以根据客户的需求做成各种不同颜色及不同造型的艺术效果。
5)质感好、肌理多
GRC产品表面可做成喷砂面、荔枝面、光面等不同质感效果,也可以做成条形、镂空、浮雕等不同肌理效果。

6)环保 、无辐射
GRC属可再生材料,有利于环保。原材料不含有放射性核元素,为国家放射性核素含量A类环保材料。
针对以上,建筑领域面临的痛点,我们发现GRC之所以能够广泛应用,正是因为解决了这些痛点问题,贴合市场需要。
3、GRC运用在实际项目中的优势

△ 上海宝业中心
1)工厂制造出孔洞大小不一的GRC单元式幕墙,运输至施工现场安装。这种集约化装配化的建造方式近年来受到国家的大力推崇。能够保证施工质量,同时不需要太多建筑工人参与施工。

2)造型上设计成凹窗的形式,控制了室内空间的采光,还实现了遮阳的功能。营造更舒适的室内环境同时降低空调能耗,实现建筑节能的要求。

3)依赖于GRC材料的可塑性,建筑立面设计语言表达更丰富,适用于更多样化的建筑造型。

4)整体吊装,安装速度快,现场施工周期短,经济效益和社会效益明显。

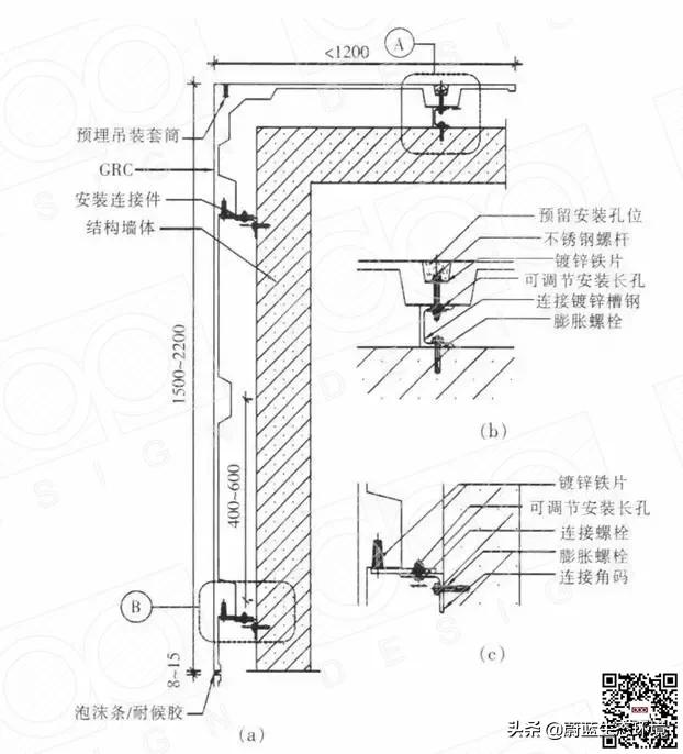
04.
GRC这么好,应该怎么用呢?
设计师对图纸进行深化设计,根据生产要求进行分块处理,然后交到生产部。生产部根据造型选择模具材料进行生产。
生产流程:
制作模具→模具喷浆→产品养护
施工流程:
测量、放线→GRC板块加工图排版加工→钢龙骨制作安装→龙骨验收→安装GRG、GRC、GRP板块→表面饰面处理。

△ 生产工艺流程图
安装工艺:




幕墙材料通过干挂的方式,安装固定。通过膨胀螺栓将幕墙材料及骨架与建筑进行连接,通过幕墙干挂件控制幕墙悬挑的长度。
本文主要讲解GRC材料主要运用在建筑,室内,景观领域;运用GRC材料可以解决目前建筑领域面临的问题;GRC材料都是使用干挂的方式进行安装的
深圳市蔚蓝生态环境建筑装饰工程有限公司