摒弃繁杂的设计技法
让艺术生活化,让生活艺术化
简练清晰的空间递进关系
划分出流畅的动静区域
彼此功能相对独立又有连接
传达记忆中的快乐与诗意
Abandon complicated design techniques
Let art live,make life artistic
Concise and clear space progressive relationship
Divide the moving and static areas
Each other`s functions are relatively independent and connected
Convey happiness and poetry in memory

项目地点:东营·东辰鉴墅
项目背景:
小区位于沂河路以南,潍河路以北,登州路的正东边是东营市东城的核心区域。与清风湖仅一步之遥。依山傍水,交通发达,周边生活服务一应俱全。
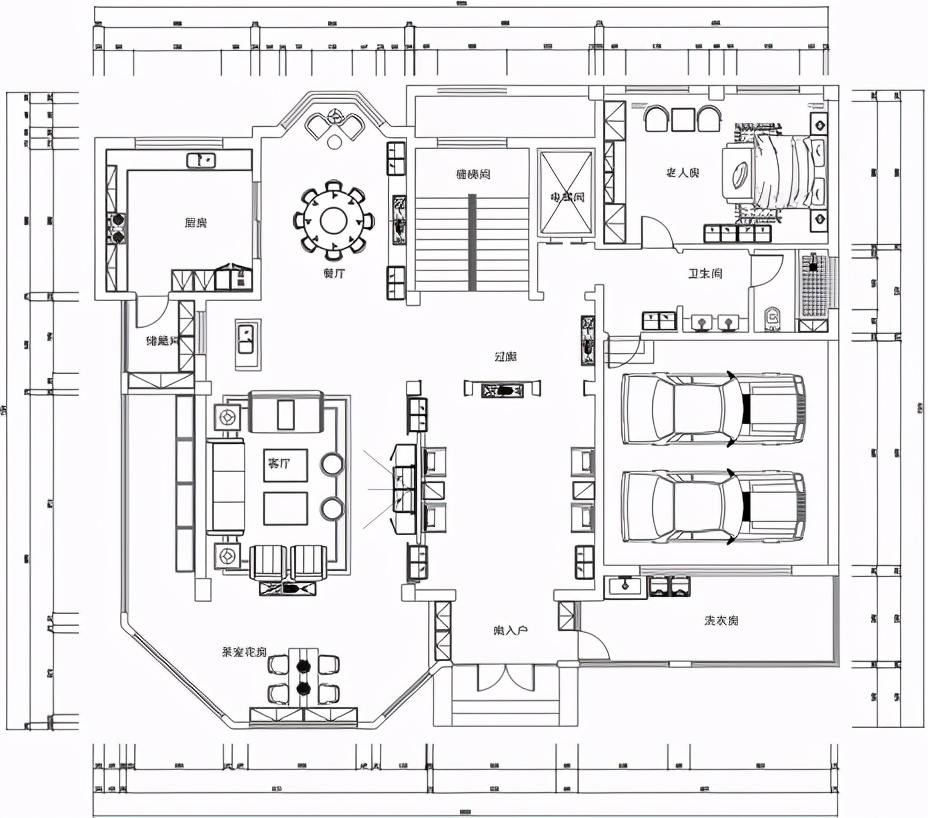
平面布局图:
- 一楼

- 二楼

- 三楼

入户玄关Entry hall:


- 大气的门厅,彰显主人的尊贵,深色木质家具,使得整体空间更加稳重

- 似透非透的玄关,不仅可以作为屋外和屋内缓冲,又拉伸了门厅的整体视野,使得门厅更为大气通透,不会有压抑的感觉
客厅A living room:


- 挑空的客厅,上下一体的电视背景墙以及沙发背景墙加上豪华的铜质吊顶,整个客厅空间,无比的奢华大气

- 配合简单色彩鲜亮的新中式的沙发家具,使这个空间又充满了美感和家的味道

- 上下一体的电视背景墙采用古风的中式画,让整个空间充满文化的色彩
餐厅Restaurant:


- 中式水墨画餐厅背景墙,与客厅的电视背景墙相呼应的同时,餐椅又与客厅的沙发相互呼应,整个空间融为一体,增加了整个空间的整体性。

一所小房子,家是停泊的港湾,家是幸福的源泉,家是生活的动力,家是温暖的依靠,家是心灵的乐园。
一栋大房子,家可以是男主人招待贵宾的私家会所,可以是女主人展示品位及个性的秀场,可以是令宾客们流连忘返的乐园,也可以是孩子们的家园及游乐场,还可以是一处旖旎的宫殿。

关于奢华,关于高贵,关于格调,金碧辉煌或是返璞归真,温馨或是浪漫,花哨或是低调,都无所谓,当空间有了艺术的气质,局部色彩活跃张扬,而整体氛围和谐内敛时,由内及外散发出的便是一种恬淡的、返璞归真的温情。
※文中效果图由 业之峰装饰东营分公司 首席设计师 范欣 提供,请勿盗用,侵权必究!
