
装修前要做的功课实在太多了,大家也都会上网看大量的案例。可是网络搜索的案例能有多大的借鉴程度呢?这个时候你就需要参考真实的本地装修案例啦~
尚居汇装修案例都是面向平台优秀设计师征集的本地实操落地案例,不仅能带大家了解设计师的功底,给大家的借鉴度也大大的提升啦~
先来看看本期案例都出自哪些设计师之手吧:
本期设计师
尚居汇的设计师会员均是厦门家装设计行业顶尖的设计师,目前平台已吸纳了300+名设计师的加入,这些设计师不仅具有较高的设计能力和学识,同时具有良好的社会口碑和业界影响力。

郑熹 威尔思装饰设计总监

刘舜权 北京阔达装饰厦门分公司设计总监

纪秋婷 九鼎装饰首席设计师

1
富贵门别墅
设计师@郑熹





关于本案设计师
从业年限:10年 职务:威尔思装饰设计总监 擅长风格:美式、欧式、现代、新中式、东南亚、纯美式、田园、北欧个人荣誉:2013荣获为中国设计发声精英人物;2018年作品《水晶湖郡》荣获“吉家杯”美居奖;2018“厦门设计百强榜”精英优胜奖;2018年在“室内设计大赛”,作品《轻奢》,荣获铜奖;2019年在“让设计更懂家”,作品《富贵门》,荣获个人未来奖;等。



都市的快节奏让人格外珍惜在“家”中的时光,设计师根据现代生活的节奏感,将设计化繁为简。
此案将中国的传统文化与现代的生活需求进行结合。经典装饰笔触,汲取古典艺术文化中的精华,即体现出了古典艺术的魅力也体现出现代生活的节奏与情调。



从项目立意的角度展开精巧合宜的装饰设计,巧妙的空间运用,营造功能突出,符合中式审美的景观布局,以温文尔雅的情境,古典造园的物境,提供一个美好的意境给观者,满足业主对与生活品质的追求又不失中国传统文化的留存。


2
保利叁仟栋别墅
设计师@刘舜权

关于本案设计师
从业年限:10年以上 职务:北京阔达装饰厦门分公司设计总监 擅长风格:欧式、中式、新中式、现代简约、轻奢


家不是样板间,环保越来越成为业主们选择装修公司以及装饰材料的重要考量。本案木材全部使用胡桃木,同时利用不同的材料和结构做出丰富而有趣的设计。
巧妙地诠释了从生活入手的设计,每一层楼都兼具接待客人,用餐,品茶,实用性之上兼具美观。厅与茶室不需要隔断,使得空间通透舒展。

为照顾年长的父母的睡眠质量,一楼父母房一人一张床。母亲喜欢收纳东西,所以为她设置了双衣帽和储物间。同时针对业主母亲需求设置了套内卫生间。


二层设计为男女孩主卧室套间,书房,卧室,将生活美学方式,刻画在每个家具上每个情景中。阳光肆意挥洒在每个角落,使得静谧、华丽、高雅的空间流露出品味和尊贵。
本案融入了一些业主原有家具,与简约而高雅的新中式风情,黑白的素净,大理石的光滑与粗麻的细腻质感,在空间中达到微妙的平衡,呈现新中式设计的品质感。让空间和自然的互通流动变得顺其自然,于低调温和中勾勒出现代宜居美学。
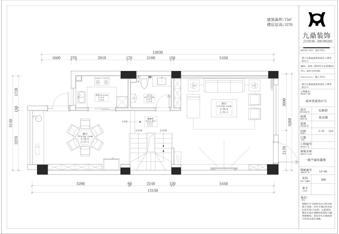
3
禹州香溪里雅居
设计师@纪秋婷



关于本案设计师
从业年限:8年 职务:厦门九鼎装饰首席设计师 擅长风格:新中式、美式、简欧、现代轻奢 个人奖项:2013年厦门优秀设计师、2014年厦门美宅大赛雅居奖、2015年厦门优秀设计师、2016年美宅设计大赛“尚居奖”、2018年厦门诚信设计师、2019年获广州设计周红棉设计“最美艺术空间奖”;等。


中国人骨子里都是热爱中式美学的。看过了太多的繁复,总有一天你会觉得,充满东方味道的居所,才最耐人寻味,这也是本案业主选择新中式的初衷。本案摆脱了传统中式的繁琐,家具以及定制木作上融入了时尚的元素以及色系。


米色的墙面略感单调,选取的黑色鸡翅木边框护墙板作为装饰,丰富了空间,不显单薄,从而带入更多的艺术气息。
蓝色装饰品以及硬包图案的点缀,可以使空间彰显高贵优雅的气息,也保持了空间色彩的平衡。

还想看哪里的案例?留言告诉小尚吧~小尚给大家安排!安排!安排!大家也可上尚居汇小程序自助查看各种风格的装修案例。
