【楼盘名称】沃德歌谷
【装修面积】83㎡
【装修风格】现代风格
【装修费用】7.5万
【户型结构】两居室
【设 计 师】张慧

设计说明
现代风格的居室重视个性和创造性的表现,不主张追求高档豪华。空间小、功能多是现代室内设计的重要特征。与主人兴趣爱好相关联的功能空间完全按主人的个人喜好进行设计,从而表现出与众不同的效果。

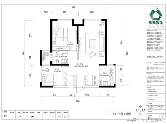
周正的房型,仅在客厅入卫生间的那堵墙上做了改造:缩短了距离。这样让视野更开阔,让客厅显得更加宽敞。

客厅
在选材上,现代风格不再局限于石材、木材、面砖等天然材料,而是将选择范围扩大到金属、玻璃、塑料以及合成材料等,并且夸张材料之间的结构关系,力求表现出一种完全区别于传统风格的高度技术的室内空间气氛。在材料之间的关系交接上,现代设计需要通过特殊的处理手法以及精细的施工工艺来达到要求。现代风格的色彩设计受现代绘画流派思潮影响很大。通过强调原色之间的对比协调来追求一种具有普遍意义的永恒的艺术主题。装饰画的选择对于整个色彩效果也起到点明主题的作用。

设计师 介绍

姓名: 张慧
职称:高级设计师
入行时间:5年
设计理念:以人为本,以功能为导向,以美观为表现,以提高生活品质为目的的设计能让生活更美好。
更多装修案例来源于:栖喜装饰官网