在哪儿资讯网
首页
潇洒晚风uUw
云礼天下
老白聊公文
uncle韦
中铝轻研合金
读好书照亮心灵
首页
›
浙墅匠鼎装饰集团
›
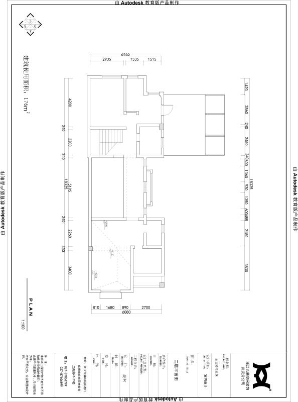
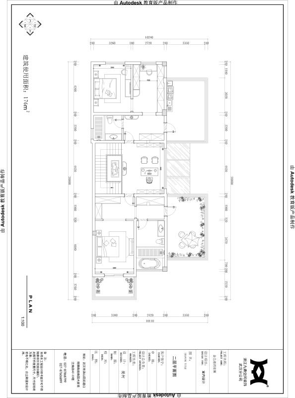
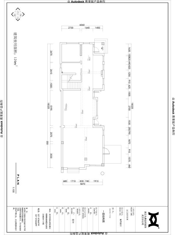
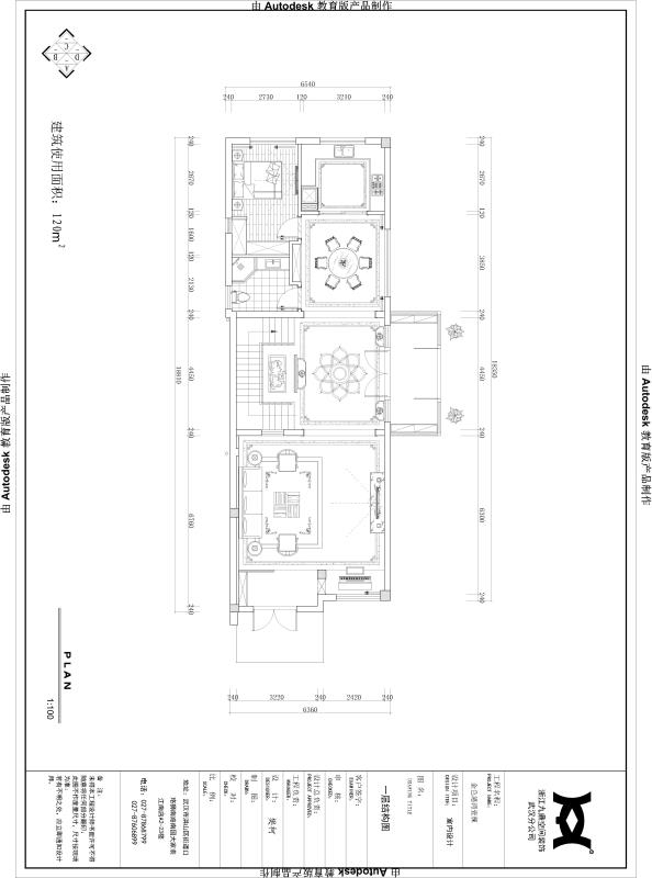
武汉市金色港湾别墅 (武汉金色港湾一期湖景房)
武汉市金色港湾别墅 (武汉金色港湾一期湖景房)
🏷️
浙墅匠鼎装饰集团
✍️ 原九鼎装饰变更浙墅匠鼎装饰集团公司,浙墅匠鼎装饰来自浙江(东阳)木雕之乡!坚持正宗江浙工艺做工,坚持口碑相传工程!坚持12年零投诉工程。
📅 2026-03-15T00:55:45+00:00
浙江九鼎空间装饰武汉分分公司,九鼎坚持做口碑相传工程,坚持做零投诉工程,九鼎坚持做江浙工艺做工,把装修交给九鼎你安心的去工作!