楼盘:中航城
面积:240平
风格:美式
工期:5个月(不含土建)
开工日期:2017.03
美国是一个崇尚自由的国家,这也造就了其自在、随意的不羁生活方式,没有太多造作的修饰与约束,不经意中也成就了另外一种休闲式的浪漫,而美国的文化又是一个移植文化为主导的脉络,它有着欧罗巴的奢侈与贵气,但又结合了美洲大陆这块水土的不羁,这样结合的结果是剔除了许多羁绊,但又能找寻文化根基的新的怀旧、贵气加大气而又不失自在与随意的风格首先我们来看此套方案的户型图,负二层是车库外加保姆房洗衣服的位置就没什么好扒的了。

负二层平面图

负一层平面图
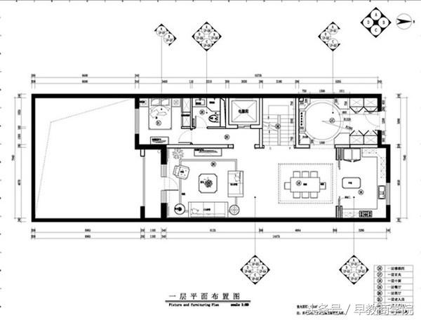
一楼的位置设计师把餐厅和客厅打通了联通厨房的位置,使整个空间变的非常宽广,此层也安排了老人房的位置,其它两个常住人口空间安排在了楼上,楼下则单独为老人营造出一个安静的空间。

一层平面布置图
阁楼的位置直接设置成为了书房,整体营造出来一个安静的办公空间

阁楼平面图
主人房和女儿房安排在了二楼的位置

整体家具的颜色使用了柚木色,墙面的装饰则使用了木质护墙板和木质线条,使大面积单一的墙面变的丰富有层次,餐厅背景墙和沙发背景墙的巨大装饰画,在墙面对真个功能区域进行了区分。印花窗帘,繁杂的印花、体积粗犷,突出格调。

厨房改为半开式厨房,使整体空间更加具有通透性,墙面和顶面以白色为主,家具则以深色为主,整个空间主次分明。业主两口子都均为美国留学的海龟,所以不要求设计电视的位置。客厅就作为会客厅的功能是用。

入户的位置设计师改为了一个圆形,入户两侧做了两面到顶的鞋柜,增加整体的储物空间。圆形的吊顶配以地面圆形的拼花砖,让进入房门的人有一种步入宫殿搬的错觉。

主卧室风格比较淡雅,橙色的靠枕,和黄色系的印花墙纸给整个沉闷单调的空间一抹亮丽的色彩

女儿房也是用了些许玫红色加以点缀,墙纸的颜色为淡蓝色的印花墙纸,表达了屋主的公主梦!

老人房的色调就没有主卧室和女儿房那么活跃,以深色为主。

想要以上豪宅全套施工图纸还是想要根据您的户型及要求来定制一套独一无二的设计?欢迎添加微信:bmgood,或关注微博:室内设计通 分享创意室内装修设计全套方案、施工工艺,家居软装搭配,为您设计出属于您独一无二温暖的家
关注小编并留言【留下联系方式或邮箱】,小编每天抽出5名读者免费提供设计方案