项目位于南京市鼓楼区凤栖路,是高层建筑裙房的沿街商铺,单开间,上下共两层,毗邻店铺也是服务于住宅区的配套商铺。
▼入口立面

住宅区建于十年前房地产快速发展期,粗放型的设计带来的问题是广告位、空调机位缺乏合理的安置,大进深的室内也不能满足基本的通风采光要求;加上沿街店铺均为出售型物业,对沿街立面缺少统一有效的管理,导致使用状态沿街店铺立面观感混乱,品质感差。根据业主要求,这里需要改造成为一个频繁举办画展及艺术展的小型画廊,设计最大的挑战来自于如何在这样一个生活化的、凌乱的沿街界面中改造出有品质的艺术品展示空间。
▼画廊位于一个生活化的、凌乱的沿街界面

设计方案在解决基本的通风采光问题同时,希望能增强沿街店铺立面的开放性,为艺术品提供灵活适宜的展示空间,以及鼓励艺术品观赏者们在这里能交流互动。立面开口最大可能展示完整的橱窗,路过的行人即可以看到一层和二层画廊内部的展出;外立面材料使用了白色的千思板,白色简洁的体量和周边深色凌乱的背景形成图底关系。
▼一层的开放空间鼓励观赏者们在这里交流互动


一楼入口增加了入口玄关,作为嘈杂的城市环境与展示空间的缓冲;内部展厅的墙面遮盖了墙面所有的冗余,色彩只使用黑白两种颜色以突出展示内容。
▼首层内部展厅

▼色彩只使用黑白两种颜色以突出展示内容

▼通往二层的楼梯


为了改善二层和大进深的通风状况,在北侧门厅和南侧办公部分加入了挑高空间,使南北向,一二层之间空气可以更好的流通,同时挑高空间暗示二楼的展览活动的存在。
▼一二层展厅的挑高空间

▼场地平面图

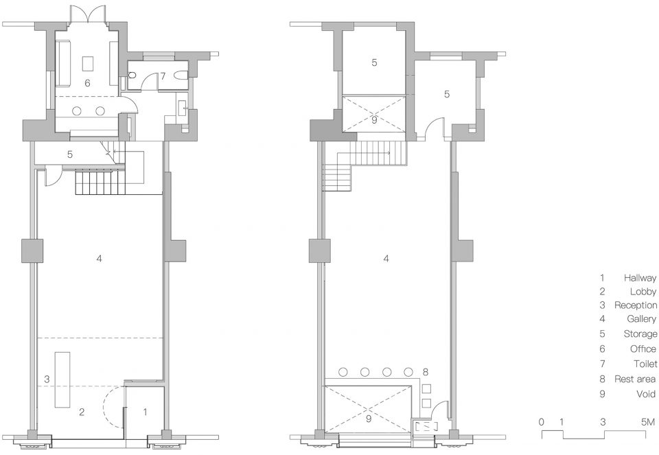
▼平面图

▼剖面透视
