楼盘名称:沈阳保利茉莉公馆
户型:二居室
面积:70平米
风格:现代简约
本案设计师:甄士红
方案说明
本案是一间70平米的二居室,业主是对夫妻,他们对美的感知力和对生活的理解都有着异于常人的敏感度,他们更希望可以回归自然的状态。
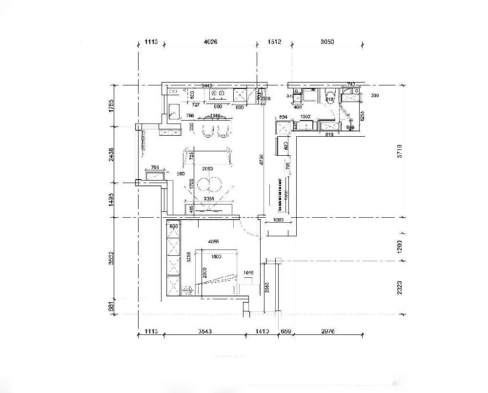
户型图

玄关

入户玄关进门一眼就可以看到木饰的隐藏柜,更方便出入更换衣物鞋子等,自然的木饰更显自然的状态。
客厅

客,餐,厨一体式设计互通有无,彼此关联,将空间的合理性与开放性做到极致,明亮通透。
餐厅

餐厅作为厨房的延伸将厨房的空间进一步的扩大,木质桌面让人身处自然之中 。
厨房

开放式厨房+岛台餐桌一体,嵌入式电器与整体橱柜结合的设计,大大增加了厨房的使用面积。岩板、黑色金属烤漆、原木提升空间质感。
卧室

卧室的设计极为简洁,仅仅一床、一桌、一灯、一椅、一柜,没有过的装饰简简单单的设计往往更能体现出温馨,更加体现自然的和谐,营造出柔和而又轻松的休息氛围。
卫生间

由于空间不足,还需要将洗衣机烘干机放到这里,所以采用了三分离的设计,将整个卫生间分为三个部分互不打扰,这样可以更加灵活。
其他

厨房的咖啡机和面包机更体现了业主的生活质量。
以上就是关于沈阳保利茉莉公馆装修案例的内容了,希望能为你的装修选择带来一些帮助,如果您想在沈阳装修,可以综合考量一下,选择一家口碑好的装修公司!方寸之间,皆是雅致!如果还想了解更多装修内容,私信我们吧。
相关搜索:沈阳装修公司 沈阳家装公司 沈阳十大装修公司推荐 沈阳靠谱的装修公司都有哪家 沈阳最好的装修公司 沈阳2023装修最新报价 沈阳口碑最好的装修公司 沈阳家装设计公司。