现在农村自建房,很多都是在外打拼多年的朋友,他们虽然能干,但是建房方面还是有所欠缺,于是为了省时省力省心,而且建房有保障,就想着去找专业施工公司承包。
今天我们就带来“住宅公园”合作伙伴“中科时代”的作品,一直关注我们的朋友就应该知道,发中科时代的作品也不是一次两次了,来看看今天他们的带来的作品吧。
现在农村自建房,很多都是在外打拼多年的朋友,他们虽然能干,但是建房方面还是有所欠缺,于是为了省时省力省心,而且建房有保障,就想着去找专业施工公司承包。
今天我们就带来“住宅公园”合作伙伴“中科时代”的作品,一直关注我们的朋友就应该知道,发中科时代的作品也不是一次两次了,来看看今天他们带来的作品吧。

老样子,首先签订施工合同,这对业主来说是一个“定心丸”。
建筑面积332平,包基础、主体、部分装修和水电预埋一共45万。差不多1300多每平,还是老价格。

三个月的工期,专业施工队做事就是利索。

双方签字盖章就生效了。

附上详细的报价单,建房不花一分冤枉钱。

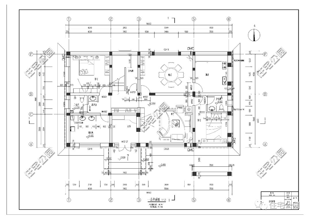
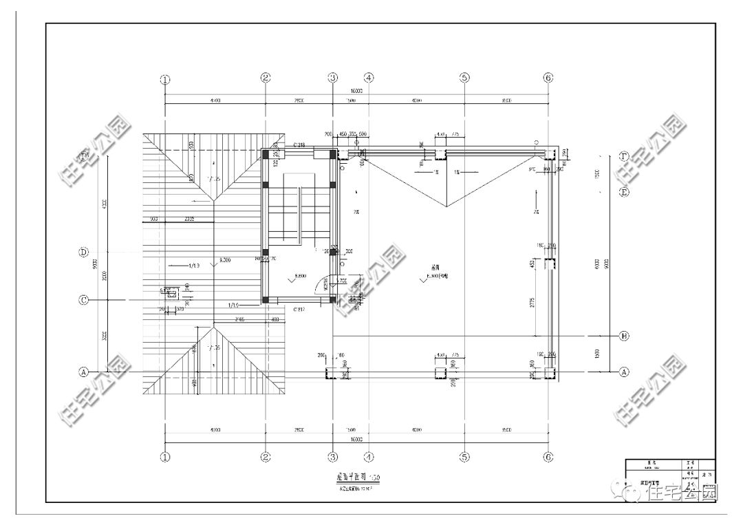
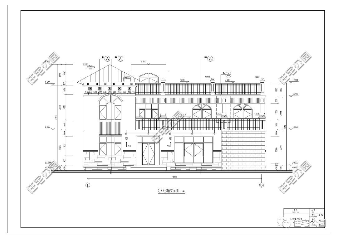
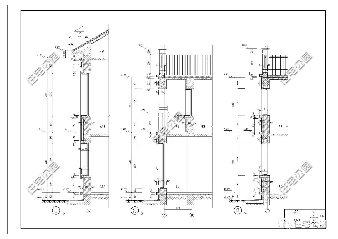
完整的建施图,现在很多农村自建时候都没有图纸,一个好的图纸是建好房的保障!

平面图,合理的平面布置舒适平时生活。


立面图,可以直观的看出房子效果与构造位置 。

大样图,可以较详细的了解隐蔽位置的做法。

我们再来看看部分施工图片:
房子建的好不好,第一观感是墙砌的怎么样,平整的墙体让人爽心悦目。

墙体砌筑中,预留构造柱位置。

设置圈梁,构造柱和圈梁是增强房子整体性能的,能增强一定的抗震能力。

安装好过梁模板,准备现浇过梁。

整整齐齐的墙体给人的感觉就是专业。

内部一览,“五进五出”的马牙槎,浇筑的过梁,平整的墙体。

现浇过后的屋面板用薄膜养护,细节打造好房。

从内部看,楼板表面整洁。

主梁方正,棱角分明,墙角处理干净利落。

外装采用真石漆装饰。

虽然没拆架,但我们仍可以看出棱角分明,线条优美。

分隔线刷上仿胶漆,石材效果就出来了。

线条美观,仿真的自然色泽,给人以高雅之美感。

专业施工队45万建的小别墅,大家觉得怎么样?

右上角关注,每天分享新户型和农村建房案例。