
时代地产佛山狮山会所是一个从场地到建筑、景观,再延续到室内设计的极简作品。作为一个小型精品会所,强调建筑与自然的融合及空间的流动性,极致、安静、朴质、舒适,温馨又不失创新的设计感,为都市精英阶层的休闲会客首选。整个项目以静谧为设计精神,勾勒建筑的静、形、色,极简的设计中寻找人与自然的动静交互及情感交流,渲染静谧唯美的极简意境,朴质的材质,温润而富有艺术质感,于开放的空间设计中,寄托当代艺术的前沿思潮。光,是最神圣的设计。有了光,建筑才会有了灵魂,朴质肌理的表现也更纯粹。

佛山时代地产狮山会所外部实景图

佛山时代地产狮山会所外部实景图

佛山时代地产狮山会所外部实景图

佛山时代地产狮山会所外部夜景实景图

佛山时代地产狮山会所外部夜景实景图

佛山时代地产狮山会所外部夜景实景图

佛山时代地产狮山会所外部夜景实景图

佛山时代地产狮山会所内部实景图

佛山时代地产狮山会所内部实景图

佛山时代地产狮山会所内部实景图

佛山时代地产狮山会所内部实景图

佛山时代地产狮山会所内部实景图

佛山时代地产狮山会所内部实景图

佛山时代地产狮山会所内部实景图

佛山时代地产狮山会所内部实景图

佛山时代地产狮山会所内部实景图

佛山时代地产狮山会所内部实景图

佛山时代地产狮山会所内部实景图

佛山时代地产狮山会所内部实景图

佛山时代地产狮山会所内部实景图

佛山时代地产狮山会所内部实景图

佛山时代地产狮山会所内部实景图

佛山时代地产狮山会所内部实景图

佛山时代地产狮山会所内部实景图

佛山时代地产狮山会所内部实景图

佛山时代地产狮山会所内部实景图

佛山时代地产狮山会所内部实景图

佛山时代地产狮山会所内部实景图

佛山时代地产狮山会所内部实景图

佛山时代地产狮山会所内部实景图

佛山时代地产狮山会所内部实景图

佛山时代地产狮山会所内部实景图

佛山时代地产狮山会所内部实景图

佛山时代地产狮山会所内部实景图

佛山时代地产狮山会所内部实景图

佛山时代地产狮山会所内部实景图

佛山时代地产狮山会所内部实景图

佛山时代地产狮山会所内部实景图

佛山时代地产狮山会所内部实景图

佛山时代地产狮山会所内部实景图

佛山时代地产狮山会所内部实景图

佛山时代地产狮山会所效果图

佛山时代地产狮山会所效果图

佛山时代地产狮山会所轴测图

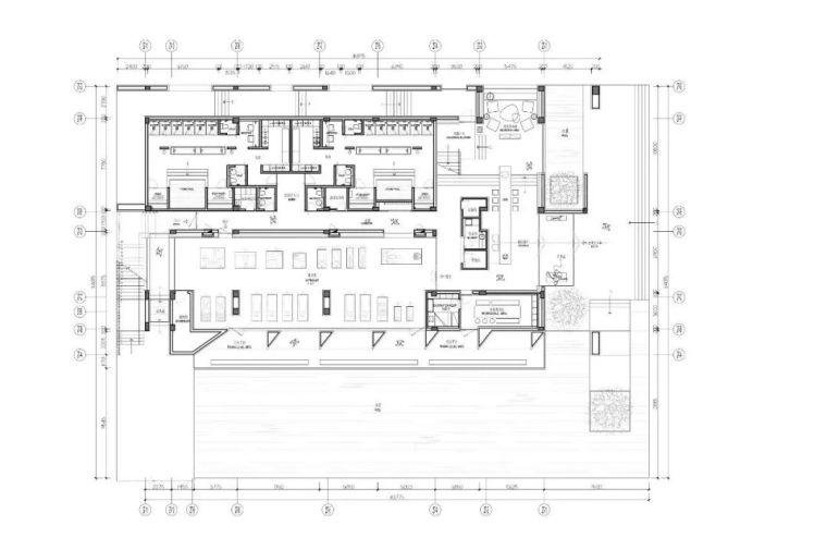
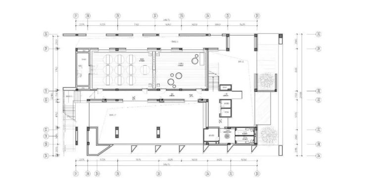
佛山时代地产狮山会所平面图

佛山时代地产狮山会所平面图