hello,大家好

我是化老师,
又见面了,
这是化老师案例解析的第三期
今天化老师要给大家介绍
玖雅最厉害(gui)的设计师韦先生的新作


扣扣扣!开门了
hello~欢迎来到丰台区丽新怡园一家做客,这里住着一对年轻的90后年轻夫妻。

穿过黑暗狭长的过道,明亮的蓝白色系收入眼底。
电视背景墙的颜色拼接和异形鞋柜造型呼应,
让空间有种向外的张力。
工作一天紧张的心情逐渐的平复下来,
身心即将开启放松休闲的家居生活模式。
只谈审美不谈实用就是耍流氓,
参观之前我们先来看看户型格局改造吧
原始户型图
▼

这家套内面积63平米,进门后是一个非常方正的空间,这个空间要满足客厅、餐厅、厨房、门厅的功能,而面积只有16平米。
位于东北方向的一间主卧,面积16.7平米。
户型面临的困难:
面积分布不均等——高配版的卧室、低配版的客厅、根本没有餐厅的位置。
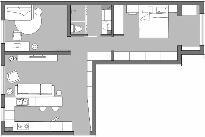
韦忠设计师改造后格局如下
(一共有两处墙体改动)
▼

一、开敞式的厨房,让空间看起来大一倍
关于客餐厅、厨房和门厅的布局
(设计师给了两种方案布局)
▼

方案A(开放式厨房)

方案B (封闭式厨房)
其中方案A比方案B多出吧台,并且把洗衣机放在了卫生间。
最后夫妻商讨后决定选择开敞式厨房。
主要原因如下:

在厨房忙碌的老公给在沙发上看电视老婆端茶递水比较方便
还有一个次要原因,开敞的空间显得更加宽敞。
二、巧“借”空间,客厅多出储物间
另一处改造是移动主卧的墙体
▼

这样为客厅提供更多的收纳空间。

这个储物柜就在客厅转角,打扫工具们的大本营。
▼

好了,介绍完格局改造
回到门厅
我们继续参观
......

进门的右手边是一个定做的异形换鞋凳,
换鞋凳上面挂了洞洞板,放随手小物件、日常通勤穿戴。

左手边是一个大容量的玄关柜,用来收纳换季鞋。柜门直接做成穿衣镜。柜子抬高了20公分,用来放日常换穿的鞋。
异形换鞋凳+薄边柜,无门厅房型的救星
110cm宽的门厅,设计师设计了异形的换鞋凳,衔接30cm厚的边柜。这个边柜不占用太多过道的面积,还将作为客厅收纳的主力。
从门厅往前走,来到了餐厅。

餐厅在过道,位置有点尴尬。

不过这家夫妻的餐桌使用频率很低,平时可以收起来。

两个人平时很少做饭,一般情况下下班回家煮个面或者叫外卖,在吧台上就解决了。
但是偶尔想正儿八经的吃顿大餐,还得有个正儿八经的餐桌。所以这款宜家折叠餐桌放在这里正好。展开后布置个烛光晚餐不成问题。

餐桌折叠起来就是一个小吧台,折叠餐桌下面有轮子,拉出来很顺手。两边的是进深30cm的边柜。
边柜尺寸图
▼

一边的柜子用来放置书籍、男业主的球拍以及日常超市囤货。
另一边柜子放置了河马口收纳箱。收纳工具、药品、文件、电子产品以及一些零碎小物件。
门厅的左边就是开放式厨房了。


转头能看到2019创刊号第一期黑板墙,这个黑板墙在门厅柜的侧面。女业主决心未来把黑板墙打造成夫妻二人的旅游照片墙。
门厅柜的旁边是嵌入式冰箱。
再往前就是开放式厨房+客厅
厨房的布局如下
▼

下面开始360度欣赏一下这家高颜值厨房

这款实木的吧台台面,是一块完整的实木板材。
由女业主亲自在东坝木材城挑选。
纹理自然造型优美,是普通人造板材无法比拟的。


想了解更多厨房台面知识,点击查看我们的文章厨房台面使用手册:厨房台面使用手册:厨房台面使用手册:6款台面性价比大PK

厨房操作台高度85cm,吧台高度110cm 落差25cm。
吧台下面有脚踏,脚踏下面用来放置了杂物。
吧台一边内侧的挂钩,用来收纳围裙和抹布。
吧台边上,橱柜做了开敞式的橱柜。第一篇案例中我们重点提到过开敞式收纳的便利。水杯、零食、老干妈等随手物品放在旁边的橱柜,随拿随用又能保持台面整洁。
厨房立面图
▼


了解更多厨房知识,请查看五分钟漫画装修定制你的专属厨房
装修,计划给家里安装吧台,你需要准备这些

夫妻两个人周末并排在做吧椅上,一边吃饭一边追剧。


橱柜、木地板、吧台的颜色都是精心挑选比对过的,颜色一致。

客厅四周吊顶上统一安装了4000k、4w的内嵌式筒灯作为主光源,色调一致营造出干净明亮的气氛。吊顶内暗藏灯带做辅光源。

厨房做了和吧台齐平的防水石膏板吊顶。颜值完胜铝扣板吊顶,开放式厨房的绝配。吊顶藏了燃气管道、抽烟机烟道等。

开放式厨房利器——用柜体板遮挡杂乱无章的厨房,美观又耐脏。
定制了100cm高的柜体板,作用不可小觑
1、遮乱——厨房台面免不了会有凌乱的时候,半高的挡板能成功遮挡台面。
2、凹造型——厨房台面和吧台的高差25cm,统一做白色哑光柜体饰面板,整齐美观。
3、挡水——厨房水池安装在了沙发的背面,挡板能有效隔绝厨房杂物,防止弄脏沙发。

客厅角度看过去
开敞又整洁,化老师给韦忠设计师的创意点赞~
接下来到了客厅

人字铺木地板从客厅延伸到每一个房间

摒弃了茶几,客厅动线更加宽敞顺畅。
门厅一直往前走,来卫生间参观一下
卫生间布局如下
▼


进卫生间后左边是淋浴房和马桶。右边是洗漱池和洗衣机。

用性感的长虹玻璃做隔断,精致感飙升。解决了一人洗澡一人上厕所的尴尬。

六角砖爬上墙

角砖转角处铺贴

从卫生间出来左转到了主卧
这就是前面提到的16.7平米的豪华高配主卧。


床对面定做了了长3890,进深550的衣柜,俨然半个衣帽间的容量。
收纳两个人的日常衣物穿戴

妥妥的
卧室的空调安装在了阳台。
如果安装在室内,要么衣柜墙的完整性遭到破坏,要么就是床头的彩色墙因为多出了空调而变得很突兀。作为处女座强迫症表示很难接受。正好阳台垭口比较大。冷气能进入卧室,也不会冷风直吹。

阳台收纳柜


床的一边放置床头柜,另一边放置衣架和梳妆台。
由于客厅视距不够,夫妻俩决定窝在床上用投影幕看大片 。
化老师提醒大家:投影视距需要250cm以上。
这家卧室的视距在278cm,
从主卧出来
来到对面的房间——次卧

目前是办公加健身瑜伽房,没有放置太多的家具。
这个房间要留给未来的宝宝。
装修完成,新的生活还将继续。。。。
案例介绍完毕

交钥匙——两位健身达人夫妻组和王金年工长
最后
欣赏一下韦先生针对该案例的效果图
还原度90%。





最后,秀合照。
左至右顺序:设计师韦忠、业主夫妇。
还有幕后默默付出但不愿意出镜的工长王金年和幕后文章的化老师。
- End -
喜欢记得关注化老师
在下就是化老师本化——玖雅设计总监

还有后宫工长佳丽三千

玖雅原创案例,每周一更
半小时漫画装修,每周一更
~版权归JORYA玖雅所有
~转载请联系作者获得授权